查看完整案例


收藏

下载
© Tim Bies Photography
提姆·比斯摄影
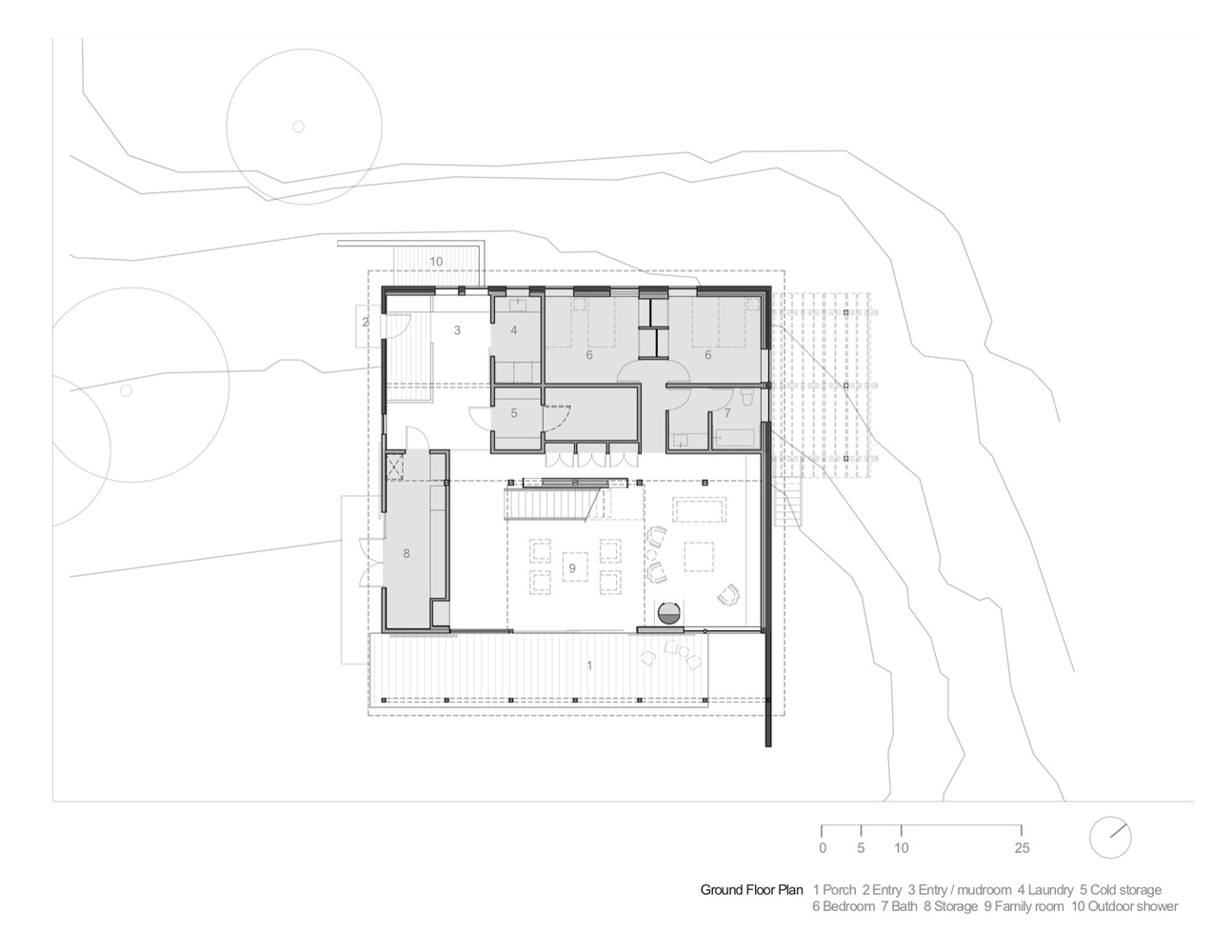
架构师提供的文本描述。坐落在瀑布的东麓,这场3900平方英尺的翻修,把世纪之交的工作谷仓改造成了一个三居室的城市再装修。这座建筑被修复,目的是创造一个舒适的家,同时保留它的原始形式,特征和历史。建筑的外部保留了原貌的大部分,但增加了一个深覆盖的门廊和大的可操作的门窗。
Text description provided by the architects. Located in the eastern foothills of the cascades, this 3,900-square-foot renovation converted a turn of the century working barn into a three-bedroom re- treat from the city. The building was restored with the intention of creating a comfortable home while retaining much of its original form, character and history. The exterior of the building retains the bulk of its original vernacular form, but adds a deep covered porch and large operable windows and doors.
© Tim Bies Photography
提姆·比斯摄影
结构,防水和绝缘要求需要一个几乎完整的新建筑,包括一个新的基础和框架,新的墙板和气候屏障,并增加了整个绝缘。最后,一个全新的屋顶结构必须建立在现有的,现在装饰,屋顶结构,以使其符合规范。现有的框架和壁板被仔细移除,并作为暴露的内部框架元素重复使用。生活区的壁炉是用热轧钢板定制而成的.镶板,地板,甚至固定装置和门都是从原来的建筑或打捞场采购的。生锈的齿轮,杠杆和电线捆在附近的领域被转换成一个哑巴和壁炉阻尼器控制。餐厅里点亮了一个定制的固定装置,它是由废弃的铁丝网制作而成的。物业里的苹果板条箱被精心地布置成了楼梯两侧的墙板。一只现有的木制养牛围栏被小心翼翼地从谷仓移走,重建为泥水室的个案工作和一个宠物饲养区。
Structural, waterproofing, and insulation requirements necessitated a nearly a complete new building including a new foundation and framing, new siding and weather barrier, and the addition of insulation throughout. In the end, an entirely new roof structure had to be built over the existing, now decorative, roof structure to bring it up to code. The existing framing and siding was carefully removed and reused as exposed interior framing elements. The living area fireplace was custom-fabricated form sheets of hot-rolled steel. Paneling, flooring, even fixtures and doors were sourced from either the original building or salvage yards. Rusting gears, levers, and wire bales found in the adjacent field were transformed into a dumbwaiter and fireplace damper controls. The dining area is lit with a custom-designed fixture created out of an abandoned bale of wire fencing. Apple crates from the property were carefully composed into wall panels flanking the stair. An existing wooden cattle holding pen was carefully removed from the barn and rebuilt as mudroom casework and a pet feeding area.
© Tim Bies Photography
提姆·比斯摄影
Axonometric
© Tim Bies Photography
提姆·比斯摄影
厨房岛绝对是现代的:热轧钢与灰烬屠夫块顶部。厨房的柜台是水泥的。作为一个谷仓,照明并不是一个优先事项;然而,作为一个生活空间,引入日光是至关重要的。介绍了大面积的玻璃,包括三扇滑动门,打开书房到阳光门廊,以及把以前的干草屋和谷仓门改造成一个大的玻璃窗。
The kitchen island is decidedly contemporary: hot-rolled steel with an ash butcher block top. Kitchen counters are concrete. As a barn, lighting had not been a priority; as a living space, however, introducing daylight was critical. Large expanses of glass were introduced, including a trio of sliding doors that open the den to a sun porch, as well as converting the former hayloft and barn doors into a large glazed facade.
© Tim Bies Photography
提姆·比斯摄影
新的干预措施被仔细考虑具有现代美学,同时在这个原始调色板内工作。这是一个保存和干预的混合,这个项目更新了一个老化的谷仓,而不失去它的历史记忆。
New interventions were carefully considered to have a modern aesthetic while at the same time working within this raw palette. A blend of preservation and intervention, this project updates an aging barn without losing the memory of its history.
© Tim Bies Photography
提姆·比斯摄影
Architects mw|works architecture + design
Location United States
Interior design Nelleen Berlin Interior Design
Area 3875.0 m2
Project Year 2013
Photographs Tim Bies Photography
Category Adaptive Reuse
Manufacturers Loading...
客服
消息
收藏
下载
最近




























