查看完整案例


收藏

下载
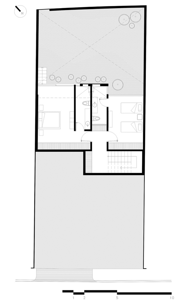
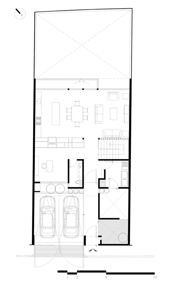
该项目位于墨西哥贾拉帕的Xalapa Enríquez市,占地面积200平方米,目的是在保持其地方根基的同时实现现代设计,维护其所在城市的特性。这一设计是由建筑公司BCA,更高的德迪塞诺在2017年创造的。
画廊正门红砖墙景观
画廊客厅的简约现代景观
建筑公司为这个项目的设计围绕三个不同的点:建筑,室内设计和照明设计。一个简单的纯卷组成的主体,创造了公共空间和私人空间。材料的选择是实现这一工程的一个关键因素(围护石、天然橡木、可见混凝土和半红色粘土),并突出了这座房子的建筑,它以其真实性和自己的表现来区别。
在画廊,餐厅和厨房,木材和黑色的结合的景观。
可欣赏画廊的木制家具空间分离器
我们推荐这些项目房屋科威特独特的城市花园,1925年被废弃的建筑物,位于荷兰,被改造成创造美好的空间
该方法是基于从内部产生设计,给予更多的人的经验更大的重量。这些地区,尽管有不同的用途,是同一卷的一部分。例如,在一楼,通过拆除墙壁和增加特别设计的家具,使空间有序和分开,实现了这一目标。这些家具是由当地的手工艺人员和Xalapa的公司制作的。
画廊中的视图
在画廊的楼梯上用木头和黑色金属
现代典雅的木浴室景观
画廊内的主入口处夜景
画廊中的视图
画廊夜景
画廊中的视图
画廊中的视图
画廊中的视图
画廊中的视图
画廊中的视图
画廊中的视图
画廊中的视图
keywords:Bathroom Bookshelf Brick Walls Concrete Walls Contemporary Interior Design Decorative Accessory Dining Room Glass Walls Hall and Entrance Kitchen Landscaping Living Room Staircase Terrace
关键词:浴室,书架,砖墙,混凝土墙,现代室内设计,装饰附件,餐厅,玻璃墙,大厅和入口厨房,景观美化,客厅,楼梯,露台
客服
消息
收藏
下载
最近



















