查看完整案例


收藏

下载
© Resolution: 4 Architecture
决议:4体系结构
架构师提供的文本描述。位于长岛东端的沙丘路海滨别墅:4建筑骑在沿大西洋边缘的沙丘的顶峰。于2012年6月完工,坐落在一个长长的屏障礁上,在这个环境中,房子可以看到南面的海洋,北边的海湾和沼泽地。
Text description provided by the architects. Located on the eastern end of Long Island, the Dune Road beach house by Resolution: 4 Architecture rides the crest of a dune along the edge of the Atlantic Ocean. Completed in June 2012, it is sited on a long barrier reef in a setting that provides the house with views of the ocean immediately to the south and also the bay and marshland to the north.
© Resolution: 4 Architecture
决议:4体系结构
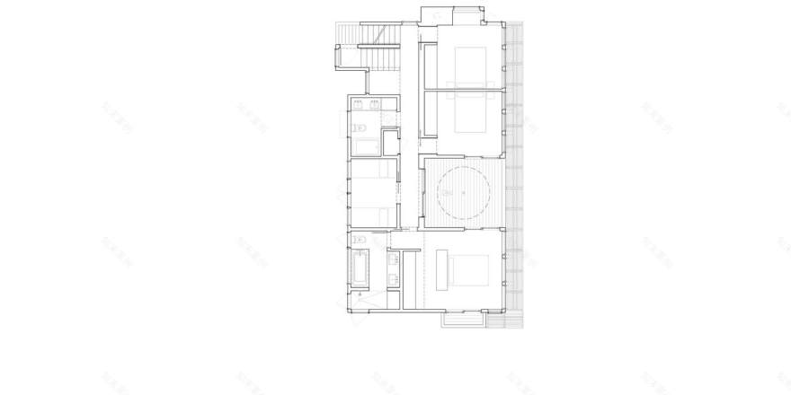
Ground Floor Plan
© Resolution: 4 Architecture
决议:4体系结构
这座房子坐落在一条长长的车道的尽头,正门是通过一条长长的坡道通往的,这条斜坡连接着自然沙丘的景观,这片景观原本是毫发无损的。分区和允许的面积要求不仅决定了房屋的布局,还决定了它的长度、宽度和高度。除了房屋的飓风级结构和窗户外,沙丘本身也按照环境标准进行了重建,以防止海洋的任何潜在破坏。使用预制结构可使建筑效率最大化,同时尽量减少对天然场地的破坏。
The house sits at the end of a long drive and the main entrance is reached over a long ramp that bridges the naturally duned landscape, which was to remain unscathed. Zoning and allowable square footage requirements determined not only the home’s placement, but also its length, width, and height. In addition to the home’s hurricane-rated structure and windows, the dune itself was rebuilt per environmental standards for protection from any potential damage from the ocean. The use of prefab construction maximized construction efficiency while minimizing disruption to the natural site.
© Resolution: 4 Architecture
决议:4体系结构
类似于狭窄的珊瑚礁,住宅内部是一个线性组合,服务空间和向北流动,而开放的生活区和睡眠区在南部。客户是一个住在曼哈顿市中心一间大公寓里的年轻家庭。与大多数城市居民拥有的第二套住房不同,这所房子实际上比他们的公寓小。因此,花在这里的时间更像是在海滩上露营,而不是逃往乡村要塞。
Analogous to the narrow reef, the home’s interior is organized as a linear composition with service spaces and circulation to the north, while open living and sleeping areas are to the south. The client is a young family living in a large apartment in downtown Manhattan. Unlike most second homes owned by city-dwellers, this house is actually smaller than their apartment. Accordingly, time spent here is more akin to camping on the beach than escaping to a rural fortress.
© Resolution: 4 Architecture
决议:4体系结构
在公共空间中,从地板到天花板的玻璃墙的效果就像坐在海滩上,同时又保留着家的所有舒适,因为南面的外墙为了隐私而关闭。第二层有四间卧室,包括一个地堡和通往屋顶甲板的室内楼梯,上面有壁炉、热水浴缸、晨练瑜伽的空间,以及在海滩上俯瞰四周房屋上方的令人眼花缭乱的景色。
The floor-to-ceiling glass wall in the communal space has the effect of sitting on the beach while retaining all the comforts of home, as the south facade closes down for privacy. The second level has four bedrooms, including a bunkroom, and interior stairs leading to a roof deck with a fireplace, hot tub, a space for morning yoga, and commanding views up and down the beach, high above the surrounding houses.
© Resolution: 4 Architecture
决议:4体系结构
Architects Resolution: 4 Architecture
Location East Quogue, United States
Lead Architects Joseph Tanney, Robert Luntz
Area 2200.0 ft2
Project Year 2012
Photographs Resolution: 4 Architecture
Category Houses
Manufacturers Loading...
客服
消息
收藏
下载
最近






















