查看完整案例


收藏

下载
© Yoon Joonhwan
尹俊焕
架构师提供的文本描述。白色亭子在乡村住宅建筑群中建造一座房子,意味着与大自然相遇,逃离一套公寓。因此,与自然的相遇成为本工程设计的一条线索。为了使与自然的接触空间成为一个潜在的空间,我们在内外的连接或延伸中创造了一个展馆空间。这个空间建立了循环和外部关系。你可以从里面或者外面穿过这个空间。
© Yoon Joonhwan
尹俊焕
这座房子可以被认为是一个从任何方向的百叶窗组成的展馆,这个展馆既是一个空间,也是一个形式。自然与建筑的接触点被塑造成展馆空间,展现出白色百叶窗的细线和两者之间的深度。
© Yoon Joonhwan
尹俊焕
设置在建筑物和外部球体上的白色百叶窗所创造的边界空间,有助于揭示与自然的接触点,并诱导各种关系和行动。在这个空间中,细线所创造的潜力和它们之间的深度被延伸到空间。百叶窗的装置增强了空间的潜力。它试图混合建筑和自然,同时创造一个不沉重和暴力对自然的空间。
© Yoon Joonhwan
尹俊焕
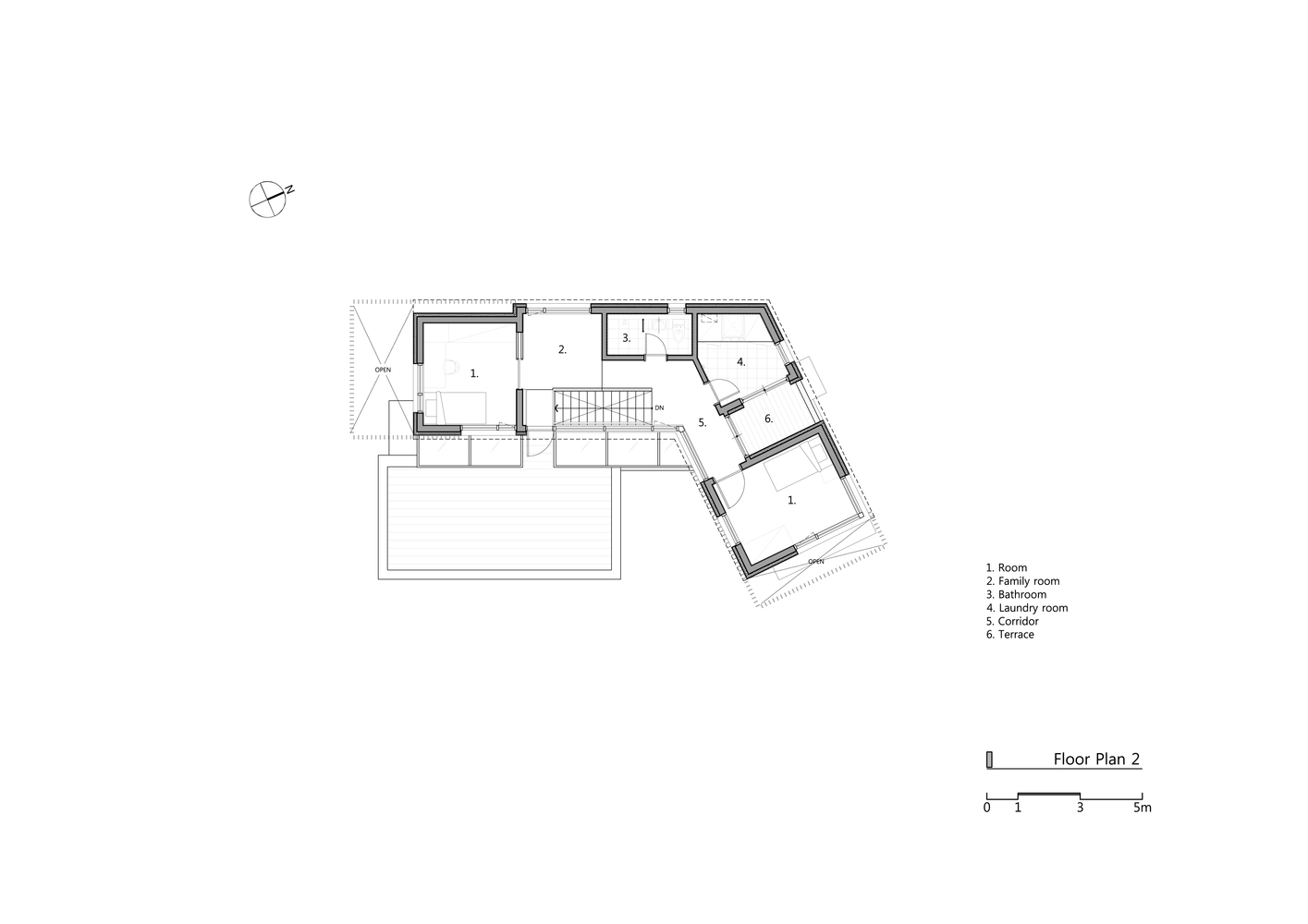
两个活生生的间隔是由内部组成的间隔,并填补之间的光线。这种光指示生命的方向,并导致空间的流动。调整高度,克服了地板分类的缺点。在看风景的同时,尊重与邻居的隐私。
Two living spaced are composed inside with the spacing, and the light was filled in between. This light suggests the direction of life and leads to the flow of space. The height was adjusted to overcome the cons of floor classification. And while looking at the scenery, privacy with neighbors is respected.
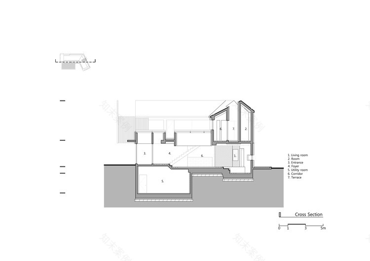
Cross Section 02
横断面02
Architects Architects Group RAUM
Location Gimhae-si, South Korea
Lead Architects Oh Sinwook
Partner Architect No Jeong-min
Design Team An Shin, Yu Seongcheol, Park Gyuhyun, Yoon Jeongock, Choi yunjeong ,Lim Ahyun, Kim Dayeong
Area 192.0 m2
Project Year 2017
Photographs Yoon Joonhwan
Category Houses
Manufacturers Loading...
客服
消息
收藏
下载
最近































