查看完整案例


收藏

下载
架构师提供的文本描述。经过几十年的逐步扩张,总部位于根特市中心的Ryhove公司的工厂建筑呈现出衰败的迹象。公司形象已成为一种过时的工作环境,不再符合商业成功。
Text description provided by the architects. After decades of gradual expansion, the factory buildings of Ryhove, a company based in the city centre of Ghent, showed signs of decay. The corporate image had become one of an outdated working environment that was no longer in line with the commercial success.
© Stijn Bollaert
(Stijn Bollaert)
该公司有两种选择:离开工厂,在周边工业区进行高效的新建筑,或者承担部分拆除工厂和在同一地点重建工厂的挑战。
The company had two options: to leave the site for an efficient new construction in a peripheral industrial zone or to take on the challenge to partially demolish the factory and to rebuild it on the same site.
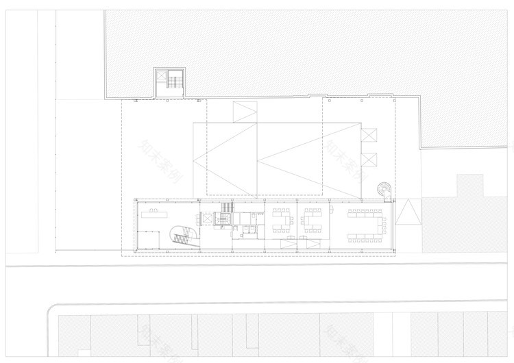
Lower Floor Plan
低层平面图
他们选择留在现场,这样雇员就可以继续在附近工作。新建筑对场地进行了改造,并以有效的方式组织了物流活动。建造了更多的工厂空间和地下停车场。
The choice was made to stay at the site, so the employees could continue to work in their neighbourhood. The new building restructures the site and organizes the logistics in an efficient way. Additional factory space and an underground parking were built.
© Stijn Bollaert
(Stijn Bollaert)
一项重要的目标是使住宅区的工业扩展可以接受。这就是为什么选择“梯田式房屋类型”作为干预的参考。街道的立面被分成几个部分,宽度约为1米。5米这幢楼有一个简单的倾斜屋顶。
An important ambition was to make the industrial expansion acceptable in a residential area. That is why the 'terraced house typology' was chosen as a reference for the intervention. The street façade was divided into parts with a width of approx. 5 m. The building got a simple pitched roof.
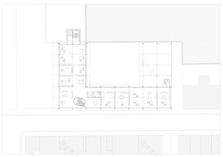
Upper Floor Plan
上层平面图
在拐角处,屋顶翻了三倍。在现场中间有一个装卸区:货物的装卸不是隐藏的,而是放在工厂的中心。
Around the corner, the roof is tripled. A loading and unloading area is organized in the middle of site: the handling of the goods is not hidden but placed in the heart of the factory.
© Stijn Bollaert
(Stijn Bollaert)
这座建筑是用标准化的预制构件建造的。混凝土柱、CLT面板和金属夹层构件被组装成一个具有在城市和周边建筑之间摆动的特征的建筑。
The building is made with standardized, prefabricated elements. Concrete columns, CLT panels and metal sandwich elements were assembled to make a construction with a character that oscillates between an urban and peripheral building.
客服
消息
收藏
下载
最近














