查看完整案例


收藏

下载
© Lawrence Choo, Michael Khong
c.Lawrence Choo,Michael Khong
架构师提供的文本描述。这一切始于2009年左右的英国,当时建筑师肯尼和辛还在伦敦工作。简短的是设计一个家庭住宅。这两位建筑师都是在巴斯大学的建筑学院接受培训的。
Text description provided by the architects. It all started back in the UK around 2009, when architects Kenny and Sin were still working in London. The brief was to design a family home. Both architects were trained in the school of Architecture at the University of Bath.
© Lawrence Choo, Michael Khong
c.Lawrence Choo,Michael Khong
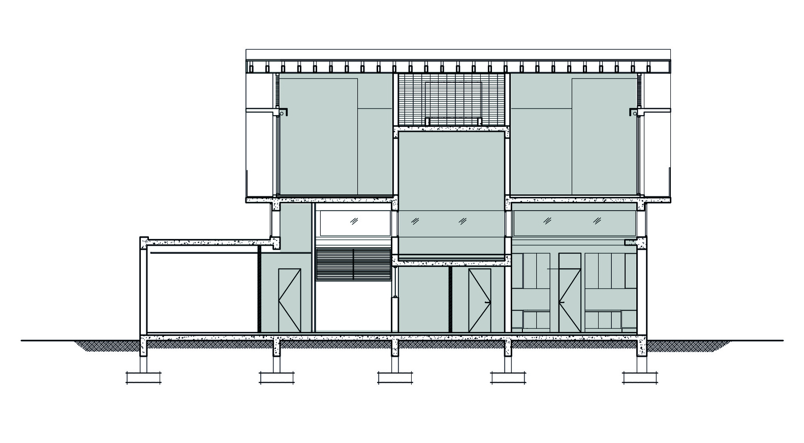
在他们的整个职业生涯中,他们分别为ArupAssociates和PRP建筑师工作。他们的作品往往强调体积和空间表达,这反映在这座谷仓式的美鲁房子里。当项目第一次开始的时候,花了很大的努力让承包商按照计划来编造细节。来回旅行也不是一个理想的解决方案。在英国居住了15年后,两人都居住在马来西亚,建设于2013年进行,2017年结束。房子的设计采用了被动设计和节能的方法。建筑方向、风向和热带季风季节模式都在考虑之中。风捕捉器是用来冷却室内,与两个战略位置的庭院,作为一个整体通风和热移动策略。
Throughout their career, they worked for Arup Associates and PRP Architects respectively. Their works often have an emphasis in the volume and spatial expression, which is reflected in this barn-like Meru house. When the project first started, it took great effort to get contractors to fabricate details as intended. Travelling back and forth wasn’t an ideal solution either. After living in the UK for 15 years, both reside in Malaysia, construction took place in 2013 and completed in turn of 2017. The house has been designed using passive design and energy efficient approach. Building orientation, prevailing wind directions and the tropical monsoon season patterns are all being considered. Wind catcher is used to cool the inside of the house, in combination with two strategically located courtyards, as an overall ventilation and heat movement strategy.
© Lawrence Choo, Michael Khong
c.Lawrence Choo,Michael Khong
1st / 2nd Floor Plan
一楼/二楼图则
© Lawrence Choo, Michael Khong
c.Lawrence Choo,Michael Khong
由于温度梯度的作用,热空气被向上抽走,在当时风向流过捕手的辅助下,通过容积播放产生堆栈效应。不同高度的交叉通风百叶窗可增加更大的气流。深凹阳台、阳台和垂直鳍是被动设计的关键要素之一。阳台在房子周围。它形成了一个过滤元素的房子,从炎热的太阳,以及热带暴雨。一家人可以欣赏他们的花园,在可能的情况下享受户外生活。有一个现场雨水收集系统,雨水收集和储存在一个地下混凝土水箱,使水冷却在地下。虽然在马来西亚不常见,但所有外墙都采用双层砖墙。空腔壁有助于减轻过度的热量增加暴露,以及保持室内气候舒适。
Hot air is drawn upward due to temperature gradient, assisted by prevailing wind flowing pass the catcher, creating stack effect through volumetric play. Greater airflow is enhanced with cross ventilation louvers at various height levels. Deep recessed verandas, balconies and vertical fins are part of the key elements of passive design. Veranda is located around the perimeter of the house. It forms a filtering element of the house from hot sun, as well as the tropical rainstorm. Family gets to appreciate their garden and enjoy outdoor living where possible. There is an on-site rainwater harvesting system whereby rainwater is collected and stored in an underground concrete tank, keeping the water cooled below ground. Although it is uncommon in Malaysia, double brick cavity wall is used for all external walls. The cavity wall helps to alleviate the excessive heat gain exposure as well as maintaining an indoor climate comfort.
© Lawrence Choo, Michael Khong
c.Lawrence Choo,Michael Khong
Architects A3 PROJECTS
Location Ipoh, Malaysia
Architects in Charge Kenny Khor Leat Chong, Ho Choon Sin
Area 450.0 m2
Project Year 2016
Photographs Lawrence Choo, Michael Khong
Category Houses
Manufacturers Loading...
客服
消息
收藏
下载
最近




























