查看完整案例


收藏

下载
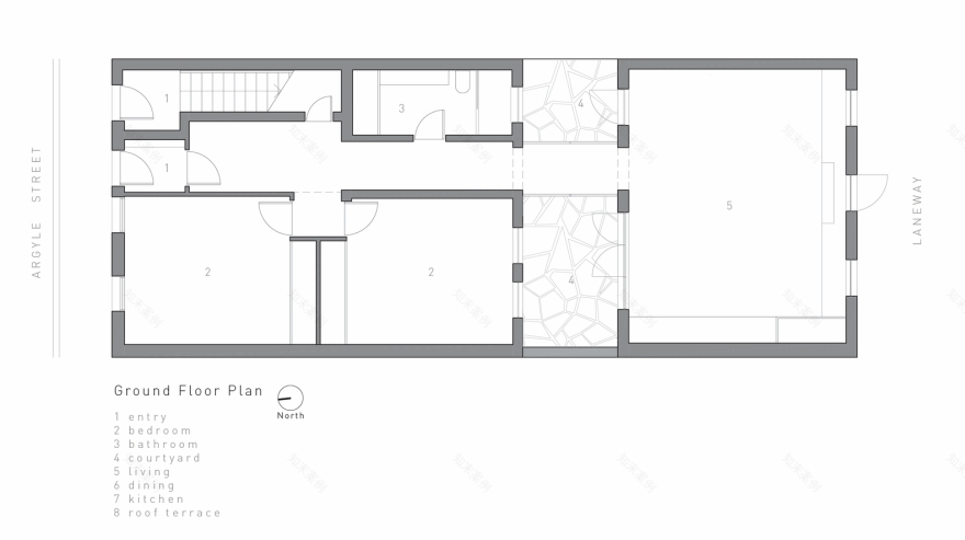
架构师提供的文本描述。位于墨尔本郊区的菲茨罗伊,这座有150年历史的建筑的修复和扩建展示了该地区丰富的历史,并展示了如何将自然光优先于楼面面积,可以最大限度地利用紧张的、内城的建筑。该项目包括仔细修复一栋遗产清单上的建筑和一个新的两层楼,以提供两套独特的公寓。
Text description provided by the architects. Located in the Melbourne suburb of Fitzroy, this restoration and addition to a 150-year-old building showcases the rich history of the area and demonstrates how prioritising natural light over floor area can make the most of tight, inner-city sites. The project involves the careful restoration of a heritage listed building and a new two-storey addition to provide for two unique apartments.
© Rory Gardiner
罗里·嘉丁纳
在一次废弃的翻修之后,几年来一直无人居住,原来的维多利亚时代的建筑和最近在后面的一座建筑都处于一种破旧的状态。大楼的足迹覆盖了整个场地,后面的车道上到处都是垃圾和常春藤。1860年的建筑-部分被拆除-展示了它以前用作住宅、旅馆、铜匠和仓库的证据。而不是剥离原来的建筑物和提供所有新的完成,只要有可能,丰富的历史嵌入到原来的建筑织物已经保存和暴露。
Having been unoccupied for several years following an abandoned renovation, the original Victorian era building and a more recent addition at the rear were in a dilapidated state. The building footprint covered the entire site and the rear laneway was full of rubbish and clogged with ivy. The 1860’s building - having been partially demolished - displayed evidence of its former uses as a residence, hotel, coppersmith and warehouse. Rather than stripping the original building back and providing all new finishes, wherever possible the rich history imbedded into the original building fabric has been preserved and exposed.
© Rory Gardiner
罗里·嘉丁纳
原始建筑经过风化的外墙没有受到任何影响-保留了过去150年积累的富饶的帕蒂纳(Patina)-新的木窗和门都是为了与原来的轮廓相匹配而制造的。在内部,维多利亚时代的特征已经被恢复,在新旧之间建立了清晰的界限,这是由漂浮在空间中的新细木工的干净的、最小的线条所创造的-使这些飞檐继续畅通无阻。在底层,一层浮木地板被拆除,原有的混凝土板被抛光,露出旧的钉子和工具,这些钉子和工具被扔进混凝土中。
The weathered façade of the original building has been left untouched – retaining the rich patina accumulated over the last 150 years – with new timber windows and doors manufactured to match the original profiles. Internally, Victorian era features have been reinstated with a clear delineation created between old and new by the clean, minimal lines of the new joinery which floats in the space – allowing the cornices to continue unobstructed. On the ground floor, a floating timber floor was removed and original concrete slabs polished, exposing old nails and tools which were thrown into the concrete mix.
© Rory Gardiner
罗里·嘉丁纳
一个双高度的空隙被创建在网站的中间,将原来的建筑与新的两层楼分开。新的空隙在新旧建筑之间创造了一个清晰的界限,并提供了进入自然光和通风的通道。新庭院的外墙已经暴露,暴露了原来的青石底座,各种砖层和涂鸦的近代史。
A double height void was created in the middle of the site, separating the original building from the new two storey addition. The new void creates a clear delineation between old and new buildings and provides for access to natural light and ventilation. External walls exposed by the new courtyard have been left exposed, revealing the original bluestone footings, various layers of brickwork and a more recent history of graffiti.
西班牙马赛克瓷砖包覆了新增加的正面,参考了剥落的油漆和裂缝在正面的渲染和反射光进入双高度的空隙。一座两层高的玻璃桥横跨庭院,提供了建筑原有部分和新部分之间的内部通道-提高了新旧过渡的经验。
Spanish mosaic tiles clad the facade of the new addition, referencing the flaking paint and cracked render on the front façade and reflecting light into the double height void. A two-storey glass bridge spans the courtyard and provides internal access between the original and new sections of building – heightening the experience of transitioning between old and new.
© Rory Gardiner
罗里·嘉丁纳
一楼公寓的起居区位于物业的后面,新的门窗打开在先前被忽视的巷道上,该通道已作为建筑工程的一部分进行清理,供所有邻近的物业使用。
The living area of the ground floor apartment is located at the rear of the property with new windows and doors opening onto the previously neglected laneway, which has been cleaned up as part of the building works for all adjacent properties to use.
© Rory Gardiner
罗里·嘉丁纳
在恢复原来的建筑-保留丰富的帕蒂纳,它已经积累了在过去150年的价值,而不是重建旧的表面。新的加装是精心设计的,以尊重原来的建筑与自然光的通道,优先考虑的总楼面面积。他们共同创造了一种尊重过去和拥抱未来的独特财产。
In restoring the original building - retaining the rich patina which has accumulated over the last 150 years was valued over recreating the old surfaces. The new addition has been carefully crafted to respect the original building with access to natural light prioritised over total floor area. Together they have created a unique property which respects the past and embraces the future.
客服
消息
收藏
下载
最近




















