查看完整案例


收藏

下载
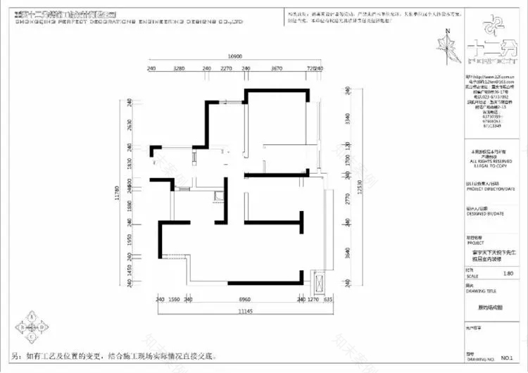
户型:三室两厅两卫一厨 全案设计师:田艾灵 软装拍摄布场:罗南施 摄影师:代忠海 设计施工定制单位:重庆十二分装饰工程设计有限公司
这是一位在香港定居的孝顺儿子,
为父母在重庆打造的新家。
从结构上,将厨房外扩, 方便更完整的橱柜布置;将次卫与生活阳台重组, 原来逼仄的次卫成为阳光开阔明卫。 整体设计从硬装到软装, 打破常规套路化模板,用专业去呈现更多惊喜……
喜欢,干净冷峻的家, 也爱着,偶尔闪现那一小块火热的家,
是的,不同的重叠, 有时和解,有时冲突, 我爱着,它们之间的缝隙, 跳脱模板悄然生长的张扬。
软装上,用带有铆钉,褶皱细节的直线条的灰蓝调主沙发搭配一个富有造型的飞行单椅,加上金属石材的茶几,来给整个空间营造沉淀的质感,黑白的大幅落地画与前面红色的雕塑形成对比变换,旁边红色的餐椅又与这一抹红色形成一个色彩的延续。餐厅金属的吊灯与金属的餐椅互相映射,增加质感.餐桌上的干花和玻璃器皿给餐厅空间增加了灵动感,通透感...
阳台外是辽阔的江景,将次卧直接外扩,做全景阔窗,昼夜之间,一杯咖啡、一本好书,就可以伴着一幅好景致呆一天……
现代 住宅 田艾灵 色彩
客服
消息
收藏
下载
最近




















