查看完整案例


收藏

下载
加拿大设计师Elizabeth Metcalfe完成了一个最新的作品Gordon Woods,延续了她一惯的低调优雅风格。
关于Gordon Woods的相关资料很少,在五月份小编无意中收藏了Elizabeth Metcalfe在社交网站Instagram上发的四个平面图,仔细看了下,发现这几个平面图恰好是新作Gordon Woods的。
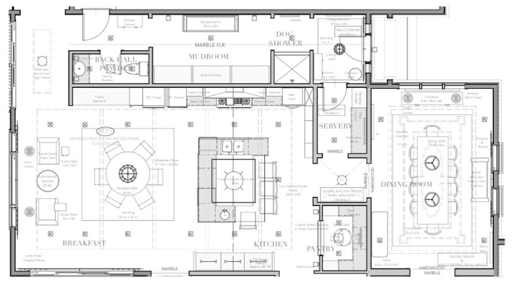
从现有资料上看,Gordon Woods是一栋三层的住宅,地上二层,地下一层。首层主要是公共活动区域。和国内有明显的不同,生活方式以及环境不一样吧,在国内这么大的面积不来几个房间也对不起房价了。
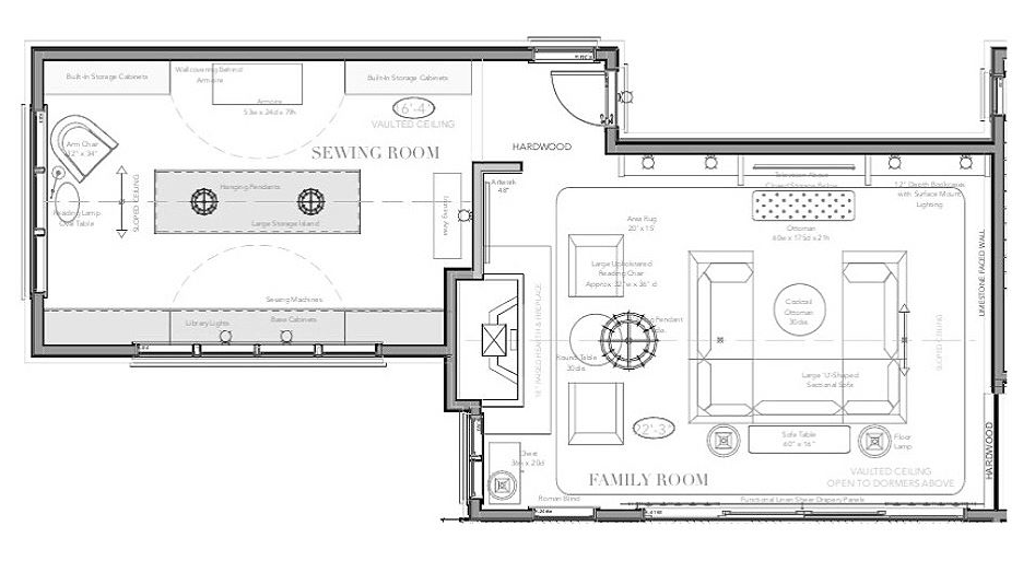
首层主要是客厅,书房,餐厅,厨房等区域,而二层主要主卧以及家庭厅,地下一层不详。细的功能还有很多,平面值得细细品味,大家慢慢研究。
-玄关左侧的简化壁元素炉&装饰台-
-玄关右侧则直接通往餐厅-
-入玄关后左侧的过厅-
-客 厅 / Living Room-▼
-客 卫-
-首层局部平面图(餐厅&厨房)--餐 厅/Dining Room-▼
-厨房&早餐/Kitchen&Breakfast-▼
-后门&工作间-
-主卧室平面图--主 卧/Master Bedroom-▼
-主 卫/Master Bathroom-▼
-家庭厅平面图--家庭厅/Family Room-▼
-楼梯间 / Stair Area-
客服
消息
收藏
下载
最近






















































