查看完整案例


收藏

下载
项目地址:昆明·滇池卫城
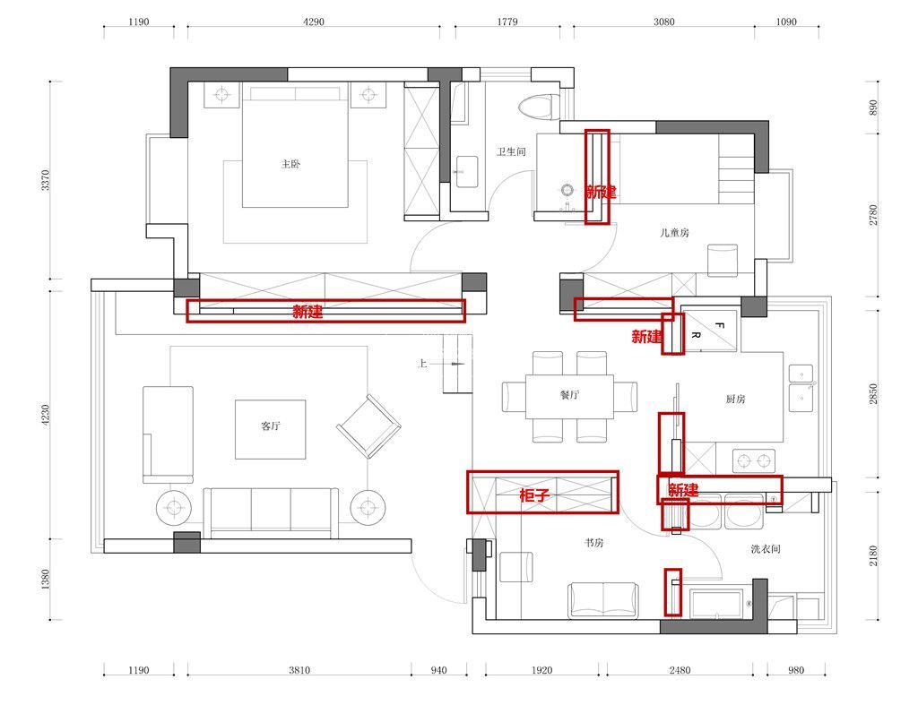
户型改造大胆,非承重墙的地方全部打拆,厨房和卫生间的改造是我最满意的,把原户型厨房的位置调整到餐厅旁边的阳台,这样厨房变成直接采光,厨房、书房、生活阳台三个空间同时得到扩展;原户型卫生间空间小不能做极简淋浴区,墙体打拆新建后,向儿童房移动60公分,实现了淋浴区功能。
房子是个前后错层,会客与食寝功能分区;考虑到客厅和餐厅有60公分的高度差,为了空间有连贯性,没有用常规电视柜,直接用钢架打一个连体式电视柜一直连接到餐厅的地台,表面统一用石材铺贴。
客厅到餐厅用了极简的玻璃扶手,基层留缝,安装15公分的玻璃进去,这样就很牢固了,也很漂亮。
客厅只吊了10公分的平顶,没有主灯,安装方形射灯,左右两侧设置灯槽,电视柜下面也安了灯带,增加空间氛围,沙发旁边摆放落地灯,满足偶尔在客厅看书的需要,风格上和墙上的装饰画形成呼应。
进门鞋柜的位置是原户型配电箱位置,把配电箱移动到书房,空间留给鞋柜,鞋柜中间位置摆放钥匙、包包都很方便。
餐厅里的储物柜选了灰色的玻璃门,柜子里设计了灯光,感观上很时尚,黑白搭配的餐桌椅突出了简约风格的线条感。
厨房功能分区很合理,储物、洗菜、切菜、打扫都很方便,最棒的是视野和光线,空中楼阁的感觉,做饭的心情都不一样,享受着家带来的点滴欢喜。
主卧室两面墙都是衣柜,靠客厅的墙体全部打拆,做了嵌入式衣柜,灯带和床头吊灯满足氛围和整体照明,飘窗是自己一个人在家时候比较喜欢待的地方,看书、打盹、晒太阳。
空间扩展后的卫生间做了一个2.2米的浴室柜,我所有的化妆用品都能放得下,极简的淋浴区隔断不占空间,简洁同时也比较有品质感,造型独特的镜前灯,除了装饰作用外最重要的一点就是满足化妆时对光源的需要。
客服
消息
收藏
下载
最近






















