查看完整案例

收藏

下载
架构师提供的文本描述。该项目位于科威特Al-Adiliyah,地块面积为1000平方米。长方形地块的东面和南面都有邻居,北边还有一条步行街。西侧较短的街道正面得益于街对面的社区花园。
Text description provided by the architects. The project is located in Al-Adiliyah, Kuwait with a plot area of 1000 m2. The rectangular plot has neighbors to the east and south in addition to a pedestrian alley way along its longer northern edge. The shorter street frontage on the western side benefits from a community garden across the street.
© Nelson Garrido
NelsonGarrio
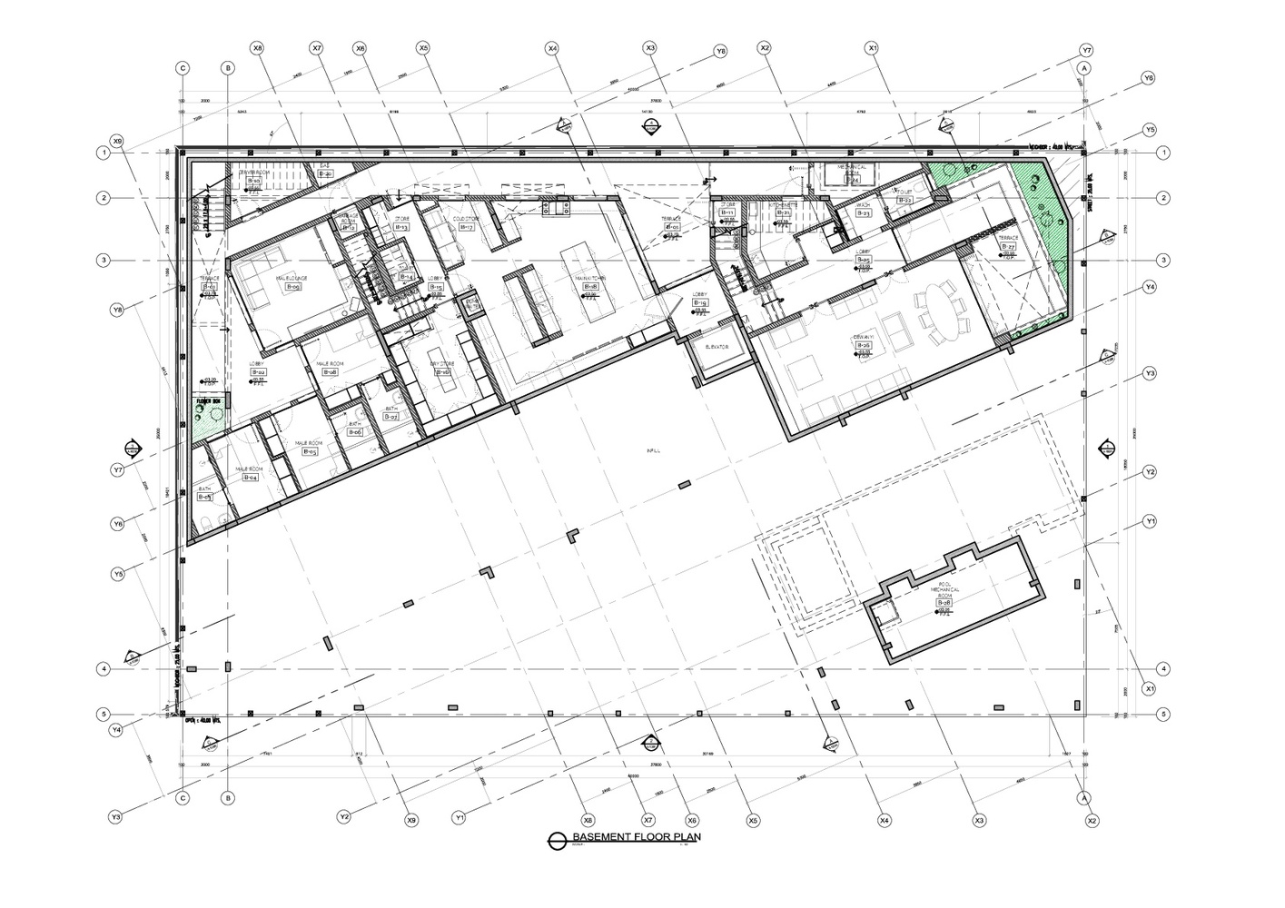
这种聚集看起来就像一块蛋糕-一个三角形的楔子插进了地块中,以最大限度地保护隐私,远离东边的邻居,也远离北边的步行街。倾斜的边缘也微妙地将房屋的景色和主要的正面朝向街对面的花园。
The massing looks like a slice of cake- a triangular wedge inserted into the plot and angled to maximize privacy away from neighbors to the east and from across the pedestrian alley on its northern edge. The angled edge also subtly orients the homes views and main frontage towards the garden across the street.
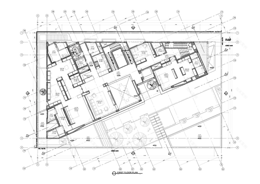
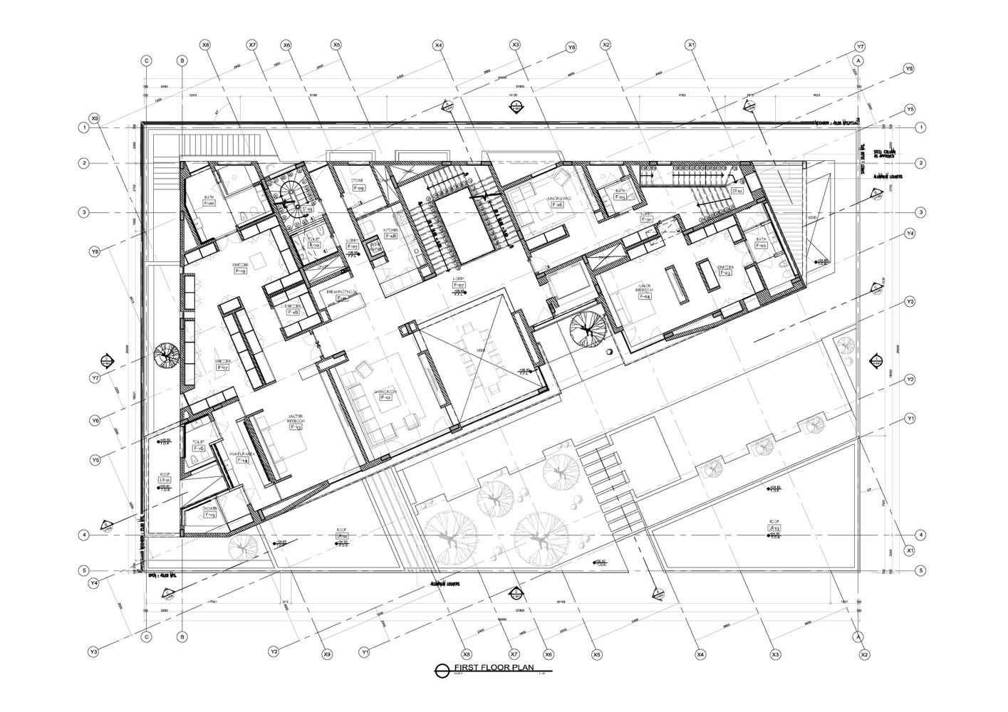
Ground Floor Plan
这片土地占地面积约占地块的50%,其余部分则专门用于私人花园和游泳池。在地块的西北角,我们有一个独立的附件,对着游泳池,里面有一个健身房和卫生间/淋浴间。
While the slice occupies a footprint covering approximately 50 percent of the plot, the rest of the area is devoted to a private garden and pool. In the north-western corner of the plot we have a detached annex facing the pool containing within it a gym and toilet/shower room.
客户要求的设计,可以在未来的空间和编程分离为独立的家庭。一个给父母,另一个给儿子未来的家庭。因此,目前的大部分方案(接待、办公空间、主厨房和父母居住的套房和卧室)都是在楔形的较宽的底部垂直堆放在一起的。而儿子的私人住宅和居住空间则垂直堆放在楔形顶上。
The client requested a design which can, in the future spatially and programmatically separate into to independent homes. One for the parents and another for the sons future family. Thus, the majority of the current programme (reception, office space, main kitchen, and parents living suites and bedroom) are stacked vertically above one another within the wider base of the wedge. While the sons private quarters and living space are vertically stacked within the tip of the wedge.
© Nelson Garrido
NelsonGarrio
Architects Alhumaidhi Architects
Location Al-Ardiya, Kuwait
Area 1946.0 m2
Project Year 2016
Photographs Nelson Garrido
Category Houses
Manufacturers Loading...
客服
消息
收藏
下载
最近















