查看完整案例


收藏

下载
架构师提供的文本描述。住房开发和家庭成员-这所房子的所在地-是一个住房开发项目,自该地区开始出售以来已经过去了大约40年。这里有400多所房屋,但它们作为一种财产没有任何价值,居住在其中的人不再那么年轻了。客户的要求是:一个330平方米的土地空间和足够距离的邻居,以更好的隐私。土地价格低廉,开发密度大,土地开发条件较好。
Text description provided by the architects. Housing developments and family member The site of this house was a housing development which had passed around 40 years since the area had started selling. There are over 400 houses but they have no value as a property and people who are living in are not so young anymore. The demands of client are: an over 330 square meter land space and enough distances from neighbors for a better privacy. Then the site was thought as the better conditions because of the low price of land and the density of the development.
Site Plan (closeup)
场地图(特写)
在日本,郊区住宅开发似乎正在走向消亡。但如果我们能从这位客户的角度来看,它是年轻一代居住的最佳场所之一,因为它能够以非常低的价格买下这些地块,而且周围都是丰富的自然景观,尽管它需要大约30分钟的时间才能到达市区。
Suburban housing development it seems is dying out in Japan. But if we can think as the sense of this client, it is one of the best places for young generations to live because it is able to buy the lots at a very low price and surrounded by the rich nature although it takes around 30 minutes to city area.
© Kai Nakamura
(C)中村凯
计划开始时,它开始被规划为一个庭院式的,115平方米的建筑面积。但悬崖上有限制。在这个时候,这是不可能建立在一半的地段。然后,第一个露台计划被分成两个L形状,其中一个被放在另一个。它在悬挑的二楼和主卧室的宽阳台下做了一个枕套。车库上有起居室,它把丈夫的图书馆和家庭空间分开。入口处也是楼梯,每个房间都有起居室的通道。另一方面,最大化家庭空间和移动空间,最小化个人空间。
Plan At first, it started being planned as a patio-styled and 115 square meter of the floor area. But there is a restriction about the cliff. At this time, it was impossible to build on the half side of the lot. Then the first patio plan was split into two L shapes and the one was put on to another. It makes a pilotis under the cantilevered 2nd floor and the wide balcony upon the master bedroom. There is the living room over the garage it is split the husband’s library from the family spaces. The entrance hall is also the staircase it is planned as the passage with living room to each rooms. Maximizing family spaces and spaces for moving on the other hand minimizing personal spaces.
© Kai Nakamura
(C)中村凯
Second Floor Plan
二层平面图
它需要高侧窗,使内部更轻,因为没有窗户在北侧墙。就像窗户从屋顶冒出来一样。它被玻璃环绕在柱子周围。这似乎是夜间发展的灯笼。
It needs the high side window makes interior lighter because there is no window on the north side wall. As if the window popped up from the roof. And it is created as surround the pillars by the glasses. It seems like the lantern of this development in the night time.
© Kai Nakamura
(C)中村凯
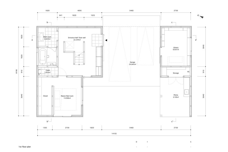
First Floor Plan
一层平面图
新旧富裕的郊区生活,并不是真正的效率和方便,而是创造了富裕的生活和丰富的文化。它增加了那些远离自然而无法感受到季节或天气变化的人口。刺激量被认为是生命中最重要的指标。交流,艺术和文化,或独特性和多样性,好像他们不再需要了。
Old and new wealthy suburban life It is not true efficiency and convenience creates wealthy life and rich culture. It growing the population who are living far away from the nature and are not able to feel the changing seasons or weather in their life. The quantity of stimulus is thought as the most important index of the life. Communication, art and culture or uniqueness and diversity, as though they didn’t need anymore.
© Kai Nakamura
(C)中村凯
足够的隐私让人敞开心扉。在炎热的夏天洗澡,在寒冷的冬天坐在炉火前,喝一杯咖啡,在微风中看着摇曳的树木。这座房子是为这样一种古老而又富有的郊区生活方式而设计的。
The enough privacy makes people open. Water shower in hot summer, sit in front of fire in cold winter, drinking a cup of coffee, looking swinging trees in the nice breeze. This house was planned for such an old and new wealth suburban life style.
A-A Section
A-A科
© Kai Nakamura
(C)中村凯
B-B Section
B-B科
客服
消息
收藏
下载
最近


























