查看完整案例


收藏

下载
Courtesy of TDO architecture
tdo架构
架构师提供的文本描述。Fab House是一个由tdo架构设计的新的模块化建造房屋类型,与GeorgeClarke合作为合资企业开发人员和城市Splash开发场所。
Text description provided by the architects. Fab House is a new modular constructed house typology designed by TDO architecture, working in collaboration with George Clarke for joint venture developers Places for People and Urban Splash.
这是最新的建筑师设计的房屋类型在房子由城市飞溅组合。
It is the latest architect-designed house typology in the House by Urban Splash portfolio.
在北泰恩赛德,在北盾史密斯码头的高原上建造了一个由十栋房屋组成的露台,这是一家繁荣的造船厂的旧址,在过去30年里一直处于休眠状态,现在正被这家合资企业改造成一个充满活力的新街区。
In North Tyneside, a terrace of ten houses has been built on The Plateau of Smith’s Dock in North Shields, the former site of a thriving shipyard which has lay dormant for the past 30 years, and is now being transformed into a vibrant new neighbourhood by the joint venture.
Courtesy of TDO architecture
tdo架构
在美国投资组合中,早期的先例包括由shedkm设计的“镇屋”,这是一种定制的建筑设计,消费者可以根据这种设计选择自己的楼盘。十栋Fab房屋的露台坐落在一个总体规划中,旁边是24栋新月形的城镇住宅和一套80单元的公寓,由辛普森·豪格(SimpsonHaugh)设计,目前仍在建设中。
Earlier precedents in the US portfolio include Town House, designed by shedkm, a custom-build design whereby consumers could select their own floorplan. The terrace of ten Fab Houses sits in a masterplan alongside a crescent of 24 Town Houses and an 80-unit apartment, the Smokehouses, designed by SimpsonHaugh, which is still under construction.
Courtesy of TDO architecture
tdo架构
英国正遭遇住房短缺,这已不是什么秘密。在一个自动化程度不断提高的时代,模块化制造可能会彻底改变这个行业的生产力。通过在场外设施中准备模块,尽量减少现场风险和日程问题,从而产生成本效益高、浪费效率高的过程,这与传统的施工实践相比,确保了更一致的质量。
It’s no secret that the UK is suffering a housing shortage. In an age of increasing automation, modular fabrication could revolutionise productivity in this sector. With modules prepared in an off-site facility, site risks and scheduling concerns are minimised, resulting in a cost effective and waste efficient process which in contrast to traditional construction practices, ensures a more consistent quality.
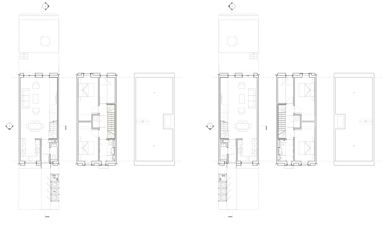
Ground Floor
正如Fab House所证明的,设计不需要在这个过程中被边缘化。TDO采用了巧妙的设计策略,在不牺牲美丽的当代居住空间的情况下,精心设计,创造了一种低成本和高材料效率的住宅类型。Tdo从一开始就与场外承包商SIG密切合作,寻找“免费的细节”来曝光,为室内设计带来个性和质量。例如,地板的组合式盒式磁带中的木天花板托梁已经暴露,这一策略将地板到天花板的高度提高到2.88米,同时确保与桦木面胶合板楼梯的材料连续性,该楼梯被视为一个雕塑物体,插入开放式接待空间。白桦树铺设的楼梯间顶上有一个天窗,它与接待室和主卧室的从地板到天花板的窗户结合在一起,使室内充满了自然的光线。
As Fab House proves, design doesn’t need to be sidelined in the process. TDO has applied smart design strategies to finesse the detailing to create a house typology which is low cost and material efficient, without sacrificing beautiful contemporary living spaces. Working in close collaboration with the off-site contractor SIG from the outset, TDO looked for ‘free detail’ to expose, to bring character and quality to the interiors. For example, the timber ceiling joists in the modular cassettes of the floor plates have been exposed, a strategy which increases floor-to-ceiling heights to 2.88 metres, whilst ensuring material continuity with the birch-faced plywood staircase, which is treated as a sculptural object inserted into the open-plan reception space. The birch ply stairwell is top- lit by a skylight, which, combined with floor-to-ceiling windows in the reception space and master bedroom, floods the interiors with natural light.
Courtesy of TDO architecture
tdo架构
TDO还确定了在制造过程中提高效率的机会,例如在包层系统中部署中央对准,以便承包商不必对齐四个角,只有两个角。公差增加,最终外观得到更好的控制。包层的中心对准延伸到门窗,设定建筑的整体节奏,并在露台上建立一个结构合理和令人满意的构图。服务被隐藏在包层后面的服务区中,在到达时可以直接从工厂地板连接到外部。这给了外观的重量和持久性的感觉,而不是通常与模块构建相关的。这是强调与规格的深灰色赤道板,抵消了Corten钢裹尸布周围的门廊,创造庇护的元素,同时参考该地点的工业遗产。
TDO also identified opportunities to make efficiencies in the fabrication process, for example by deploying central alignments in the cladding system so that the contractor did not have to align four corners, only two. The tolerances are increased and the final appearance much better controlled. The centre alignment of the cladding extends to the windows and doors, setting the overall rhythm of the building and establishing a structured and satisfying composition in the terrace. Services are concealed in a services zone behind the cladding, which can be connected externally on arrival direct from the factory floor. This gives a sense of weight and permanence to the façade not commonly associated with modular builds. This is emphasised with the specification of dark grey Equitone board, offset by the Corten steel shroud around the porch which creates shelter from the elements whilst referencing the site’s industrial heritage.
TdoArchitecture主任TomLewith说:“
很高兴为这个开拓性的项目做出了贡献。Fab House是与乔治·克拉克(GeorgeClarke)和广泛的R.
Tom Lewith, director, TDO Architecture, said:
“We are delighted to have contributed to this pioneering project. Fab House is the culmination of a rewarding design collaboration with George Clarke and extensive R&D with SIG Off-site. Modular construction has a vital role to play in reaching housebuilding targets, and as a young practice we’re excited to be part of this.”
Courtesy of TDO architecture
tdo架构
代表合资伙伴奈杰尔·布鲁尔(Nigel Brewer)表示:“我们在史密斯码头(Smith‘s Dock)计划中的关键部件之一是模块化住宅,我们与乔治·克拉克(George Clarke)合作,委托tdo设计一种现代建筑方法(Mmc)预制房屋类型,这将构成我们第一阶段的一部分。结果是10个完美的现代生活家园。tdo团队已经成功地规划出了一个与现代生活兼容的空间,我很高兴我们的共同愿景现在已经成为现实。“
On behalf of the joint venture partners, Nigel Brewer, Places for People, said: “One of the key components within our plans at Smith’s Dock is modular housing, and we commissioned TDO in collaboration with George Clarke to design an exemplar modern methods of construction (MMC) pre-fabricated house type which would form part of our first phase. The result is 10 striking homes which are perfect for contemporary living. The TDO team has managed to plan out a space compatible with modern life and I’m delighted that our shared vision is now a reality.”
Courtesy of TDO architecture
tdo架构
Architects TDO Architecture
Location The Plateau, Smith's Dock, North Shields NE29 6TF, United Kingdom
Area 910.0 m2
Project Year 2018
Category Housing
Manufacturers Loading...
客服
消息
收藏
下载
最近
































