查看完整案例


收藏

下载
架构师提供的文本描述。Tomi House位于新泻县的Yuzawa,一个以降雪特别大而闻名的小镇。我们第一次介绍这个网站是在2015年1月。在一条干干净净的道路旁,矗立着一座四米左右高的雪山。“就是这样”我们被告知。我们的任务是建造一座开阔而宽敞的房子,这四口之家被雪淹没了半年,可以舒舒服服地享受周围的绿色植物和繁星的天空。
Text description provided by the architects. Tomi House is located in Niigata Prefecture's Yuzawa, a town notable for its particularly heavy snowfall. Our first introduction to the site was in January of 2015. By the side of a neatly cleared road rose a mountain of snow four meters or so high. "This is it" we were told. Our brief was to build an open and spacious house from which this family of four, inundated by snow for half the year, could comfortably enjoy the surrounding greenery and starry skies.
© Koichi Satake
(Koichi Satake)
© Koichi Satake
(Koichi Satake)
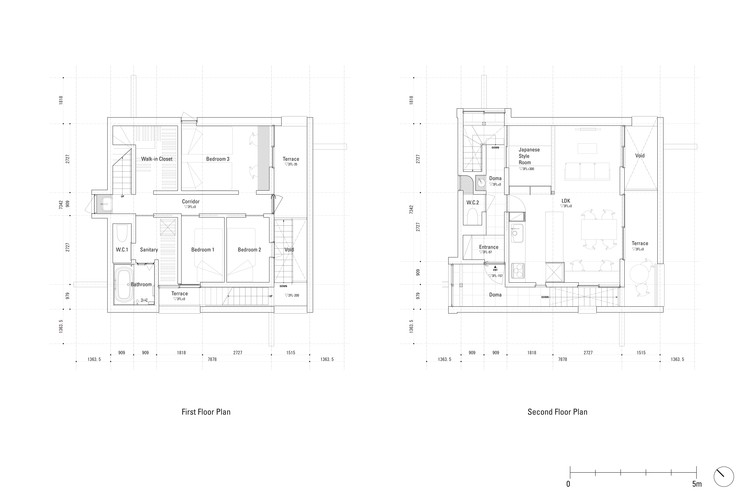
由于必要,该地区的住宅通常是建立在凸起的混凝土基础上,使居住空间高出地面。在考虑了客户的日常需求和将室外空间融入大厦的方式,以及他们希望创造的新的居住环境之后,我们决定采用三层楼的设计。三楼是入口处和共用的居住空间。二楼分为中等大小的5平方米私人房间。
Through necessity, dwellings in the area are typically built on raised concrete foundations, elevating the living space high above ground level. After considering the clients' everyday needs and ways to incorporate outdoor space into the building, as well as discussing the new living environment they hoped to create, we settled on a three floor design. The third floor houses the entrance and a shared living space. The second floor is divided into modestly-sized 5sqm private rooms.
Section A-A'
A-A节
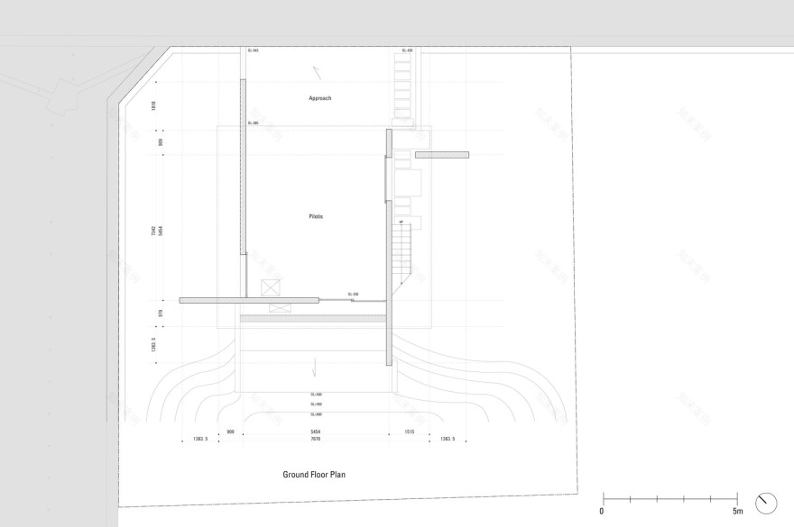
底层由凸起的混凝土基础组成。这个空间通常用作车库,完全被混凝土包裹,并被光线和新鲜空气阻挡。我们选择把这片空间敞开开来,创造出一片通风明亮的空间,为家庭(如果不是整个社区)提供一个宜人的聚会场所。我们充分利用了当地建筑大会(俗称“降雪地区高层住宅规范例外”)中列出的参数,开始浇筑墙高钢筋混凝土地基。在地基上,我们没有像往常那样浇筑钢筋混凝土板,而是铺设了一个轻型木框架,上面有两层楼高的房屋。
The ground floor comprises the raised concrete foundations. This space would normally serve as a garage, enveloped completely in concrete and blocked off from light and fresh air. We opted to open the space up wide, creating an airy and bright expanse to act as a pleasant gathering place for the family, if not the entire neighborhood. Taking full advantage of the parameters outlined in the local building convention, known as the "Code Exception for Raised-floor Housing in Areas of Heavy Snowfall", we set about pouring the wall-height reinforced concrete foundations. Atop the foundations, rather than pouring a reinforced concrete slab as is typical, we laid a light wood frame, on top of which sits the two-storey house.
© Koichi Satake
(Koichi Satake)
木框架采用互惠结构,将结构材料保持在最低限度,同时使5.4m宽的洞口和充满活力的1.5米悬空成为可能。由此产生的地下面积,在这种轻薄的木框架下面,让人联想到露台天花板,表明了对这类建筑的关键做法及其独特的挑战。同时严格遵守地方法规和当地方言,并铭记最高的安全标准。
The wood frame makes use of a reciprocal structure, keeping structural materials to a minimum while making the 5.4m-wide opening and dynamic 1.5m overhang possible. The resulting underfloor area, below this light wooden frame reminiscent of a gazebo ceiling, suggests a critical approach to this type of building and its unique challenges, while strictly adhering to local regulations and local vernacular and with the highest safety standards in mind.
1st and 2nd Floor Plan
一楼及二楼图则
© Koichi Satake
(Koichi Satake)
当地居民不仅要与严寒的西北风和无情的暴风雪抗衡,还要与夏日的酷热抗衡。为了全年在房子内创造一个稳定舒适的环境,我们把大楼包在一个长长的楼梯上,一直延伸到三楼入口,还有多个露台,形成了一个既可用作防风林,又可用作日光室的缓冲地带。这种内部和外部之间的模糊界线使房屋能够适应当前的气候和需求,允许生活方式的灵活性和更大的空间感。
Inhabitants of the local area must contend not only with winter's harsh northwest winds and unforgiving snowstorms, but also the summer sun's unrelenting heat. In order to create a stable and comfortable environment within the house all year round, we wrapped the building in a long stair extending up to the third-floor entrance, as well as multiple terraces, creating a buffer zone which can be used as both windbreak and sunroom. This blurred line between interior and exterior allows the house to adapt to suit the climate, and needs, of the moment, allowing flexibility of lifestyle and a greater perception of spaciousness.
© Koichi Satake
(Koichi Satake)
采暖冷却由位于天花板空腔内的单反循环空调器提供,内排风道风扇在每层地板的壁上强制空调,从而产生辐射加热和冷却效果。因此,取暖和冷却不是通过过度加热或冷却空气来维持舒适的室温,而是直接通过建筑物内部的墙壁传递给人们。这座建筑深深地借鉴了由来已久的当地词汇,即凸起的地板、防风林和日光室,同时也发现了这些陈腐的惯例,并重新解释了其中的细微之处。通过同时符合和打破模式,我们努力实现一种将塑造当地景观和生活方式的建筑。
Heating and cooling is provided by way of a single reverse cycle air conditioner unit situated in the ceiling cavity. An inline duct fan forces conditioned air within the walls of each floor, resulting in a radiant heating and cooling effect. Thus, rather than maintaining a comfortable room temperature by excessively heating or cooling the air, heating and cooling is delivered directly to the people within via the walls of the building itself. The building draws deeply from the long established local vocabulary of raised floors, windbreaks and sunrooms, while finding nuance in and reinterpreting these staid conventions. By simultaneously conforming to and breaking the mold, we have striven to realize an architecture that will shape both the local landscape and way of life.
客服
消息
收藏
下载
最近


















