查看完整案例


收藏

下载
架构师提供的文本描述。基摩小屋独自矗立在新南威尔士州农村贡达盖郊外的一座小山上。这是新增加的基摩村,第二代农场,已多样化,以举办婚礼和提供住宿展示该地区的自然美景。从字面上讲,这是一个关闭和忘记现代生活的干扰的地方。
Text description provided by the architects. The Kimo Hut stands alone on a hill outside Gundagai in rural New South Wales. It is the latest addition to Kimo Estate, a second generation farm which has diversified to host weddings and provide accommodation showcasing the areas natural beauty. It is a place to switch off, quite literally, and forget about the distractions of modern life.
© Hilary Bradford
希拉里·布拉德福德
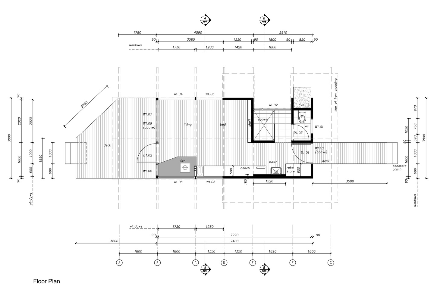
Elevations
© Hilary Bradford
希拉里·布拉德福德
可持续的澳大利亚硬木是显而易见的选择,鉴于棚屋的生态‘简短和偏远的位置。材料需要很容易地获得和处理现场由两人业主-建设者团队。
Sustainable Australian hardwoods were the obvious choice given the huts ‘eco’ brief and remote location. Materials needed to be easily sourced and handled on site by a two person owner-builder team.
© Hilary Bradford
希拉里·布拉德福德
棚屋形式的灵感来自一个经典的‘A’框架帐篷,它同时提供了躲避自然环境和与自然环境的联系。一种表达出来的硬木结构锚定了建筑物,定义了内部空间,并对周围的农田形成了框架。木材在整个棚屋里都有特色,手工制作的细节让人想起了在这片土地上发现的农业建筑的特点。
The huts form was inspired by a classic ‘A’ frame tent, which simultaneously provides both refuge from, and connection with, the natural environment. An expressed hardwood structure anchors the building, defining the interior spaces and framing views of the surrounding farmlands. Timber features throughout the hut, with hand crafted details recalling the character of agricultural buildings found on the property.
© Hilary Bradford
希拉里·布拉德福德
客服
消息
收藏
下载
最近


























