查看完整案例


收藏

下载
© René de Wit
勒内·德维特
架构师提供的文本描述。传统上,位于赫托根博什的梅里杰(Meierij of‘s Hertogenbosch)的大多数农舍都有各自独立的部分,如生活区、存储空间和牛棚等,它们是一个以前的行政领域或辖区。然而,随着时间的推移,这些紧凑的建筑常常变得过于拥挤,无法容纳所有这些功能,并增加了一个单独的谷仓。这些建筑通常是由当地提供的材料建造的,基本上遵循农舍本身的结构模式。
Text description provided by the architects. Traditionally, most farmhouses in the Meierij of ’s Hertogenbosch, a former administrative realm or bailiwick, have their separate parts such as living quarters, storage space and cowsheds integrated into a single building. Over time, however, these compact buildings frequently became too cramped to house all of these functions and a separate barn was added. These were usually built from locally available materials and largely followed the structural pattern of the farmhouses themselves.
© René de Wit
勒内·德维特
2017年,我们被告知,我们院子里有七棵百年老橡树的状况不佳。他们必须被砍掉。我们决定恢复一个古老的传统,而不是照例把树卖给造纸业。因此,通过更换一堆废弃的避难所和棚屋,我们将根据我们农场的巨大特点,用传统的技术,用当地收获的材料建造一个新的谷仓。除了我们从附近的Wamberg庄园买来的几棵橡树树干外,还有足够的木材来建造我们不得不砍伐的树的新谷仓。
In 2017 we were told that seven of the century-old oak trees in our yard were in bad shape. They had to be cut down. Instead of following the usual path and selling the trees to the paper industry, we decided to reinstate an ancient tradition. And so, by replacing a collage of obsolete shelters and sheds, we would, in line with our farm’s monumental character, build a new barn with locally harvested materials employing traditional techniques. Besides a couple of oak tree trunks we obtained from the nearby Wamberg estate, there would be enough timber to construct the new barn from the trees we had to cut down.
© René de Wit
勒内·德维特
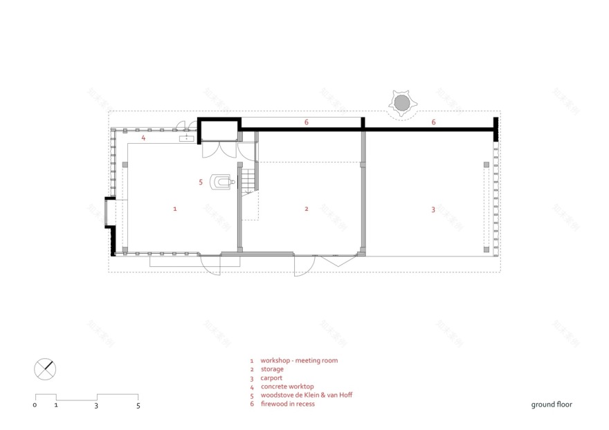
我们的新的横向谷仓是由四个系杆夫妇桁架连接的纵向弦杆,顶部有一个屋顶,由拉杆支撑。屋顶有一个不对称的几何学,有一个陡峭和低倾斜的一面。谷仓内有三个空间:一个车库、一个储藏室和一个供办公室使用的车间/会议室。储藏室上方的阁楼对车间开放。
Our new transverse barn is constructed with four tie-bar couple trusses that are connected by longitudinal stringers topped by a roof supported by rafters. The roof has an asymmetrical geometry with a steep and a low pitched side. There are three spaces inside the barn: a carport, a storage room and a workshop/meeting room for office use. The loft above the storage room is open to the workshop.
© René de Wit
勒内·德维特
© René de Wit
勒内·德维特
一个移动式锯木厂被带到院子里,用来把新鲜的树干切成框架和屋顶的结构木材,以及立面的木板。为此,我们使用了最优质的木材,从树木的核心部分,并去寻找适当的用途,其余的,较不耐用的部分。在车间和车库里,用树皮支架作为挡板来遮挡玻璃。树皮与混凝土混合,建造末端墙,这样它们就能与树木繁茂的环境融为一体。采用软边材板作为混凝土模板,对新鲜木材的压印进行了模塑。短长度被劈开,用作屋顶瓦。这种劈裂木材的粗糙性确保了这种未经处理的屋顶将持续数十年。最后,剩下的被砍成木柴堆在谷仓的凹处的北面。
A mobile sawmill was brought to the yard and used to cut the fresh tree trunks into structural timber for the frames and roof as well as planks for the façades. For this we used the best quality wood from the trees’ core sections and went in search of suitable uses for the remaining, less durable parts. Stanchions with bark were employed as slats to shield the glazing in the workshop and carport. Bark was mixed with concrete to construct the end walls so they would blend in with the wooded environment. Soft sapwood planks were used for concrete formwork to mould the imprint of fresh wood. Short lengths were cleaved and used as roofing shingles. The roughness of this cleaved timber ensures that this untreated roofing will last for decades. And finally, the rest was chopped and stacked for firewood in the barn’s recessed north façade.
© René de Wit
勒内·德维特
未经处理的木材、混凝土和玻璃以各种方式混合在一起。用于建造模板的木料的不规则尺寸导致了混凝土表面的不完美。残余的边材模板被嵌入混凝土和单宁酸从新鲜木材留下的变色。树木中的钢铁夹杂,如铁丝网和弹片,大概可以追溯到1944年,给木材带来了瑕疵。这些额外的情况在木材和混凝土中造成了一层意想不到的痕迹。
Untreated timber, concrete and glass have been intermingled in various ways. The irregular dimensions of the wood used to build the formwork resulted in far from perfect concrete surfaces. Remnants of the sapwood formwork became embedded in the concrete and tannic acid from the fresh timber left discolorations. Iron and steel inclusions in the trees, such as barbed wire and shrapnel, presumably dating from 1944, brought imperfections to the timber. These additional circumstances created an unexpected layer of traces in wood and concrete.
Construction Diagram
施工图
谷仓的美学受到巧合的强烈影响。它使这座当代建筑成为一种重要的表达方式,它以一种奇妙而非凡的方式将新旧融合在一起。
The barn’s esthetics have been strongly influenced by coincidence. It lends this contemporary building a vital expression that merges old and new in a wonderful and extraordinary way.
© René de Wit
勒内·德维特
Architects HilberinkBosch architects
Location Berlicum, The Netherlands
Lead Architects Annemariken Hilberink, Geert Bosch
Project Year 2018
Photographs René de Wit
Category Houses
Manufacturers Loading...
客服
消息
收藏
下载
最近





















