查看完整案例


收藏

下载
© Jessica Marcotte
c.杰西卡·马尔科特
架构师提供的文本描述。奥斯陆是一个城市填充项目在佛罗里达大道东北在不断增长的阿特拉斯地区。在过去十年里,这一地区的年轻专业人员迅速涌入。奥斯陆迎合了这一群体与时尚精品集团的生活。这座建筑是一个八单元的多家庭项目。
Text description provided by the architects. The Oslo is an urban infill project on Florida Ave NE in the growing Atlas district. The area has seen a rapid influx of young professionals in the last ten years. The Oslo caters to this group with on-trend boutique group living. The building is an eight-unit multifamily project.
© Jessica Marcotte
c.杰西卡·马尔科特
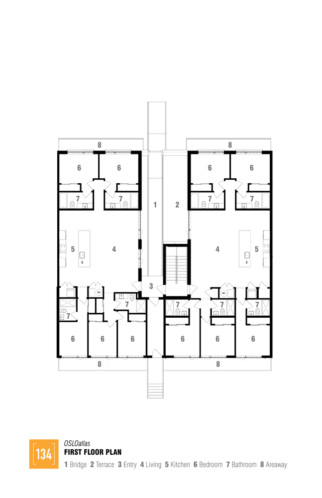
这八个单元各有五间卧室,每间都有私人浴室。这种独特的布局使单位为年轻的,单身的专业人士理想。这座巨大的现代外墙被一座巨大的入口院分开,表面上覆盖着锰铁点砖。
Each of the eight units has five bedrooms, each with a private bath. This unique layout makes the units ideal for young, single professionals. The monolithic modern façade clad in manganese iron spot brick is split down the center by a monumental entry court.
© Jessica Marcotte
c.杰西卡·马尔科特
入口处的设计部分是由于需要一个可到达的坡道,以及设计团队希望从繁忙的佛罗里达大道过渡到大楼入口。斜坡漂浮在一个安静的公共露台之上,位于地窖的水平。结构的背面给原本昏暗的胡同区域带来了生机勃勃的色彩。
The entry court design was partially driven by the need for an accessible ramp as well as the design team’s desire to provide a transition from the busy Florida Ave to the building entry. The ramp floats above a serene communal terrace located at the cellar level. The back of the structure brings vibrant color to an otherwise dull alley area.
后立面上有一幅40英尺高、色彩鲜艳的当地艺术家壁画.建筑的密集和严酷的材料选择创造了一个引人注目的,但最小的设计,把结构从传统的新建筑,提高到一个建筑物的细节和完成典型的高设计现代主义。
The rear façade contains a 40-foot-high, brightly colored mural by a local artist. The building massing and stark material selection create a striking yet minimal design that elevates the structure from conventional new construction to a building with detailing and finishes typical of high design modernism.
© Jessica Marcotte
c.杰西卡·马尔科特
Architects Square 134 Architects
Location 1219 Florida Ave NE, Washington, DC 20002, United States
Lead Architects Samson S. Cheng AIA, Ronald P. Schneck Jr. AIA
Area 14968.0 ft2
Project Year 2017
Photographs Jessica Marcotte
Category Residential
Manufacturers Loading...
客服
消息
收藏
下载
最近












