查看完整案例


收藏

下载
架构师提供的文本描述。临安市以其景观闻名于世。这个项目的思想来源于临安的景观。运用写意笔法,勾勒出山川景观,与临安市深厚的文化遗产相吻合。
Text description provided by the architects. Lin'an City is famous for its landscape. The idea of this project originated from the landscape of Lin'an. Using the freehand brushwork method, it outlines the landscape of the mountains and rivers, which is consistent with the profound cultural heritage of the city of Lin'an.
© Qiang Zhao
赵强
结合场地低坡、缓坡的地貌特点,将体育中心设计为一种独特的等高线高程形式,在城市整体水平上对周围的山脉作出响应,像一条绿色的脉,非常喜欢南北的天然山体。通过将层次和地貌相结合,该建筑可以与城市自然相连接,创造出一批高水平的活动平台,极大地提高了网站的可访问性和参与度。
In combination with the geomorphic features of the low hill and gentle slope in the site, we have designed the sports center as a unique form with the elevation of the contour lines, responding to the surrounding mountains on the overall urban level, like a green vein, closely liking the natural mountains in the north and the south. By combining the layers with the geomorphology, the architecture can connect with the urban nature and create a number of high level activity platforms, which greatly improves the accessibility and participation of the site.
© Qiang Zhao
赵强
项目占地面积161亩,需要安排体育馆、训练馆、游泳馆、户外运动场、商业配套等各种功能,土地紧缺。该计划以体育综合体为起点。一方面,体育馆的身体被双层表面的锥形和穿孔板包裹起来,创造出一种半透明和轻盈的视觉效果。有了灯笼,这个遗址就成了一个引人注目的城市地标。
The project covers an area of 161 mu, and we need to arrange various functions such as gymnasium, training hall, natatorium, outdoor stadium and business support, and the land is scarce. The plan takes the sports complex as the starting point. On the one hand, the body of the gymnasium is wrapped with the tapered and perforated plate of the double surface to create a translucent and light visual effect. With the lantern, the site is made into a striking city landmark.
2F floor plan
2F平面图
另一方面,充分利用了场地的高度差异,将其他功能整合在一起。景观处理技术以堆叠梯田为设计意图,与周围的山地环境相协调,形成一个连续的平台模型,同时突出体育馆的主体形象。
On the other hand, the height difference of the site is fully utilized and the rest of the functions are integrated together. With the stacked terrace as the design intention, the landscape processing techniques help form a continuous platform model, coordinating with the surrounding mountain environment, and at the same time it can highlight the main image of the gymnasium.
© Qiang Zhao
赵强
该项目作为支撑中心的重要组成部分,包括儿童公园、大型超市、健身中心、KTV和各种餐饮空间,以及沿途和内街的直线商业带,满足了市民对健身、休闲和娱乐的复杂需求。
As an important part of supporting the center by itself, the project includes a children's park, a large supermarket, a fitness center, KTV and a variety of catering spaces, and a linear commercial belt along the sides of the road and the inner street can meet the complex appeal of fitness, leisure and entertainment for citizens.
© Qiang Zhao
赵强
Stadium section
体育场段
该站点首先分为三个站,差5米,内部道路被引入功能块。相应的建筑体积被放置在每个功能块中。地板的高度也设置在5米,这样每层的屋顶都可以与上面的地板无缝连接。
The site is firstly divided into three stations with a difference of five meters, and the internal road is introduced into the functional blocks. The corresponding building volume is placed in each functional block. The height of the floor is also set at five meters, so that the roof of each layer can be seamlessly connected with the above floor.
© Qiang Zhao
赵强
主大街上的主广场将普通观众引至平台二楼,底部设计为贵宾、运动员、乐器和媒体的通道,营造出一种立体、分层的交通组织方式。
The main plaza along the main street leads the ordinary audience to the second floor by the platform, and the bottom is designed to be the passage for VIP, athletes, instruments and media to create a three-dimensional and stratified traffic organization manner.
© Qiang Zhao
赵强
沿路布置平缓的台阶和草坡,减轻道路的立面,与景观带对接,形成简约典雅的空间效果。
Along the road around, the gentle steps and grass slope are arranged to alleviate the road elevation, docked with landscape belt to form the simple and elegant space effect.
© Qiang Zhao
赵强
整个体育中心围绕庭院设计了几组景观庭院和过渡空间,创造了丰富的空间体验。
The whole sports center has designed several groups of landscape courtyards and transitional spaces around the courtyard to create rich spatial experience.
© Qiang Zhao
赵强
体育馆采用三维桁架结构.上坡比赛大厅跨度74.4米,游泳训练馆采用网架结构,南北长110米,东西部跨距58.8米。
The gymnasium adopts the three-dimensional truss structure. The span of the upper competition hall is 74.4 meters, and the swimming training hall adopts space grid structure, with the length of the north and the south 110 meters, and the East and West span 58.8 meters.
© Qiang Zhao
赵强
除上述设计特点外,本项目是一座双星节能建筑.其主要措施包括:
In addition to the above design features, this project is a two-star energy-saving building. Its main measures include:
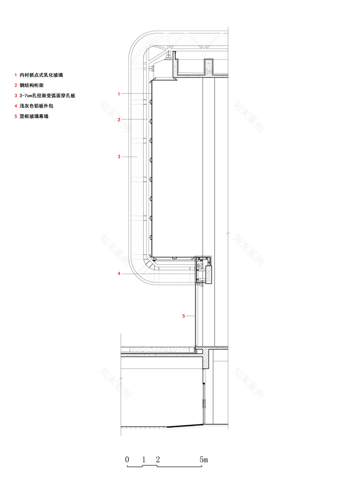
多个场馆设有屋顶灯管,白天不需要室内照明,可保证日常使用中所需的亮度。所有平台均为屋顶绿化,保温效果显著。体育馆外的渐进式开孔板窗帘为建筑物提供了外部遮阳,形成了内部柔和的光线。我们采用了先进的热泵、太阳能屋顶、雨水收集技术、LED照明等成熟的节能手段。
Several venues are set up with roof light pipe, which do not need the indoor lighting during daytime, and can ensure the required brightness in daily use. All platforms are rooftop greening, and the effect of heat insulation is remarkable. The gradual perforated panel curtain outside the gymnasium provides exterior shading for the building, forming the inner soft light. We have utilized advanced heat pump, solar roofing, rainwater collection technology, LED lighting and other mature energy-saving means.
© Qiang Zhao
赵强
客服
消息
收藏
下载
最近


































