查看完整案例


收藏

下载
架构师提供的文本描述。这些词就像露台、阳台和维兰达一样存在。这是日常生活中常用的词。但许多专家在使用这些词时并不知道确切的术语差异。事实上,也许没有必要去了解字典定义的不同。重要的是要了解那些建筑空间几乎无法生存的情况。
Text description provided by the architects. The words are exist like a Terrace, Balcony and Veranda. these're a commonly used word in everyday life. but Many experts use these words without knowing the exact terminological difference. in fact, maybe It isn't necessary to know about difference of dictionary definition. the important thing is to understand the situation that those architectural space is nearly can't survive.
© Donghwan Choi
(C)蔡东焕
包括房屋在内的公寓外部建筑空间已经不需要在法律上存在,这在“确认前计划”和“销售面积表”中都有记载。过去,居民(客户)在建筑完成后,已扩展至露台等习惯,有关的机构,他们觉得在积极改善这些违法行为方面,是受到限制的。所以,他们是从这些问题中解脱出来的。结果,这种不舒服的关系被搁置了下来。
Already, architectural outside space in an apartment including housing didn't have to exist in legally, this just documented in 'Plan before confirm' and 'Table of sales area'. in the past, residents (Clients) have extended to balconies like habits after completion of construction, Relevant institutions, they felt limited in improving these illegal actively. so, they were hands off from this problems. as the result The uncomfortable relationship was holded.
为解决集体共犯公开的问题,对相关法律进行了修改。这样,居民和行政当局的旧不安就得到了解决。而仅存在于图中的阳台,则失去了生存的最低限度的法律依据。这样,这种情况就可以被接受为“制度矛盾”和“我们的愿望”的结果。
To resolve situation of overt collective accomplice, finally balconies related laws are revised. with this, the old uncomfortable of the residents and the administration has been solved. but the balcony that exist only in the drawing is lost minimum legal basis for survival. In this way, the situation can be accepted as the result of 'institutional contradiction' and 'our desire'.
© Donghwan Choi
(C)蔡东焕
从根本上讲,问题在于人们认为梯田的使用价值在扩张后低于其内部空间价值。
The fundamental problem comes from the perception that the value of using terraces is less than its inside space value after expansion.
建筑外部空间必须证明自己的生存价值。
Architectural outside space must prove its worth for survival on its own.
© Jinseok Yu
(三)余金硕
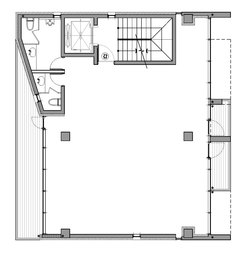
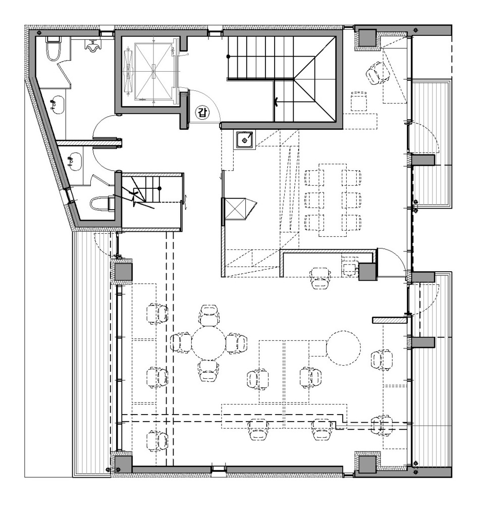
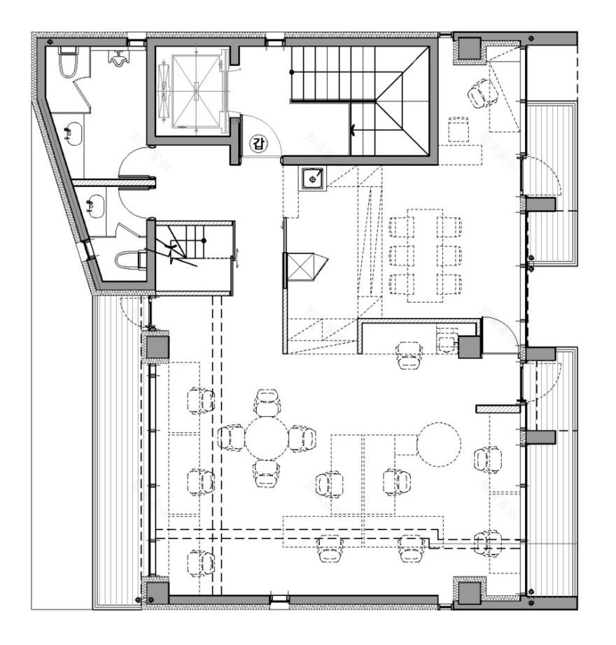
[露台生存游戏]是Maaps建筑师设计系列的主题之一。京东项目是皮肤系列.在本项目中,扩展了皮肤的含义,增加了几个特定的功能。
[Terrace survival game] is one theme that Maaps architects design series. Gyeongan-dong project is Skin series. In this project is expended skin's meaning and added several specific functions.
Front elevation
集功能、噪声、观察、控制天窗、内外缓冲空间于一体的传统露台设计为一体。
[Skin terrace] is designed as integrated result including traditional terrace which have function, noise, observation, controlling skylight and buffer space of inside and outside.
客服
消息
收藏
下载
最近






















