查看完整案例


收藏

下载
架构师提供的文本描述。这片土地位于Yucatan梅里达市以北的北Temozón警察局,拥有住房的特权位置,因为它是一个未来生长的地区,周围是植被,靠近未来的医院和大型商业综合体。
Text description provided by the architects. The land is located in the North Temozón Police Station, located north of the City of Merida, Yucatan, has a privileged location for a house, as it is an area with future growth, surrounded by vegetation, near future hospitals and large commercial complexes.
© David Cervera
(David Cervera)
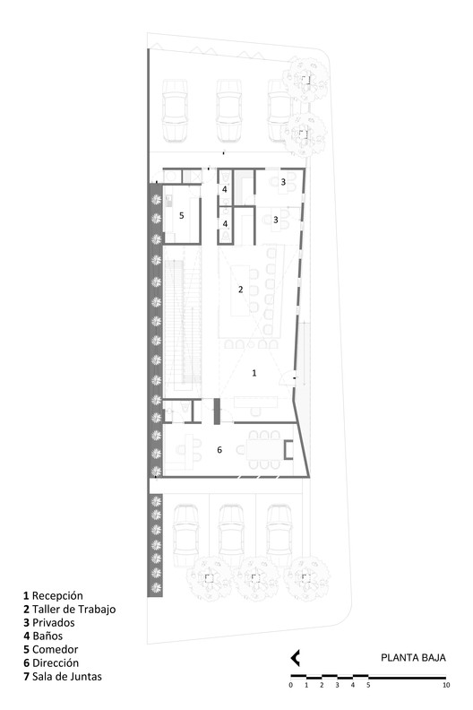
Ground Floor Plan
© David Cervera
(David Cervera)
项目开发区环境十分繁茂,前缘24.00米,底部40.00米,南北向。该项目的设计在很大程度上响应了这些因素,以及居住在其中的用户的需求,寻找非常现代的东西,功能和与国外有很多接触。
© David Cervera
(David Cervera)
一块面积为972.66平方米的土地,在一座工厂中解决了505.07平方米的方案。在传统的“L”中创建了一个概念性方案,它被打破了,产生了三个庭院,这些庭院清晰地表达了这些内容,在两者之间产生了在风循环方面作为功能的隐私,也产生了对所述美化庭院的看法。
With a plot of 972.66m², a program of 505.07m² was solved in a plant. A conceptual scheme in traditional "L" was created, where it was broken to generate three courtyards that articulate the volumes, generating both privacy between both as functionality in terms of wind circulation and views towards said landscaped courtyards.
© David Cervera
(David Cervera)
这一方案是围绕着三个庭院解决的:出入庭院、室内庭院和大型社会庭院,在这些庭院中,它们被一个社会和一个私人的空间所分隔。厨房不再是传统的服务空间,成为适应当代生活的社会领域的一部分。在楼上有一个很小的服务空间。
This scheme was resolved around the three courtyards: the access patio, the interior patio and the large social patio, where they are delimited by a social and a private volume. The kitchen ceases to be the traditional service space and becomes part of the social area adapting to contemporary life. On the upper floor there is a small space for services.
© David Cervera
(David Cervera)
Elevation and Sections
高程和剖面
© David Cervera
(David Cervera)
Chukum的光洁度被用于一些墙壁,这些材料来自该地区的一棵树的树脂,它具有天然密封的特性;而在另一些墙壁上,红色矿物学漆被整合到混合物中,使其看起来像该地区的旧庄园,而且维护程度很低。这座房子在国家两年一次的单身家庭住房类别中获得了一枚金牌。
The finish of Chukum was used in some walls, material that comes from the resin of a tree in the region, which has the property of being a natural sealer; and on other walls, the red mineralogical paint integrated into the mixture to give it the appearance of the old haciendas of the region and with these being low maintenance. The house won a gold medal at the State Biennial in the Single Family Housing category.
© David Cervera
(David Cervera)
Architects Boyancé Arquitectos
Location Mérida, Mexico
Main Architect Gerardo Boyancé Ancona
Architects in Charge Beatriz Bolio Aguilar, Andree Pasos Dzul
Area 505.07 m2
Project Year 2015
Photographs David Cervera
Category Houses
Manufacturers Loading...
客服
消息
收藏
下载
最近






























