查看完整案例


收藏

下载
© Carlos Díaz Corona / Fernanda Leonel
卡洛斯·迪亚斯·科罗纳/费尔南达·莱昂内尔
架构师提供的文本描述。该项目从两个主要因素出发:网站及其用户。这座建筑位于瓜达拉哈拉内部的一个古老的殖民地里,在那里,不同层次之间不规则的景观形成了主宰该地区的小峡谷。地面有一个长方形,街道在前面,峡谷在后面,那里有一棵大树被放置在街道的下面一层。这座房子被设计成两个主要用途:一个工作室和一个家;它是经过精心规划的,因为用户有日本血统,因此它的习俗受到了考虑和尊重。
Text description provided by the architects. The project departs from two main elements: the site and its users. The construction is located in an old colony inside Guadalajara where irregular landscapes among different levels ocurre to form small canyons which dominate the area. The ground has a rectangular form where the street is located in front and a canyon is located towards the back where a huge tree is placed one level below the street. The house was designed to achieve two main uses: a studio and a home; it was very carefully planned as the users have Japanese roots so its customs were considered and respected.
© Carlos Díaz Corona / Fernanda Leonel
卡洛斯·迪亚斯·科罗纳/费尔南达·莱昂内尔
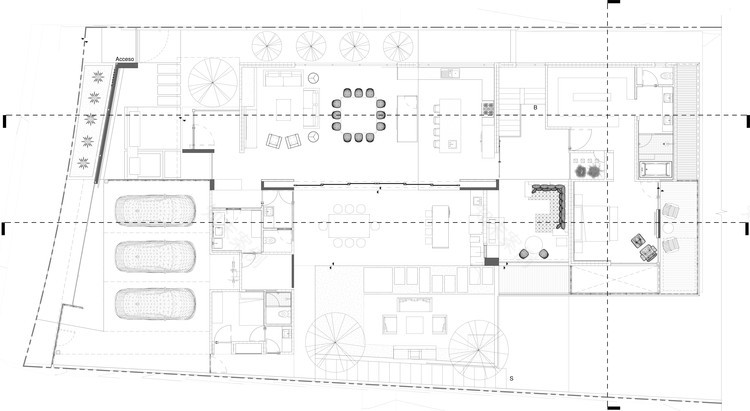
工作室位于车库上方,其特点是地板之间有非常宽敞的空间;另一卷(白色)指的是分布在两层的房子,位于下面的SocialaRea包括一个双高的露台,并允许从该地点已经存在的大树中得到庇护;卧室位于二楼,由一个小走廊连接到工作室的阁楼。
The studio is located above the garage, and is characterized by a very generous space between flooring; the other volume (in white color) refers to the house distributed in two levels where the social área, located below, embraces a double height terrace and allows to receive shelter from the great tree that already existed in the site; bedrooms are located on the second floor connected to the studio mezzanine by a small hallway.
© Carlos Díaz Corona / Fernanda Leonel
卡洛斯·迪亚斯·科罗纳/费尔南达·莱昂内尔
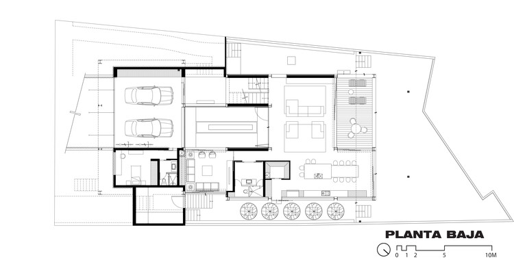
Ground Floor Plan
© Carlos Díaz Corona / Fernanda Leonel
卡洛斯·迪亚斯·科罗纳/费尔南达·莱昂内尔
这个概念分为三个因素:建筑物的结构、功能和形式。这一功能必须独立地应对空间的流通,这两个空间又由两根简氏(日本传统入口处)连接;一处位于车库内,另一处位于街道一级,以接待所有游客,从而形成一种以木材覆盖的中性元素,并与房屋的所有活动共存。
The concept is divided into three factors: the structure of the building, its function, and its form. The function must independently respond to the circulation of the spaces which in turn are connected by two gen kan (Japanese traditional entry área); one located inside the garage and the other one by the street level to receive all the visitors leading to a neutral element covered by wood and vinculated to the central inner yard that coexists with all the activities of the house.
© Carlos Díaz Corona / Fernanda Leonel
卡洛斯·迪亚斯·科罗纳/费尔南达·莱昂内尔
该结构是根据基础梁“H”的35x35,组装的箱子,并允许大的开放空间为两卷(黑色和白色)覆盖瓦楞纸。
The structure was forged respecting a base beam “H” of 35x35 which assembles the boxes and allows big open spaces to ocurre for both volumes (black and white) covered by a corrugated sheet.
© Carlos Díaz Corona / Fernanda Leonel
卡洛斯·迪亚斯·科罗纳/费尔南达·莱昂内尔
Architects Hernández Silva Arquitectos
Location Guadalajara, Mexico
Design Team Edgar Manuel Soltero Ramírez, Fernanda Castiello, Karen Centeno Ávila, Pastora Camarena
Area 768.0 m2
Project Year 2017
Photographs Carlos Díaz Corona / Fernanda Leonel
Category Houses
Manufacturers Loading...
客服
消息
收藏
下载
最近




































