查看完整案例


收藏

下载
未来感住宅 Future House一栋独特的、能让人印象深刻的房子并不多见,因为不仅在设计上要别具匠心,在建造上也要非常投入。今天要介绍的项目来自维也纳设计事务所 Ad2 Architekten 的作品,他们的建筑设计从办公室到住宅,都有着惊人的外观,为了达到真正的创新,他们才采取了如此大胆的设计。01Comed 住宅面积:400㎡
Comed 住宅有着充满未来感的折叠立面,就像一颗灰蓝色的钻石。从远处看,这栋建筑就像一扫来自未来的房子,上面画满了线条,充满了一种几何的美感。
不同的折叠面在日光的照射下能够有不同的反射效果,非常好看。
虽然充满未来感,但周围的环境尽量用绿化带来缓和冰冷的感觉。
室内设计同样有着非常特殊的风格,它根据业主的情况量身打造,提供了一整套完整的服务流程。超大空间的开放式厨房,有着黑白色调的搭配,配以灯带和射灯的光线效果,成为一个非常具有科技感的空间。
房屋的周围用了超大面积的透明落地窗来引入光线,并且从视觉上更进一步的提高了空间感。
卧室、卫生间内同样有着几何切割面一般的设计,并且在线条中隐藏了灯带。
临近花园的起居室有着皮质沙发,与充满透明、半透明的玻璃空间形成强烈的对比。
楼梯由很薄的踏板和半透明黑色玻璃组成,看起来相当轻盈。
入夜以后,这栋房子的外观在灯光投射出的绿植影子中,显得更加迷人。
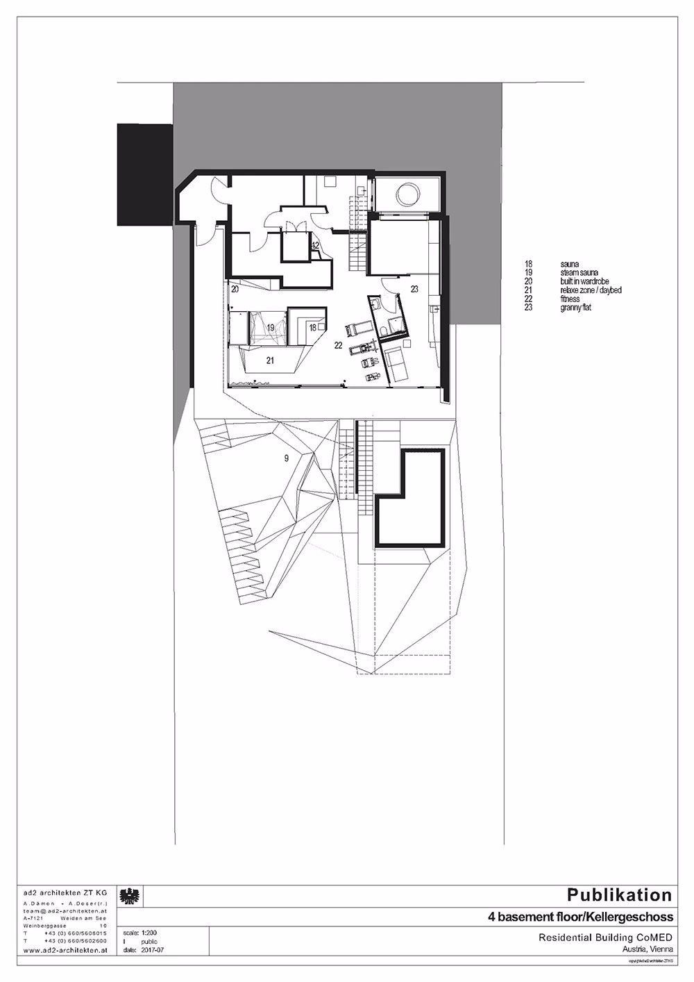
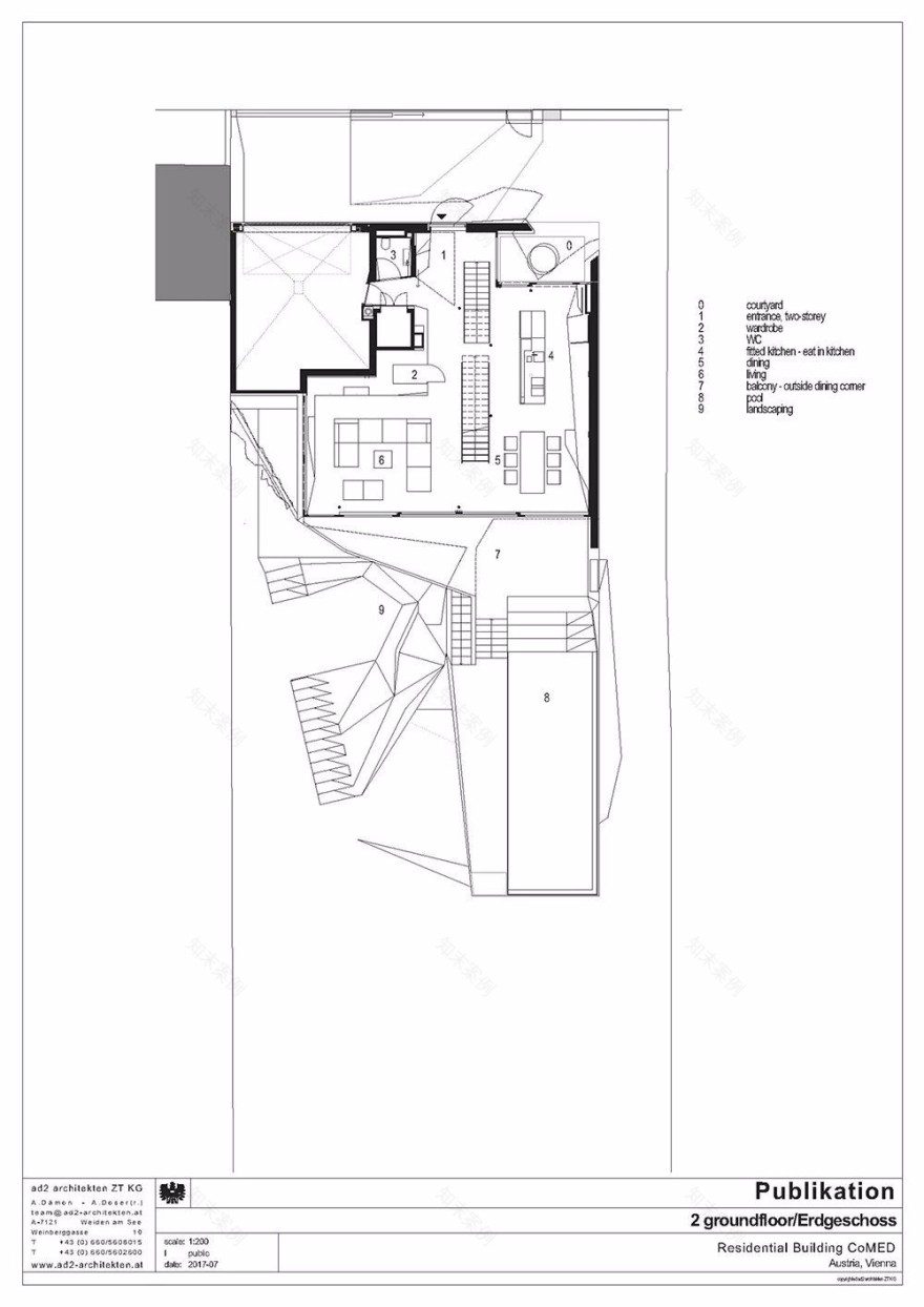
设计图纸
总平面
地下一层
一层
二层、三层02Cocooning
正如前面所说,Ad2 事务所的设计作品都有着非常惊人的外观。这栋住宅建筑同样拥有极具未来感的利落线条。
绿色的田野风光与灰色的建筑表面的铝制面板形成强烈的对比。
同样采用了落地玻璃窗来进行采光,同时将内外空间的界限模糊了。
室内设计以白色为主,在各个功能空间之间没有明确的区隔,而是以超宽敞的空间来取胜。
03Purple Rain
在一片绿树蓝天的环保之下,这栋看起来似乎是生锈的房子就立在这里。房屋带有一块超大的草坪和游泳池。
而内部空间则是以碎石子铺设而成,搭配石板形成一个相当粗粝的空间。
建筑的外表同样拥有着折叠性的设计概念,每一道看似不规则的切线都经过了特别的设计。
04Kitt 1 - Block Of Flats
这个项目是一个位于海边的住宅群楼设计,Ad2 事务所将所有的房子都设计成差不多的概念,并且将车库的位置移到了靠近湖边的地方。
建筑的外表以混凝土为主,车位的地板则采用了单色拼接地板。
室内以大开间的通透设计为主,尽量将空间感保持在一个非常宽敞的感觉。
平面图
立面图除了以上这些已建成的项目,Ad2 事务所还有一些正在建设中的项目。05Hallst
06Kitt Stok - Block Of Flats
客服
消息
收藏
下载
最近









































































