查看完整案例


收藏

下载
© Mansyur Hasan
C.Mansyur Hasan
架构师提供的文本描述。在爪哇人中,拉康指的是主角或主角。标题的选择是由于它的设计过程和它的执行,其客户是主要的参与者。从设计过程到执行,他一直是关注的焦点。从一开始,客户就收集他梦想使用的民族木料作为建筑的建筑元素。因此,它成为建筑外墙的一个区域的元素。
Text description provided by the architects. In Javanese, lakon means the main actor, or the protagonist. The title was chosen due to its design process and its execution whose client is the main actor. He is being center of attention since the design process until the execution. Since the beginning, the client collects ethnic wood material which he dreams to use it as architectural element of his building. therefore, it becomes element for one area of the façade of the building.
© Mansyur Hasan
C.Mansyur Hasan
客户还为这个办公室自己安排家具和其他元素(仍然按照建筑师的指示)来执行这个Graha Lakon(LARAS-Kontras,lais-kontemporer)或(和谐对比,老式的-当代的)。
The client also arranges the furniture and the other element for this office by himself (still also with the architect’s direction) to execute this Graha Lakon (laras-kontras, lawas-kontemporer) or (harmony-contrast, old-fashioned-contemporary).
© Mansyur Hasan
C.Mansyur Hasan
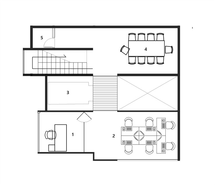
First floor plan
第一层平面图
© Mansyur Hasan
C.Mansyur Hasan
Second floor plan
二层平面图
© Mansyur Hasan
C.Mansyur Hasan
从外表上看,从砖料与民族木板的并列中,可以看出与之相反的和谐因素,并有着随机的印痕。这两种元素都被整齐地排列和包含在小的面板中,但是我们可以在有组织的和随机的排列中发现它的相反的力量。它也发生在砖块和现代元素(混凝土、玻璃、铁)的并置中,因为它的局部性和全球性(实际上是相反的)结合在一起,但在这个设计中仍然可以是和谐的。这样,他们之间就产生了紧张和亲密。
From the outside, harmony-contrary element can be seen from the juxtaposition of brick material and the ethnic wood panels with random impression. Both elements were neatly arranged and contained of small panels, but we can find its contrary power within the arrangement between the organized and the random. It happened also in the juxtaposition of bricks and the contemporary element (concrete, glass, iron), as the locality and globality (which actually contrary) come together but still can be harmony in this design. Thus made both tension and intimacy come up within them.
© Mansyur Hasan
C.Mansyur Hasan
Architects Andyrahman Architect
Location Madiun, Indonesia
Lead Architects Andy Rahman
Area 1270.0 m2
Project Year 2017
Photographs Mansyur Hasan
Category Houses
Manufacturers Loading...
客服
消息
收藏
下载
最近
























