查看完整案例


收藏

下载
Architects: Michael K Chen Architecture Project: Bank Street Apartment MKCA Project Team: Braden Caldwell, Michael Chen General contractor: Structure NYC Location: New York, United States Photographer: Alan Tansey
建筑师:Michael K Chen建筑项目:银行街公寓MKCA项目组:Braden Calwell,Michael Chen总承包商:Structure NYC Location:New York,美国摄影师:Alan Tansey
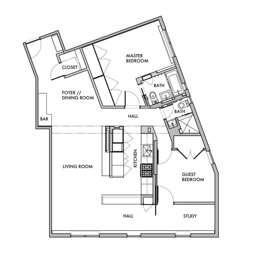
A thorough reinvention of a generously scaled but awkward post-war West Village Apartment. Lightened and subtly textured materials, and exactingly detailed custom elements create an elegant and informal living environment for a professional couple. A reconstructed kitchen, anchored by a sturdy block of richly figured Vermont marble and bleached ash establishes a functional and airy center that integrates an informal bar and entertaining zone, generous work area, and a pull-out concealed television.
彻底改造了一个慷慨但尴尬的战后西村公寓。轻盈、细腻的材质,以及严格的细节定制元素为一对专业夫妇创造了优雅而非正式的生活环境。一个重建的厨房由一块坚固的佛蒙特州大理石和漂白灰块固定,建立了一个功能和通风的中心,它将非正式酒吧和娱乐区、慷慨的工作区和一个隐蔽的电视相结合。
The kitchen is shifted to the center of the apartment creating a separate bar for casual dining and socializing. Concentrating all of the solid elements in the center of the apartment liberates the entire perimeter of the apartment facing Bank Street. A continuous sill running the width of the Bank Street apartment provides a location for a rotating gallery display. A home office at one end can be partitioned from the rest of the apartment with an oversized pocket door.
厨房被转移到公寓的中心,为休闲餐饮和社交提供单独的酒吧。集中在公寓中心的所有实心元素可以释放面对银行街的整个公寓周边。连续的窗台与银行街公寓的宽度相一致,为旋转画廊显示提供了一个位置。一端的办公室可以与公寓的其余部分隔开,带有一个超大的口袋门。
A slide-out television disappears into a millwork enclosure. The living room effortlessly transitions between an open and visually porous state conducive to conversation and socializing, and one that allows the television to be front and center.
一台滑出的电视消失在磨坊的外壳里。客厅毫不费力地在开放和视觉疏松的状态之间过渡,有利于交谈和社交,并允许电视成为前面和中心。
A built-in bar and banquette upholstered in a terracotta hued wool and custom dining table are inserted into an awkward entrance gallery, converting a leftover space into a generous and gracious entertaining and dining space.
一个内置的酒吧和班格装饰在一个赤陶色羊毛和定制餐桌被插入到一个尴尬的入口画廊,把一个剩余的空间变成一个慷慨和优雅的娱乐和餐饮空间。
客服
消息
收藏
下载
最近

















