查看完整案例

收藏

下载
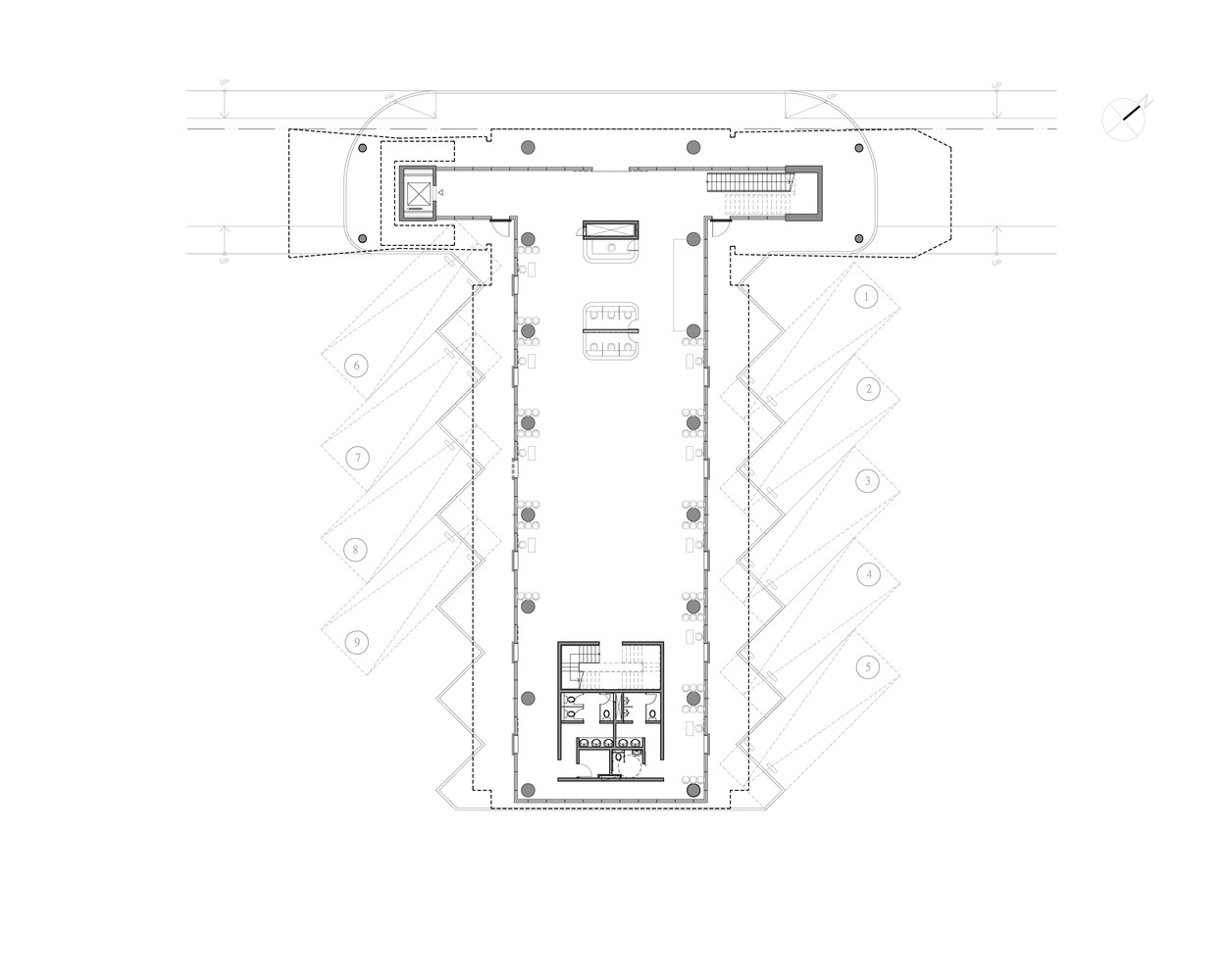
为了纾缓车站人潮与行车动线的壅塞与滞碍,并配合市区腹地发展规划,将人潮导引至后站,新竹市决定将客运转运站移至新竹车站正后方的此一基地。
因此,这座小小的转运站负担了两个任务:其一,是在地面层建立一座安全有效的客运车站;其二,是创造一座“招牌”式的建筑,让市民可以对此区重新定位。
以清水混凝土建造的转运站主体相当直接明了。客运车在外围遶行,旅客自站体中央进出,有效地避免了两者可能产生的冲突。
上方“招牌”造型则是以空体钢构构成,其外覆冲孔铝板。在白天,此巨型招牌主要显示出金属质感的银灰色,而在夜间,冲孔铝板内部的鲜红色藉由灯光露出,形成都市中新颖活泼力的辨识性。
客服
消息
收藏
下载
最近















