查看完整案例

收藏

下载
架构师提供的文本描述。Piedra Toro是一家8,800 SF,5间卧室,5间浴室,规格住宅,由长期合作的总承包商委托谁想要一个精心设计的当代住宅,可以吸引广泛的人在一个特定的豪华购房者市场。
Text description provided by the architects. Piedra Toro is a 8,800 sf, 5-bedroom, 5-bath, spec home commissioned by a longtime collaborating general contractor who wanted a well-designed, contemporary home that could appeal to a wide range of people within a specific market of luxury home buyers.
© Patrick Wong
(黄志平)
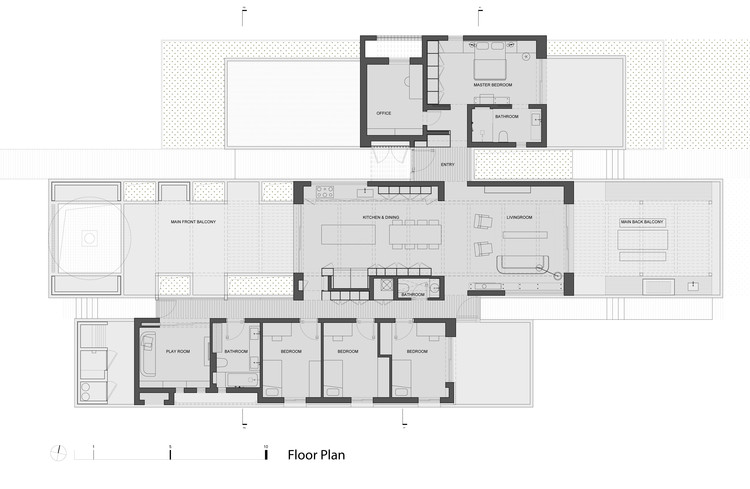
该房子的组织,以优化网站的景观和风景,同时提供最大限度的隐私。开放和通风的平面图通过创建从居住空间到东向花园和西方负面边缘池的视线连接到内部和外部。更多的私人卧室套房位于楼上,远离公共区域,每个卧室都有自己的浴室和步入式壁橱。
The house is organized to optimize the site’s landscape and scenic views while providing maximum privacy. The open and airy floor plan connects inside to outside by creating lines of sight from the living space to both the eastern-facing garden and western negative-edge pool. The more private bedroom suites are located upstairs, away from the public area, and each bedroom boasts its own bathroom and walk-in closet.
© Patrick Wong
(黄志平)
材料,如石灰石,纤维水泥面板和灰泥,使房子与周围的景观融合,同时保持一个独特的现代生活环境的内部。
Materials such as limestone, fiber-cement panels and stucco allow the house to blend with the surrounding landscape while maintaining a distinct modern living ambience on the interior.
© Patrick Wong
(黄志平)
客服
消息
收藏
下载
最近
























