查看完整案例


收藏

下载
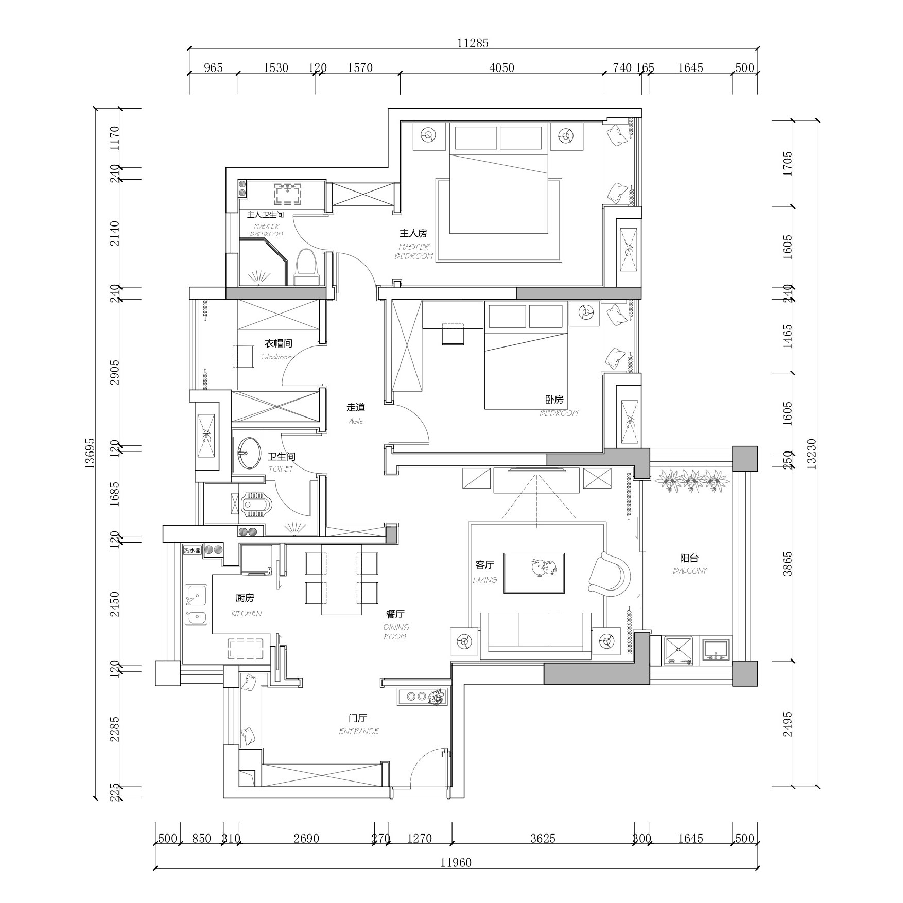
项目面积:116平方米
设计团队:武汉陈放设计顾问有限公司
施工团队:武汉陈放设计顾问有限公司
开工日期:20180910
许多西方国家在室内设计风格中留下了深厚的烙印,如英伦的奢侈、法国的贵气、还有美洲大陆的不羁。美洲由于其本身地大物博的地理环境,人们崇尚自由的文化氛围,造就了其自在随意的生活方式,形成了怀旧、贵气又不失自在的随意风格。美式风格的独特性在于其糅合了众多欧洲国家室内设计特色,独树一帜。有相当一部分崇尚自然舒适居住环境的中国人,尤其钟爱美式的家居氛围。
该项目常住人口为两人——中年岁数的屋主与已经成年的屋主女儿。在与C-IDEAS陳放設計®接洽设计事宜之前,屋主已经选定了 Harbor House 美式家居品牌,从家具到软装饰品全部选用该品牌产品。另外,屋主还要求必须有墙板,以保证墙面十几年的使用寿命。所以不同于以往,该设计方案在我们拿到户型图之前,就已经被限制了家具、软装风格和特定的设计元素,是一个“命题作文”。
一个100平米左右的户型,做纯美式风格是有相当大难度的。我们不仅需要在家居空间中营造轻松活泼且的氛围,将“家”作为父女情感归属的容器;还需要在空间布局上,充分考虑两名已经独立的成年人,在私人空间和共用区域的生活轨迹。做到既不互相干扰又保持良好的沟通环境。
我们尝试了多种配色方案,最终决定以木色家具、豆绿与咖色为主,营造一种大自然氛围感,亲和动人。我们应用条形美式元素墙板,以温和的豆绿色营造平和清爽的氛围,与局部浅色乳胶漆墙面分开,在视觉上提升空间高度。卧室墙板与客餐厅所用的有不同,选用了偏灰蓝的色调,更为安宁沉静。
全房面积不大,本身格局为三室两厅两卫,为了将空间在视觉效果上扩大,我们将入户过道改造为门厅,增加充满仪式感的玄关柜、墙板与吊顶,不仅是在视觉上,也对屋主的生活方式有着潜移默化的作用。小阳台改造为厨房,配上透明玻璃厨房门,增加内外通透感。在日落之时,厨房与餐厅将洒满金色的夕阳,一天之中的光影变化正是设计灵感的主要来源。两个卧室都拥有独立的卫生间,在私密空间上做以严格区分。
C-IDEAS陳放設計® 定制专属家居生活
客服
消息
收藏
下载
最近












