查看完整案例

收藏

下载
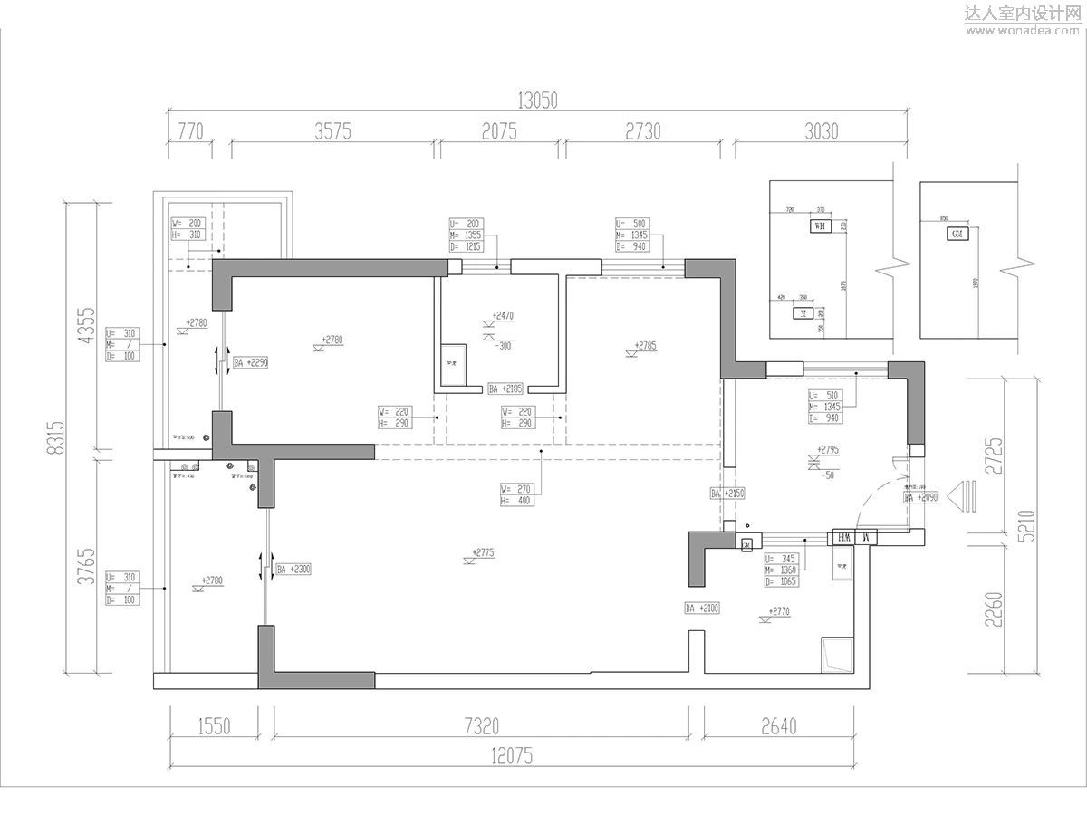
本案为南北通透的两室一厅,空间原有入户花园,开发商建议布局是将它作为餐厅,在客厅设立小型衣帽间。考虑到空间动线、业主习惯,我们将入户花园封起来,打造为宽敞的入户玄关,可以放一把单人椅、一张边几,让居住体验更佳舒适。
去掉客厅的衣帽间,改为餐厅。使用一整面超大容量的衣柜,充分满足收纳功能。改变厨房入门方向,在厨房与餐厅之间设置一面玻璃窗,为暗厨增加采光。洗手间借用次卧的空间,同时摆放淋浴房和浴缸……这套项目为全案托管项目,通过紧密的线上沟通、双方共同的信任和配合,本案进展十分顺利。感谢业主对我们的信任和支持!
走进这个家,时间就开始慢下来。没有传统的鞋架、换鞋凳。将入户花园改为玄关,放一把椅子、一张边几,悠闲的坐在这里换鞋子,把一天的疲惫全部卸下。
整个空间构筑中,把看电视作为一个很次要的功能,更在意人与人之间的互动,因此没有进行常规的沙发茶几摆位,而是让沙发面对阳台,静下来看窗外风景。轻便的边几、舒适的单人沙发,则是为平时喝茶准备的;将边几搬开,面对电视,又可以练习瑜伽,休闲放松。
客餐厅一整面柜子,全方位满足收纳需求。改变厨房入口,将原本的房门改为玻璃窗,增加厨房采光。轻便的圆形餐桌让空间动线更流畅。
主卧灰色硬包床头背景,配合灰色系原木床、床头柜,以及同色系的窗帘,让睡眠空间更加静谧舒适。
满足生活的小确幸,在卫生间里同时摆放淋浴房和浴缸。
阳台原木色的储物柜可以更好的收纳杂物。定制洗手台精准的尺寸完美的放进洗衣机,完美的细节才更匹配对生活品质有要求的她。▼软装搭配
▼ 效果图软装根据客户要求略有改动,硬装还原度100%,软装还原度90%。
客服
消息
收藏
下载
最近





















