查看完整案例


收藏

下载
架构师提供的文本描述。在距离海岸仅200米的这些庄园里,我们被召唤来为一家具有创业传统的家族企业增加价值。这些地产是业主的祖父作为50年代的一笔投资买来的,其所有权多年来一直被遗忘在后备箱里。
Text description provided by the architects. In these estates that are only 200 meters from the coast - bought as an investment in the 50's by the owner's grandfather and whose titles remained forgotten in a trunk for years - we were summoned to add value to a family business with an entrepreneurial tradition.
© Marcos Guiponi
马科斯·吉波尼
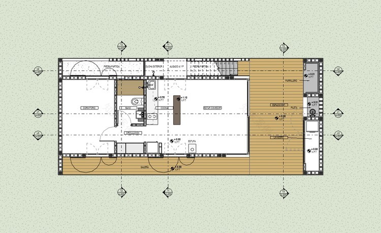
Ground floor plan
我们决定在两个对称的房子的一层,标记的角落,未来将告诉如何剩余的中间财产被占用。
We decide located two symmetrical houses of one level, marking the corners, the future will tell how the remaining intermediate properties are occupied.
最初的决定是尽可能少地影响现有的野生沙丘环境,由现有的刺槐筛选。
The initial decision was to affect as little as possible the existing wild dune environment, sifted by an existing acacia.
© Marcos Guiponi
马科斯·吉波尼
.当它在顶部时,它从海洋的前面接收到海洋气息,连同清新的微风,带来了与金属的高反应性的盐。我们设计了基于压实砌块的已调制房屋,墙体和开口具有较高的热性能,风暴中的掩体和夏季凉爽的地方。
. When it is on top, it receives from the front the oceanic breath that, together with its refreshing breeze, brings highly reactive salts with metals. We designed modulated houses based on compacted blocks, with high thermal performance in walls and openings, a shelter in storms and a cool place in the summers.
© Marcos Guiponi
马科斯·吉波尼
卡西塔住在他们的社交圈周围,从街道的视野中被保留下来,有狭窄的开口,向外的码头空间开放。它的可通过的屋顶是观察罗沙天空的星星。我们为最终产品感到自豪,该产品深受当地和游客的欢迎。
The casitas live around their social areas that are preserved from the views of the street with narrow openings, opening towards the external dock space. Its transitable roofs are to observe the stars of the sky of Rocha. We are proud of the final product that was very well received by the place and its visitors.
© Marcos Guiponi
马科斯·吉波尼
客服
消息
收藏
下载
最近










































