查看完整案例

收藏

下载
为了让家庭生活更融入自然,客户决定从斯德哥尔摩搬到瑞典南部一个名为 Oröd 的小村庄。这片场地坡度很陡,至中部达到高峰,横跨西边一个小湖和东边一个石子路。在湖边有一个70年代建造的小屋,以供客户在建造期间为监督进程而居住其中。项目的设计要求包括使用一个简单且造价较低的体量,和提供玩耍、工作、种植和聚会的空间。
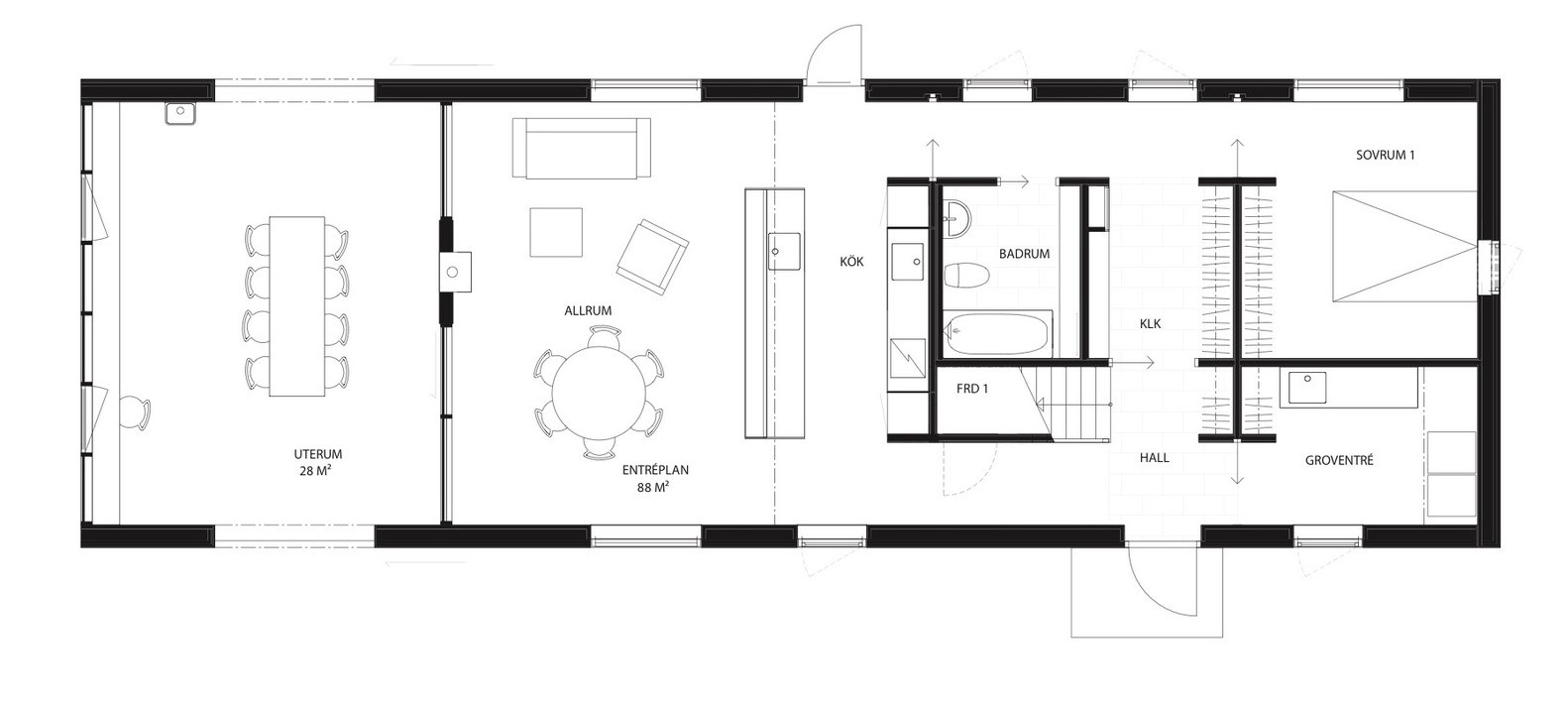
项目位于山顶附近,拥有明亮的内部空间,和森林和湖泊的景色。在场地东侧设有一个新的入口。房子是典型的谷仓形状:狭长的平面图,低矮的立面和45度的陡峭山墙形屋顶。外立面使用经铜绿处理的木板,门窗为木制,而屋顶上则使用镀铝锌钢板。
朝东西方向设有门和大窗户,面向庭院和景色。在北面,靠近邻居房屋的位置,立面相对封闭,只有小窗户通风。南面有一个巨大的玻璃幕墙,根据山墙形状覆盖了建筑的尽头。
根据客户对功能的要求,房屋只有四分之三的部分完全隔热,而在剩余空间的气候内则室外和室内环境中灵活变化。与许多老房子一样,这些空间的存在利用了瑞典的强烈季节变化,在冬天仅有较小的区域需要被完全加热。
这是一个灵活的空间,适合每个家庭成员的工作和日常琐事。一年任何时间的吃饭、休息和社交,在季节早期的种植和生长,在户外很冷保存植物和食物、油漆和鹅卵石。冬季时起居室内的壁炉供暖,而起居室设有两个方向的开口。
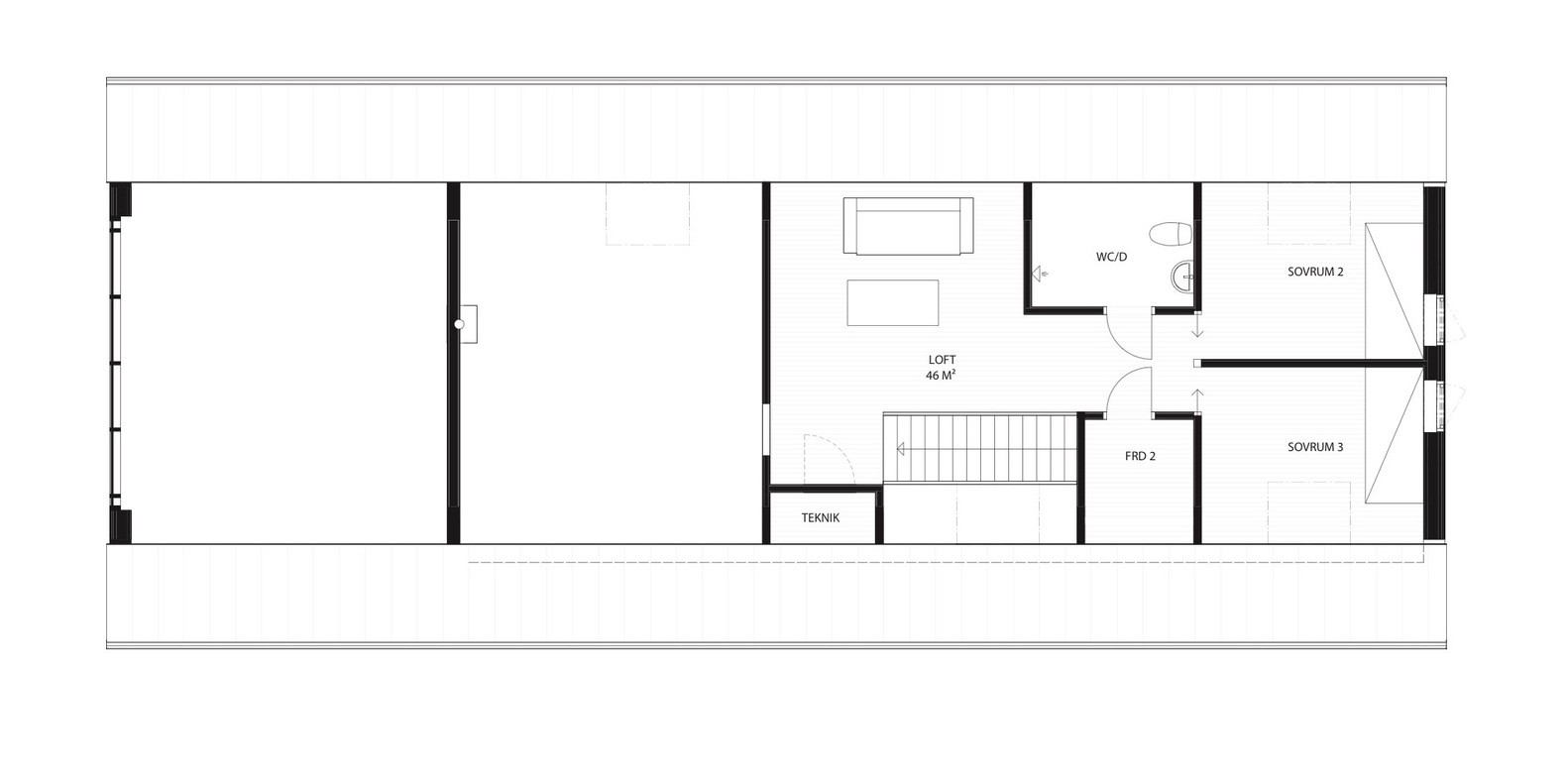
该建筑的一半设有阁楼,而另一半则有一个高达6米的天花板。阁楼主要供儿童使用。天窗将光线带入卧室,家庭活动室,楼梯间和下层入口。阁楼墙壁到起居室设有开口,允许空气在两层中流通。阁楼在厨房上方悬空并朝向起居室设有开口,这样既隐蔽又开放。室内利用白色内墙,胶合板外墙和天花板,以及磨光混凝土地板创造明亮而温暖的环境。
客服
消息
收藏
下载
最近





















