查看完整案例


收藏

下载
架构师提供的文本描述。该项目位于澳大利亚墨尔本的一个内城郊区,为客户在舒适的小区内的一个小街区内设计房子提供了一个解决方案。我们的客户寻求尊重现有的郊区法院的单一水平的特点,尽量减少他们的双层住宅的视觉影响。木材屏风被用作一种装置,用来软化后面的坚固的墙壁和统一正面。
Text description provided by the architects. This project is located in an inner-city suburb of Melbourne, Australia, and provides a response to the difficulty of designing a house to a client’s brief on a small block within a cozy neighborhood cul-de-sac. Our clients sought to respect the existing single level character of the suburban court by minimizing the visual impact of their double-story home. Timber screens were used as a device to soften the solid rendered walls behind and to unify the facade.
© Peter Bennetts
(Peter Bennetts)
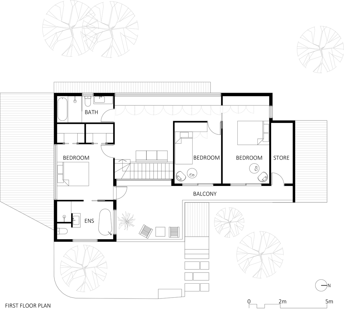
Ground Floor Plan
© Peter Bennetts
(Peter Bennetts)
向下倾斜的外部木材屏幕压缩正面,使房屋的幻觉朝向地面弯曲。宽敞的一楼阳台,丰富了盆栽植物,面向街道,创造了自然而非建造的天际线。栏杆的最低点面向街道,并与雕塑的入口遮篷结合,对周围的房屋发出柔和的点头。避免苛刻的材料的愿望促使了一种环境友好的内部,它使用油代替油漆、抛光的混凝土板和天然油的斑点胶楼梯和地板。
The downward sloping external timber screen compresses the frontage, giving the illusion of the house bending toward the ground. A spacious first-floor balcony, enriched with potted plants, faces the street to create natural rather than the built skyline. The balustrade’s lowest point faces the street, and combined with the sculptural entry canopy gives a gentle nod to the surrounding houses. A desire to avoid harsh materials prompted an environmentally friendly interior that uses oils instead of paints, polished concrete slab, and naturally oiled spotted gum stairs and flooring.
© Peter Bennetts
(Peter Bennetts)
该设计利用太阳能,北方方向,交叉通风,暴露混凝土地板,板条百叶窗和砖瓦贴面墙,创造了大量的热质量和减少能源使用,同时最大限度地增加居住者的舒适性。通过一种伦理和温和的方法,这一建筑解决方案协调了现代家庭的需要,并希望尊重和加强他们现有的邻居。
The design utilizes solar energy, northern orientation, cross-ventilation, exposed concrete floor, batten shutters and rendered brick veneer walls to create substantial thermal mass and reduced energy use while maximizing occupant comfort. Through an ethical and gentle approach, this architectural solution reconciles the needs of a modern family with a desire to respect and enhance their existing neighborhood.
© Peter Bennetts
(Peter Bennetts)
客服
消息
收藏
下载
最近



































