查看完整案例


收藏

下载
© Don Pieto
C.唐·皮埃托
架构师提供的文本描述。这座房子位于印度尼西亚雅加达的一个住宅区。它占地337,5平方米。这个项目周围的房子大多是地中海风格的,与此形成鲜明对比的是,这座房子是唐·皮耶托的一次尝试。
Text description provided by the architects. This house is located in a residential area in Jakarta, Indonesia. It occupies a 337,5 sqm plot of land. In contrast to the houses surrounding this project, which mostly adapted to Mediterranean style, this house is an attempt by Don Pieto & Henny Suwardi of DP+HS Architects to represent the younger generation’s taste which more keen into the natural and tropical modern atmosphere.
© Don Pieto
C.唐·皮埃托
简略很简单:为一对年轻夫妇建造的房子,有主卧室和其他卧室,供将来的孩子和拜访父母/姻亲之用。客户并不喜欢“封闭空间”的概念,他们显然想要一个内外混合在一起的空间,一种宜居的开放空间。
The brief was quite simple: a house for a young couple with a master bedroom and other bedrooms for children in the future and for visiting parents/in-laws. The client didn’t relish the idea of ‘closed space’, and they were clearly wanted a space where inside and outside blended together, a kind of livable open spaces.
© Don Pieto
C.唐·皮埃托
他们的基本想法是创造一个空间,让他们可以在自然的环境中庆祝生活,但仍然能够享受到丰富的当代便利设施。
The basic idea was to create a space where they can celebrate living in natural ambience, but still be able to enjoy ample contemporary amenities.
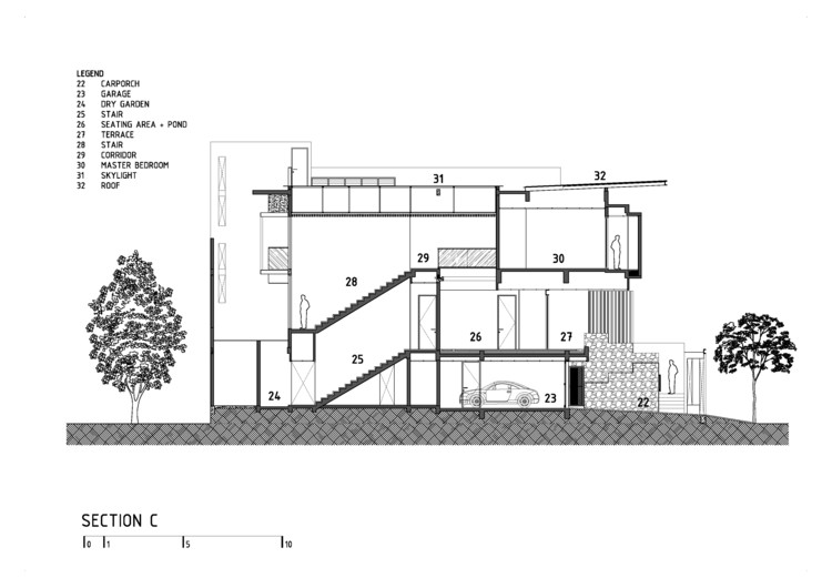
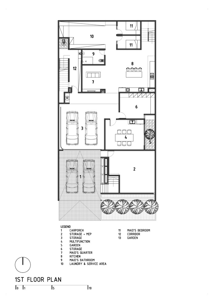
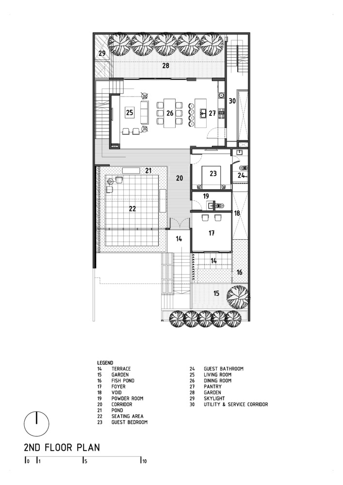
其策略是将住宅规划划分为三个层次,第一层包括车库和服务区,居住空间被提升到第二层,以使其更加暴露、更加开放,并符合居住空间的基本目的。第三层包括一个主卧室和儿童卧室,旁边是一个小型的上层起居室。我们的尝试是在宜居空间中重新创造自然氛围的感觉和感觉。我们把自然的动态转化为更可预测的结果。我们想闻植物的味道,我们想听到水滴,我们想让人们踏进冰冷的石头和温暖的木材的门槛,我们需要感受风的微风,我们想要在阴凉的阳光下,我们想要唤起感官,我们试图重新创造与重要人物在树下的感觉和记忆;还在考虑年轻夫妇日常生活的紧凑性。
The strategy is to divide the program of the house into three levels, the 1st level includes a garage and service area, the living spaces were being elevated to the 2nd level to be more exposed, more open, and in line with the basic purposes of a living space. The 3rd level includes a master bedroom and children’s bedrooms, alongside a small upper living room. Our attempt is to recreate the feeling and sense of natural atmosphere into livable space. We translate the natural dynamics of nature into more predictable outcome. We want to smell plants, we want to hear water drops, we want to let people step into the threshold of cold stone and warm timber, we need to feel the wind breeze, we want to be under the shady sunlight, we want to evoke the senses, we try to recreate the feelings and memories of being with important people under the trees; while still consider the compactness of young couple’s everyday lives.
© Don Pieto
C.唐·皮埃托
我们安排一个无障碍的生活空间,一个巨大的空白,强调开放,导致视觉和语言之间的空间和活动之间的联系,无论是水平的还是垂直的。空隙作为整个房子内部的光源,夹层玻璃天窗加上双层屏风来保护自己不受阳光直射,并在白天制造不同的阴影图案,同时帮助建立气氛。围绕着“活岛”的浅水池塘与交叉通风系统的空隙结合在一起,有助于降低白天的房屋温度。
We arrange an unobstructed living space with a large void to emphasize openness, leading to visual and verbal connection between spaces and activities, both horizontally and vertically. The void serves as the light source for the entire inner part of the house, with laminated glass skylight plus double layer screens to protect from direct sunlight and create different shadow pattern throughout the day, while help setting up the mood. The shallow pond around the ‘living island’ combines with the void for cross ventilation system help lowering the house temperature during the day.
© Don Pieto
C.唐·皮埃托
这个房子的调色板是相当直接的,天然的地球颜色和强烈的黑色结合在FA1ade上,而内部则使用单色的颜色来帮助强调植物和内部固定装置的不同颜色和纹理。
The color palette of this house is pretty straightforward, natural earth colors combined with strong black color dominates the façade, while the interior part uses monochrome colors to help emphasize the different colors and textures of the plants and interior fixtures.
© Don Pieto
C.唐·皮埃托
Architects DP+HS Architects
Location Indonesia
Lead Architects Don Pieto, Henny Suwardi
Area 680.0 m2
Project Year 2017
Photographs Don Pieto
Category Houses
Manufacturers Loading...
客服
消息
收藏
下载
最近



































