查看完整案例


收藏

下载
Aguçadoura住宅位于葡萄牙北部与之同名的海滩村庄的一块小型农用土地上。由于得天独厚的气候类型和土壤质量,周边地区也因为拥有许多种植蔬菜的温室而为人所知。
多年来由于土地分配推进缓慢,在Aguçadoura住宅周边仍有许多空置土地。基地由两个部分组成,住宅只占据了其中一部分,另一部分则是花园。两个部分之间有一条共享廊道可被用作停车空间。
由于住宅周围仍然没有其他构筑物,将围墙作为建筑的立面的延伸是十分重要的。围墙使用和建筑立面一样的材料和同样棱角分明的形态,具有很强的整体性。
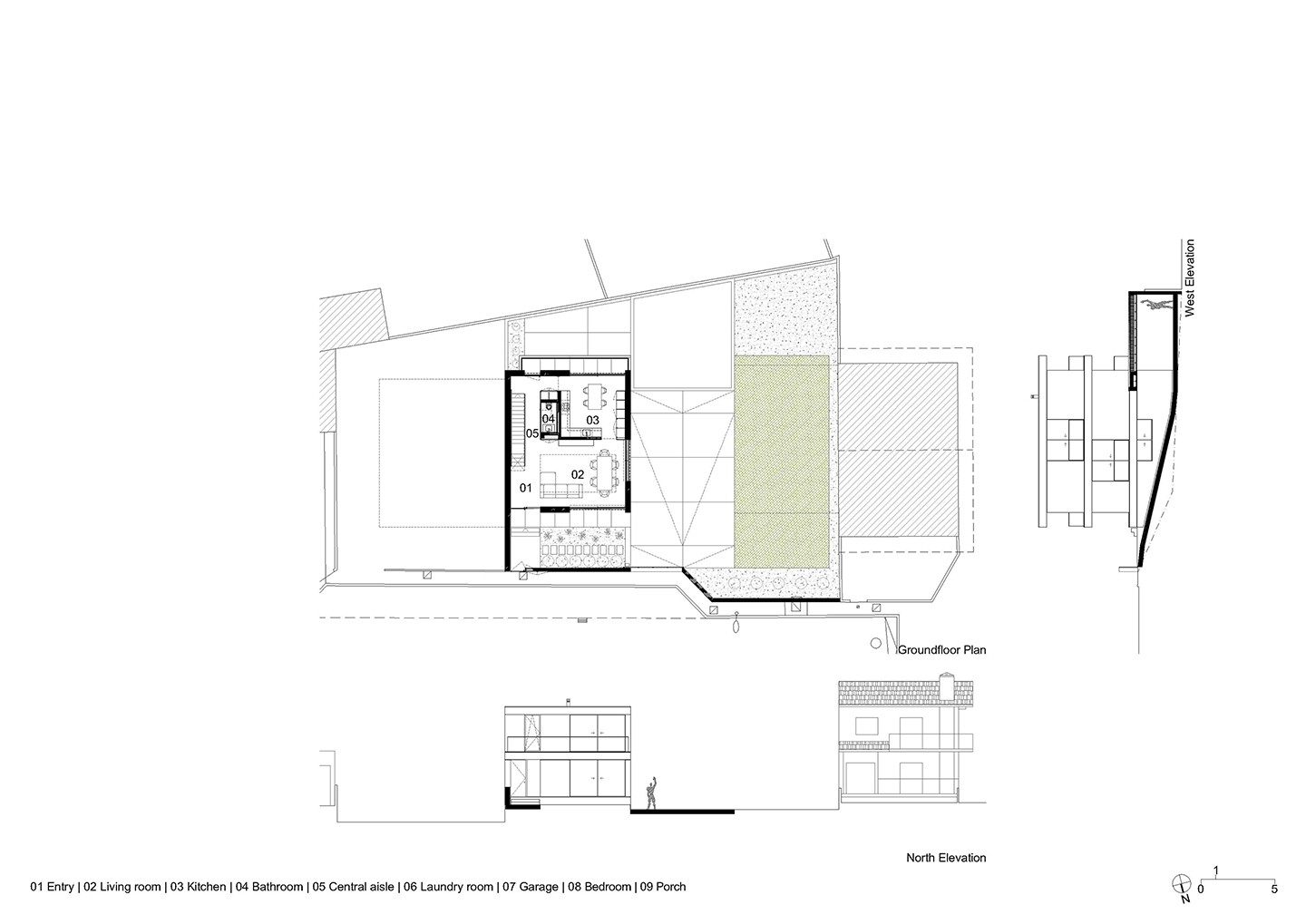
从住宅入口拾级而上就到达了中庭。从那里可以去到西北朝向的起居室,朝南的厨房和盥洗室,以及过道和楼梯。楼下则是车库、洗衣间和设备间,以及一个小洗手间。
二层有三间卧室,其中朝向南面和西面的两间共用一个卫生间,而朝北的卧室则拥有独立的卫生间。一条采光门廊将空间串联起来。
▼地下层平面图
▼首层平面图
▼二层平面图
▼剖面构造细部
客服
消息
收藏
下载
最近
































