查看完整案例


收藏

下载
© Grant Sparkes-Carroll
c.格兰特·斯帕克斯-卡罗尔
架构师提供的文本描述。牧师之家将一座现有的城中小屋改造成一座现代的,充满阳光的年轻家庭的家。新的厨房,居住和就餐区和一个阴凉的悬臂白钢外延伸,连接房子的内部和它的院子和户外生活区。
Text description provided by the architects. Clerestory House transforms an existing inner city cottage into a contemporary, light filled home for a young family. New kitchen, living and dining areas and a shady cantilevered white steel pergola extend out to connect the interiors of the house to its yard and outdoor living area.
Ground floor plan
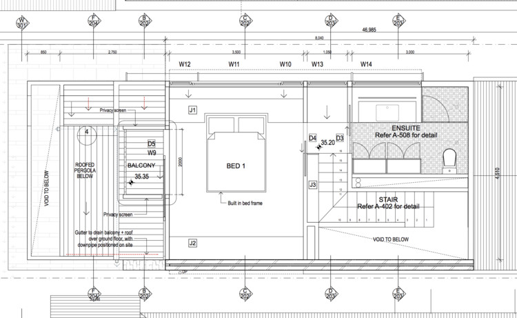
First floor plan
一楼平面图
作为家庭的中心,厨房与一楼的楼梯完美地结合在一起,最大限度地增加了存储空间、功能,并为家人和朋友提供了娱乐空间。
As the centre of the home, the kitchen is precisely integrated with the stair to the first floor to maximise storage, functionality and provide space for entertaining family and friends.
© Grant Sparkes-Carroll
c.格兰特·斯帕克斯-卡罗尔
从新的一楼开始,主卧室、套间和遮阳阳台都能看到绿叶的景色,可以看到后院和周围的街区,还保留了原有的树木和植被。通过仔细调整楼层和窗户、门和屏蔽部分的比例来保持居民的隐私。
From the new first floor, the main bedroom, ensuite and sheltered balcony have leafy views to the backyard and surrounding neighbourhood, with landscaping that retains the established trees and screening vegetation. Privacy for the inhabitants is maintained through careful modulation of the floor levels and the proportions of windows, doors and screening elements.
© Grant Sparkes-Carroll
c.格兰特·斯帕克斯-卡罗尔
根据工地的要求,接纳和保留附近住宅的自然光,新增加的建筑几何结构向北提升,在整个自然光和通风之间创造了一种平衡。在中间层板踢中间的两个新的层之间的房子,折叠的结构和共享太阳能通道和视野外的树梢。
Responding to the site requirements to admit and retain natural light to neighbouring dwellings, the structural geometry of the new addition lifts to the north, creating a balance of natural light and ventilation throughout. The kick in the mid-floor plate mediates between the two new levels of the house, to fold the structure and share the solar access and views out to the treetops beyond.
© Grant Sparkes-Carroll
c.格兰特·斯帕克斯-卡罗尔
一个材料调色板的黑臀木地板,全高度的玻璃,钢遮阳罩,和油漆砖墙亮和编织现有的建筑织物的小屋,以当代的补充。
A materials palette of Blackbutt timber floors, full height glazing, steel shade hoods, and painted brick walls brighten and weave the existing building fabric of the cottage to the contemporary additions.
© Grant Sparkes-Carroll
c.格兰特·斯帕克斯-卡罗尔
Architects Pearson Architecture
Location Leichhardt, Australia
Lead Architects: Sara Pearson, Elizabeth Muir, Pilar Lopez
Area 140.0 m2
Project Year 2017
Photographs Grant Sparkes-Carroll
Category Houses Interiors
Manufacturers Loading...
客服
消息
收藏
下载
最近
























