查看完整案例


收藏

下载
© Yohei Sasakura
(二)松平SAAKULA
架构师提供的文本描述。这所房子坐落在一条小路上。旧房子和传统依然存在的地方。在这条路的尽头是一个神道。每年,在长田松树节期间,都会沿着这条路走下去。对于这个住宅项目,我们的目标是创造一所房子,它与它的文本在物质性和几何学方面都是和谐的。
Text description provided by the architects. The house is sited on a path. Where old houses and tradition remain. At the end of the path is a Shinto shrine. Every year, omikoshi are carried along this path during the festivities of the Naginata Matsuri. For this residential project, we aimed to create a house which harmonizes with its con- text in both materiality and geometry.
© Yohei Sasakura
(二)松平SAAKULA
© Yohei Sasakura
(二)松平SAAKULA
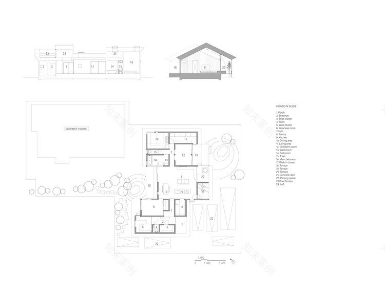
Plan + Section
规划处
© Yohei Sasakura
(二)松平SAAKULA
这座房子采用的是hiraya风格,由3个圣洁的基里祖马屋顶组成。透过狭缝和缝隙,蓝色的天空从内部清晰可见。两个花园是由空间构成的变化而产生的。一个是为了“宁静”和家庭。另一个,为了“运动”和热情好客。
The house is in the hiraya style, composed of 3 consecu- tive kirizuma roofs. Through slits and apertures, blue skies are visible from the interior. Two gardens are born from shifts in spatial composition. One for “tranquility” and family. The other, for “movement” and hospitality.
房子意识到时间和上下文的身份-以促进和平的生活和关系。宫城-移动式神社hiraya-一层日本房子基里祖马-日本倾斜屋顶
The house is conscious of time and contextual identity— to facilitate peaceful life and relationships. omikoshi – mobile shrine hiraya – Single-story Japanese House kirizuma – Japanese sloped roof
© Yohei Sasakura
(二)松平SAAKULA
Architects Horibe Associates
Location Japan
Lead Architects Naoko Horibe
Area 121.0 m2
Project Year 2018
Photographs Yohei Sasakura
Category Houses
Manufacturers Loading...
客服
消息
收藏
下载
最近


































