查看完整案例


收藏

下载
© Shane Blue
(Shane Blue)
架构师提供的文本描述。蓝色海滩是一个受欢迎的度假胜地,位于澳大利亚新南威尔士州的北海岸中部。在这个沿海村庄的原始房屋是简单的纤维或风化板结构。这些建筑虽然经得起风吹草动,但通常都能提供一种放松的海滩度假体验。不幸的是,当房产易手时,原来的建筑往往被郊区的大房子取代,它们对地方的认知度很低,与周围的环境关系也很差。
Text description provided by the architects. Blueys Beach is a popular holiday destination, on the Mid North Coast of NSW, Australia. The original houses in this coastal village are simple fibro or weatherboard structures. They are weather-beaten and basic, yet they generally offer a relaxing beach holiday experience. Unfortunately, when properties change hands, original buildings are often replaced by large suburban houses, which have little recognition of place and relate poorly to the immediate context
© Shane Blue
(Shane Blue)
这座房子是在一个空而窄的(12米x42米)的街区上设计的。该网站缓缓倾斜到后方,并有建立的房子在邻近的街区。客户的简介是一个简单的度假屋,在网站上创造了自己的舒适。它不能炫耀,必须与环境很好地配合。从海滩到房子的过渡应该很容易,表面要坚韧,这样耐用性就不重要了。
This house was designed on an empty but narrow (12m x 42m) block. The site slopes gently down to the rear, and there are established houses on neighboring blocks. The client’s brief was for a simple holiday house that created its own amenity on the site. It must not be ostentatious and must fit in well with the context. There should be an easy transition from the beach to the house and surfaces are to be hardy so that durability is not a concern.
© Shane Blue
(Shane Blue)
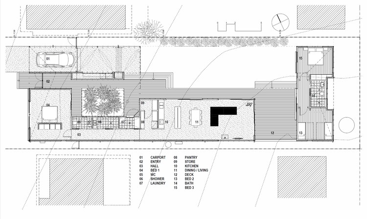
Floor Plan
© Shane Blue
(Shane Blue)
建造的形式被连接成一系列相连的聚集元素,在一个一致的屋顶形式下,落在场地的边界(创造一个低屋顶边缘面对街道和邻近的财产)。建筑物的质量是通过仔细的窗户布置(包括西南和东南高地的一些凹窗)、街道立面深处的凹槽形成入口门和车库、与前展馆中心花园对应的屋顶空隙、以及分隔主楼面和后卧室亭的一个大屋顶甲板来分解的。
The built form is articulated into a series of linked massing elements, under a consistent roof form which falls towards the site boundaries (creating a low roof edge facing the street and adjacent property). The building mass is broken up through careful window placement (including some recessed windows to the south-west and south-east elevation), deep recesses in the street elevation to form the entry door and carport, a roof void corresponding to the garden in the centre of the front pavilion, and a large roofed deck separating the main pavilion and the rear bedroom pavilion.
© Shane Blue
(Shane Blue)
生活空间很容易在阳光下打开到甲板上,或者有阴影的甲板和地板"卡波特"表面上是一个有屋顶的户外区域,用于Hammock或游戏。现场的大部分生活空间实际上都在建筑物外面,在院子里或者在甲板上。这与来访的室内/室外自然很好。与村庄的环境有关的材料是经济和耐腐蚀的。木材被广泛使用,地板是内部所有抛光的混凝土。
The living spaces open easily to the deck in the sun, or the shaded deck and the ‘carport’ is ostensibly a roofed outdoor area for hammocks or games. Much of the living space on the site is actually outside the buildings, in the courtyard or on decks. This works well with the indoor/outdoor nature of visiting here. Materials throughout relating to the context of the village, are economical and corrosion resistant. Timber is used extensively, floors are all polished concrete internally.
© Shane Blue
(Shane Blue)
屋檐和墙面衬里是纤维水泥。可持续的特点-正确定位热质量。对墙壁和天花板进行重绝缘,为WC收集雨水,洗衣,花园使用,尽量减少对建筑物的足迹,使用较少的材料和资源,可持续地使用木材,如重建木材隐蔽结构,热泵热水技术。
Eaves and wall linings are fiber cement. Sustainable features –Correctly orientated thermal mass. Heavy insulation to walls and ceilings, Rainwater harvesting for WC, laundry, garden usage, minimal footprint to the building, using fewer materials and resources, sustainable timber use such as reconstituted timber concealed structure, Heat Pump hot water technology.
Architects Bourne Blue Architecture
Location Blueys Beach, Australia
Lead Architects Shane Blue, Claire Lavis
Area 145.0 m2
Project Year 2017
Photographs Shane Blue
Category Houses
Manufacturers Loading...
客服
消息
收藏
下载
最近









































