查看完整案例

收藏

下载
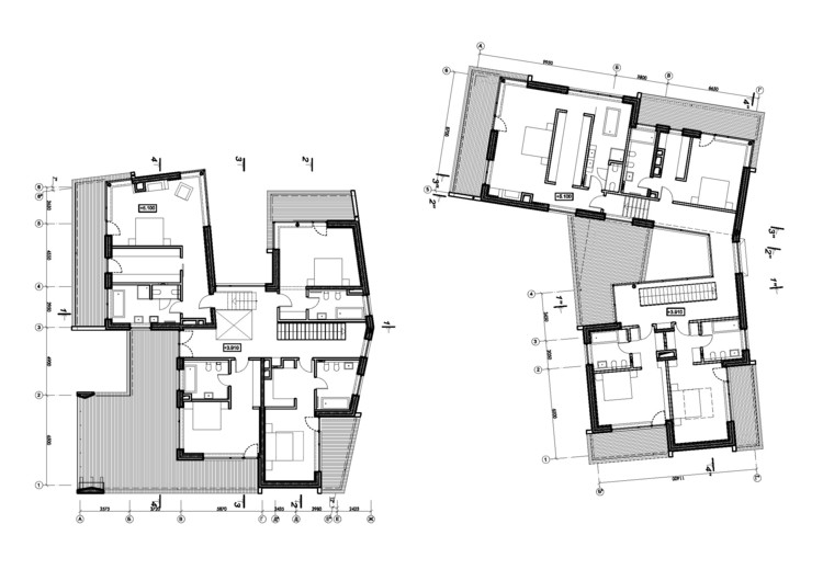
架构师提供的文本描述。这是附近两个兄弟的房子。发展的密度几乎是城市,虽然房屋的优势似乎偶然几何允许达到以下效果。客厅的窗户对着树林;同一设计的房子有不同的布局;还有一个庭院,有一个避暑屋供烧烤。粗糙的板岩外墙,加上建筑不规则的几何图形,给房屋增添了活泼、现代和中世纪的气息。在阳台和露台的装饰工作中,使用了轻质木材。
Text description provided by the architects. Those are the houses on two neighboring sites for brothers. The density of the development is almost urban, though the advantages of the houses with seemingly accidental geometry has allowed for achieving the following effect. The windows of the living-rooms face the woods; the houses of the same design have different layouts; there is a courtyard with a summerhouse for barbecue. The coarse slate façade in combination with the irregular geometry of the building give a lively, modern and at the same time medieval tone to the houses. In the decoration work on the balconies and terraces light wood has been used.
Text description provided by the architects. Those are the houses on two neighboring sites for brothers. The density of the development is almost urban, though the advantages of the houses with seemingly accidental geometry has allowed for achieving the following effect. The windows of the living-rooms face the woods; the houses of the same design have different layouts; there is a courtyard with a summerhouse for barbecue. The coarse slate façade in combination with the irregular geometry of the building give a lively, modern and at the same time medieval tone to the houses. In the decoration work on the balconies and terraces light wood has been used.
© DNKag, Ilya Ivanov
(DNKag,Ilya Ivanov)
© DNKag, Ilya Ivanov
(DNKag,Ilya Ivanov)
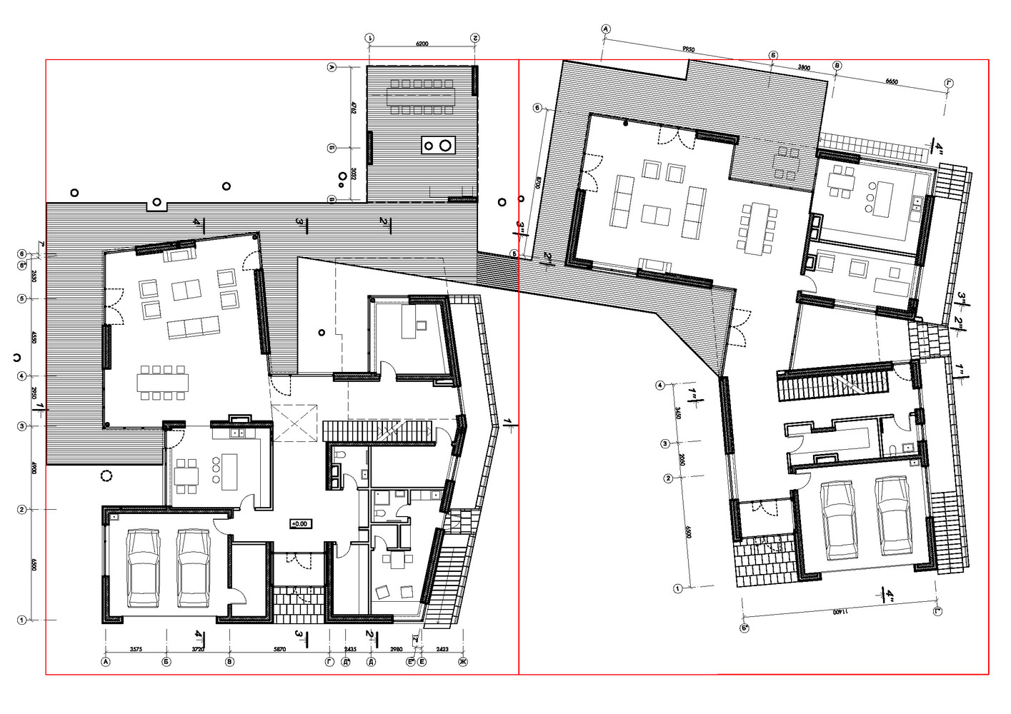
两卷书覆盖着粗糙的砂纸暗石板,窗户朝森林望去,但相距较近,形成了一个小小的庭院区-得到了一个深思熟虑而连贯的整体,既有自然的,也有城市的:现代版的“花园城”。而石面的质感对比突出了明亮的白色室内空间建筑师也致力于房子的内部设计。
Two volume covered rough sandpaper dark slate, the windows look to the forest, but placed close to each other and form a small courtyard area - get a thoughtful and coherent ensemble, both natural and urban: a modern version of the "garden city". And the texture of the stone façade contrasts highlighted bright white interior space - architects also worked on the interior of a house
Two volume covered rough sandpaper dark slate, the windows look to the forest, but placed close to each other and form a small courtyard area - get a thoughtful and coherent ensemble, both natural and urban: a modern version of the "garden city". And the texture of the stone façade contrasts highlighted bright white interior space - architects also worked on the interior of a house
© DNKag, Ilya Ivanov
(DNKag,Ilya Ivanov)
内部设计在一个单一的正面与极简,轻松的风格,是建立在自然的颜色和自然材料。与正面不同的是,采用明亮的颜色,只有中央核心的悬臂楼梯分配相同的深灰色板岩外观。
The interior is designed in a single facade with a minimalist, relaxed style and was built on the natural colors and natural materials. In contrast to the facade in bright colors are used, and only the central core of a cantilever staircase allocated the same dark gray slate façade.
The interior is designed in a single facade with a minimalist, relaxed style and was built on the natural colors and natural materials. In contrast to the facade in bright colors are used, and only the central core of a cantilever staircase allocated the same dark gray slate façade.
© DNKag, Ilya Ivanov
(DNKag,Ilya Ivanov)
客服
消息
收藏
下载
最近




























