查看完整案例

收藏

下载
在对琥珀餐厅的设计构思中,我们尝试用后轻奢的风格解读人们与食物之间的关系,探索人在空间中的三个感官(视觉、气味、听觉)带来的对本身就餐情绪的影响。在空间色调的运用方面,我们想让这个餐厅的空间与就餐者保持一种距离感,并且让他们适应这种距离以及随之而来的体验。这在餐厅经营当中取得了意想不到的效果,我们认为人们需要被发掘出埋藏在潜意识里的这种与生俱来的感受。
在空间设计上,狭长地带门洞造型取自中世纪教堂的造型元素,通体窗户加上半空中的飞鸟,使整个空间富有韵律和节奏感。室内空间中顶部深灰、墙面中灰、地面浅灰,明度从高到低依次减弱,使空间层次分明而过渡自然;地面环绕一周干净凌厉的灯带,就像暗夜星空中流淌的银河。
〔 项 目 简 介 〕
项目地址|山西太原北美N1
设计时间|2016.1
开业时间|2016.5
设计施工|RTD若涛商业设计公司
服务内容|全方位品牌设计、商业空间设计、软装设计
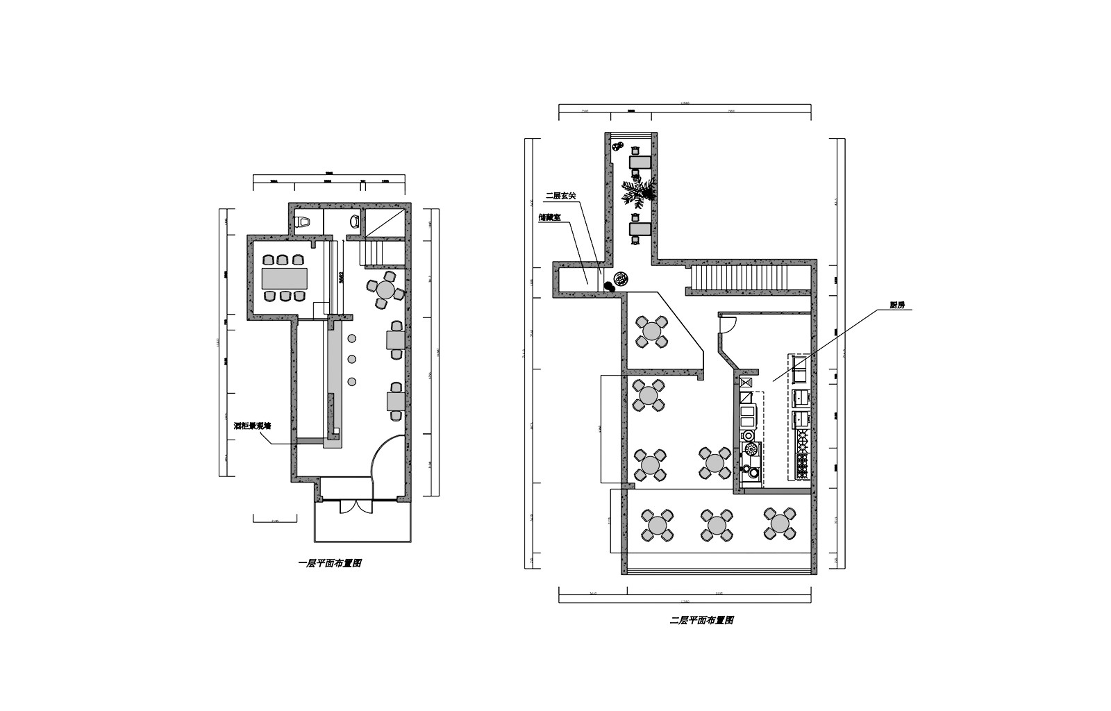
〔 平面布置图 〕
〔 全方位品牌设计 〕
琥珀餐厅logo设计的灵感来源于皇冠,代表着食客尊贵的身份,也象征着琥珀餐厅轻奢优雅的气质,四周环绕线性元素,是意大利面的变形,也是琥珀和威士忌酒光芒的围绕。
〔 软装及招贴设计 〕
后奢华风格是Art Deco的延续 是对现代西方奢华风格的演绎。
客服
消息
收藏
下载
最近






























