查看完整案例

收藏

下载
© Sam Noonan
萨姆·努南
架构师提供的文本描述。一种现代的,充满光线的延伸,位于一条狭窄的、多叶的郊区车道上,延伸到一座古雅的传统村舍的后面。主要的驱动因素是复制现有村舍的质量和规模,以创造后方生活区,与平面,低规模,极简之间的联系。
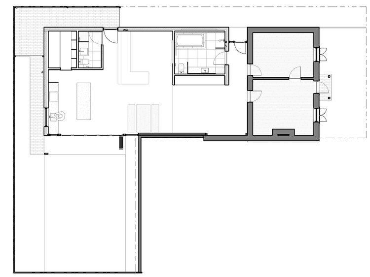
Text description provided by the architects. A modern, light filled extension to the rear of a quaint heritage listed cottage, set in a narrow, leafy suburban laneway. The major driving factor was to replicate the mass and scale of the existing cottage to create the rear living area, with a flat, low scale, minimalist link between the two.
Text description provided by the architects. A modern, light filled extension to the rear of a quaint heritage listed cottage, set in a narrow, leafy suburban laneway. The major driving factor was to replicate the mass and scale of the existing cottage to create the rear living area, with a flat, low scale, minimalist link between the two.
© Sam Noonan
萨姆·努南
后起居区向高水平天景开放,内部和外部之间的无缝过渡,现有的庭院方面已由西向南重新定位。仔细考虑现有元素和新元素之间的联系,可以得到明确的定义,但仍能在现代美学和遗产美学之间创造和谐。
The rear living area opens to high level sky views and a seamless transition between interior and exterior, where the existing yard aspect has been reoriented from west to south. Careful consideration of junctions between existing and new elements has allowed for clear definition yet still creates harmony between modern and heritage aesthetics.
The rear living area opens to high level sky views and a seamless transition between interior and exterior, where the existing yard aspect has been reoriented from west to south. Careful consideration of junctions between existing and new elements has allowed for clear definition yet still creates harmony between modern and heritage aesthetics.
© Sam Noonan
萨姆·努南
© Sam Noonan
萨姆·努南
客服
消息
收藏
下载
最近

















