查看完整案例


收藏

下载

翻译
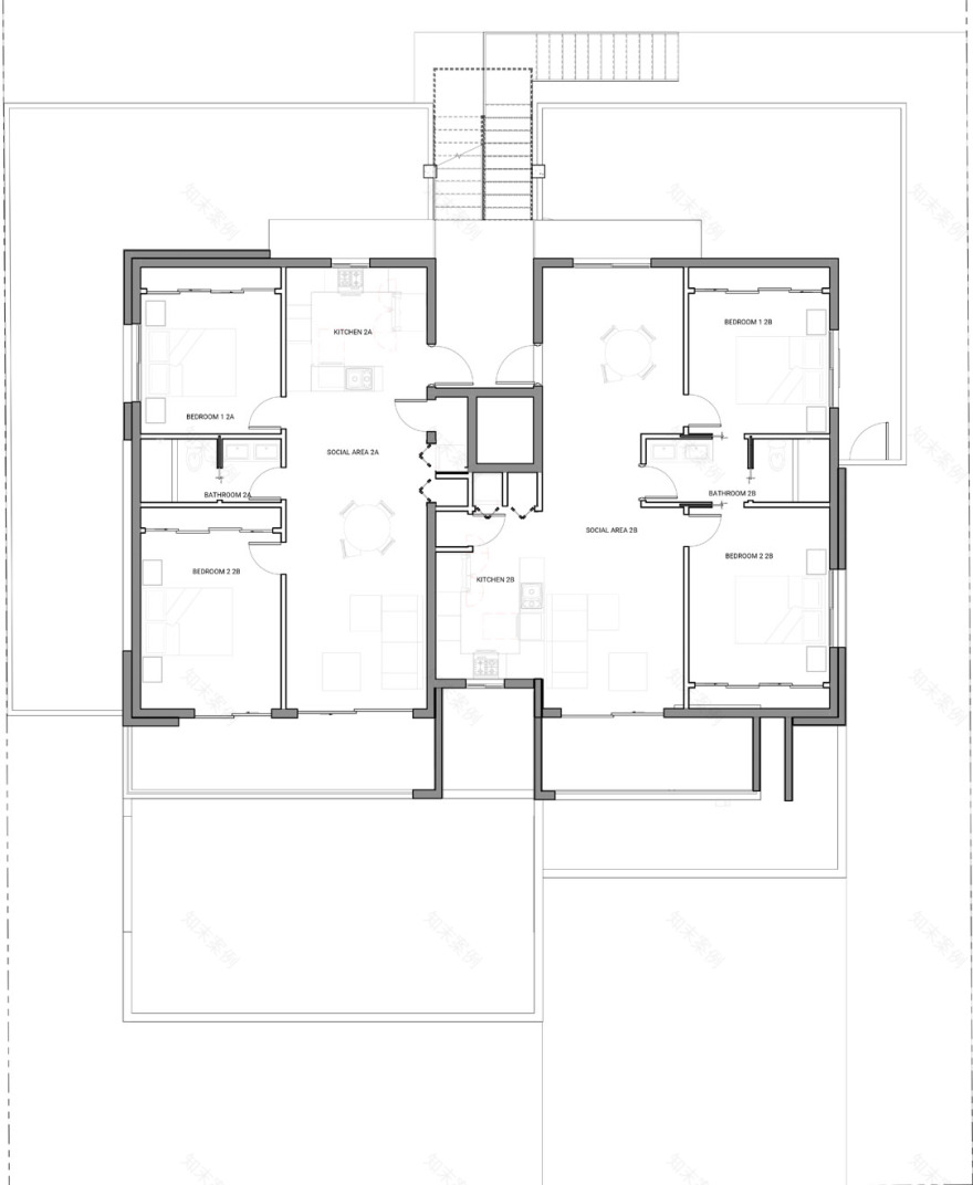
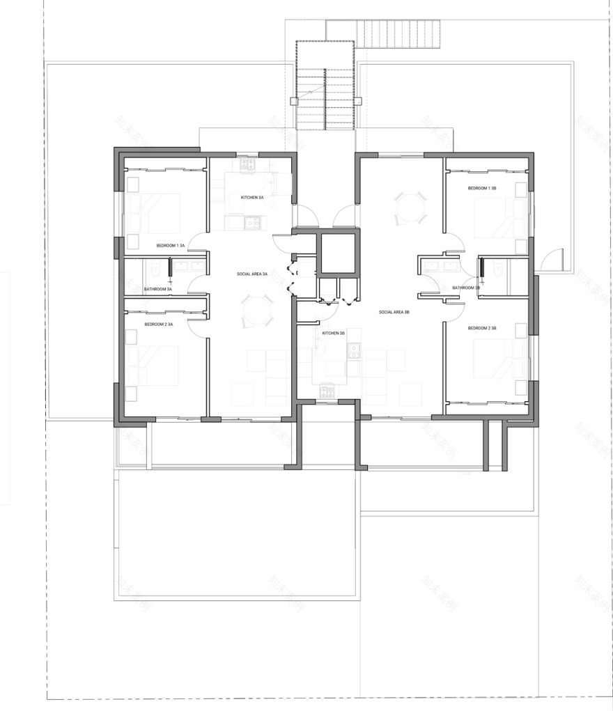
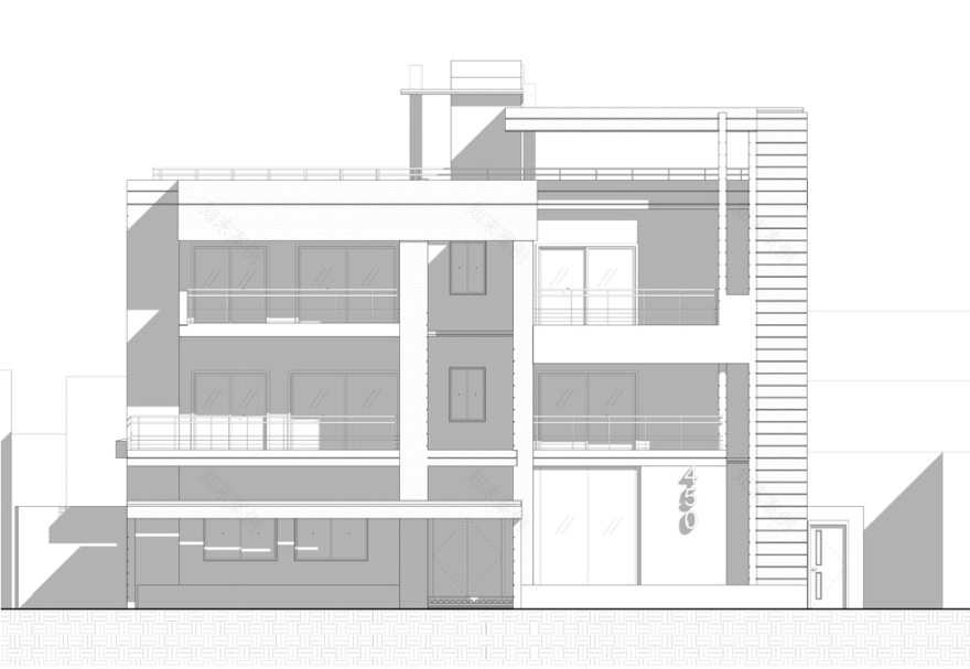
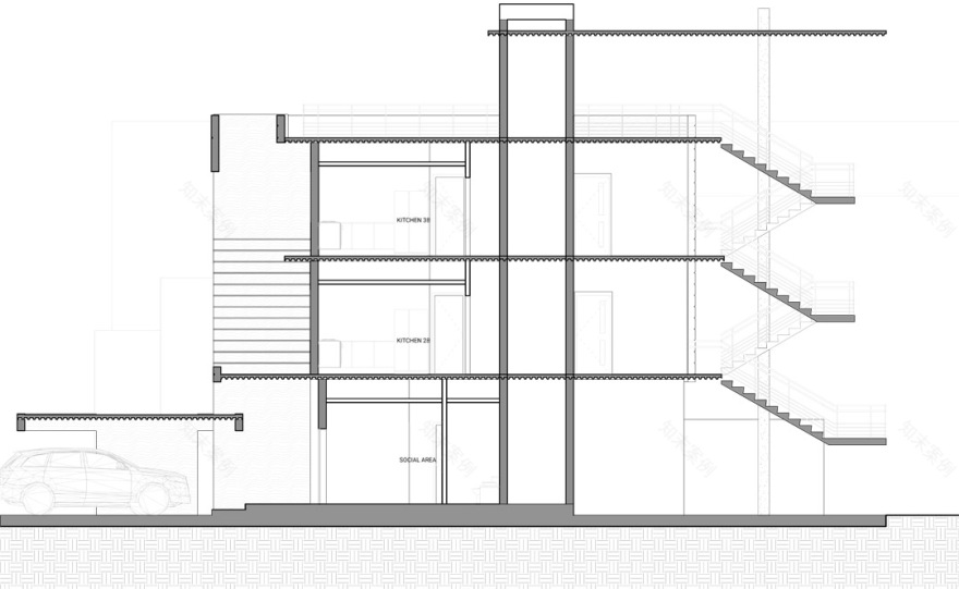
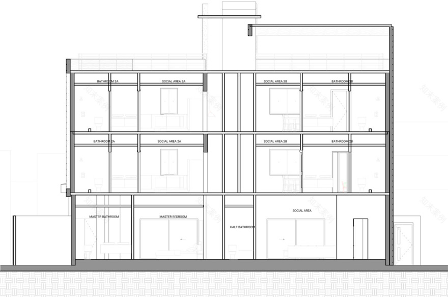
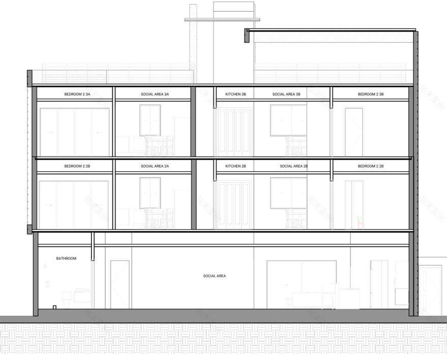
The client wanted a small apartment building with a bigger ground floor apartment for living. While the rest would work for rent but with a look closer to a single family than a multifamily. In this sense we chose to create a very unified building. With elements that embrace the different level and needs that are proper for apartments.
also the Building looks east to the Golf Course, an amazing view... when you are not dodging balls.
--
El cliente quería un edificio de apartamentos pequeño con un apartamento más grande en planta baja , mientras el resto serán para la renta, pero querían que se viera más como una casa que como un multifamiliar, de esta forma, elegimos crear un edificio muy unificado, con elementos que abracen los distintos niveles y las diferentes necesidades propias de apartamentos.
Además, el edificio mira al Este, al campo de Golfo, una asombrosa vista... cuando no tienes que esquivar pelotas.
客服
消息
收藏
下载
最近













