查看完整案例

收藏

下载
© Roland Borgmann
罗兰·博格曼
架构师提供的文本描述。定居点Haus B位于德国美因法兰克福附近的Dreieich镇。在这里,房子嵌入了一个相当典型的郊区住房定居点,这是在1960年代开发的。今天,这种解决方案描述了这两方面的情况:战后德国所谓的“极权主义者”时期,一个日益富裕、但相当保守、同质的郊区社会的美学;以及自上世纪90年代以来以相当折中的风格拼贴的高度多元和个人主义的方式来对待自己的房子。
Text description provided by the architects. Settlements Haus B is located in the town of Dreieich, within the vicinity of Frankfurt am Main, Germany. Here the house is embedded in a quite typical suburban housing settlement that had been developed during the 1960s. Today, this settlement depicts both: the aesthetics of an increasingly wealthy, yet rather conservative and homogeneous suburban society during the so-called “Wirtschaftswunder” of post-war Germany; and a heavily plural and individualist approach towards the aesthetics of one’s own house that manifests itself in a rather eclectic collage of styles since the 1990s.
Text description provided by the architects. Settlements Haus B is located in the town of Dreieich, within the vicinity of Frankfurt am Main, Germany. Here the house is embedded in a quite typical suburban housing settlement that had been developed during the 1960s. Today, this settlement depicts both: the aesthetics of an increasingly wealthy, yet rather conservative and homogeneous suburban society during the so-called “Wirtschaftswunder” of post-war Germany; and a heavily plural and individualist approach towards the aesthetics of one’s own house that manifests itself in a rather eclectic collage of styles since the 1990s.
© Roland Borgmann
罗兰·博格曼
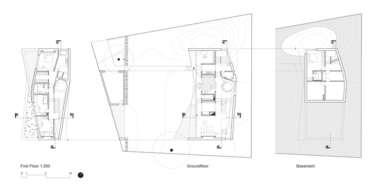
Floor Plans
平面图
© Roland Borgmann
罗兰·博格曼
几何形状HausB基于严格有序的几何关系,其允许一定程度的弹性,以响应客户、地点或建筑部门的不同需求。虽然考虑到这一地点的仔细阅读,但众议院也需要对其现场的相当技术性的影响因素作出回应。这座建筑从西北向东南延伸了一个细长的空间,并利用了太阳的收益,同时它保护了花园免受其北侧喧嚣的街道的影响。稍微变形的体积采用相邻屋檐线的方向和相对较低的高度。然后将其在其中心升起,以便柔和地平移相邻屋顶的倾斜,并将它们与明确现代的平坦屋顶的优点混合。
Geometry Haus B is based on strictly ordered geometrical relations that allow for a certain degree of elasticity in order to respond to the different demands of, the client, the place, or the building authority. While it is conceived of a careful reading of the place, the house needs to respond to the rather technical influencing factors of its site as well. The building stretches as an elongated volume from north-west to southeast and exploits solar gains while it protects the garden from the noisy street at its north side. The slightly deformed volume adopts the directions and comparably low heights of the neighboring eave-lines. It is then raised at its center in order to softly translate the obliqueness of the neighboring roofs and blend them with the advantages of an explicitly modern flat roof.
Geometry Haus B is based on strictly ordered geometrical relations that allow for a certain degree of elasticity in order to respond to the different demands of, the client, the place, or the building authority. While it is conceived of a careful reading of the place, the house needs to respond to the rather technical influencing factors of its site as well. The building stretches as an elongated volume from north-west to southeast and exploits solar gains while it protects the garden from the noisy street at its north side. The slightly deformed volume adopts the directions and comparably low heights of the neighboring eave-lines. It is then raised at its center in order to softly translate the obliqueness of the neighboring roofs and blend them with the advantages of an explicitly modern flat roof.
Geometry Details
几何细节
房子和花园房子的南面必须同时解决几个重要的,但矛盾的功能:它必须是邀请和代表,因为它组织了日常家庭生活的休闲同居。在这里,探索不同的外部空间,如前门的门廊,扩大相邻客厅的露台,完成主卧室和儿童房前屋顶花园的屋顶露台被用于两方面:它加强了房子和花园的联系,也定义了建筑物的“格式塔”(Gestalt)。
House and garden The house’s south-façade has to solve several important, yet contradictory functions at once: it has to be inviting and representative as it organizes the casual cohabitation of an everyday family-life. Here, the exploration of different outside spaces, such as the porch that preludes the front-door, the terrace that enlarges the adjacent living-room, the roof-terrace that completes the master bedroom and the roof-garden in front of the children’s rooms is used for both: it strengthens the connection of house and garden as well as it defines the building’s ‘Gestalt’.
House and garden The house’s south-façade has to solve several important, yet contradictory functions at once: it has to be inviting and representative as it organizes the casual cohabitation of an everyday family-life. Here, the exploration of different outside spaces, such as the porch that preludes the front-door, the terrace that enlarges the adjacent living-room, the roof-terrace that completes the master bedroom and the roof-garden in front of the children’s rooms is used for both: it strengthens the connection of house and garden as well as it defines the building’s ‘Gestalt’.
Exploded Axonometric
爆炸轴测
在内部,豪斯B的内部与这一过渡地带紧密相连。从这里开始,几个著名的住宅类型,如沿玻璃外墙的围裙,一系列相当实用的网格空间,或一个带有画廊和开放楼梯的双高空间-所有这些都延伸到一个平分层次的混合中,形成一个相当丰富和持续的生活景观。
Interior The interior of Haus B is closely connected to this zone of transition. From here several well-known housing-typologies, such as an enfilade along the glass-façade, a gridded array of rather functional spaces, or a double-height space with a gallery and open stair – all stretched across a split-level – blend to form a comparably rich and continuous living-landscape.
Interior The interior of Haus B is closely connected to this zone of transition. From here several well-known housing-typologies, such as an enfilade along the glass-façade, a gridded array of rather functional spaces, or a double-height space with a gallery and open stair – all stretched across a split-level – blend to form a comparably rich and continuous living-landscape.
© Roland Borgmann
罗兰·博格曼
生态学豪斯B已经被设想和装备超过了最新的德国节能法规(ENEV)的要求。为了在冬季获得尽可能多的太阳能,它一直向南/西南方向发展,这样突出的屋顶和可调节的帆布百叶窗可以在夏季保护内部不受太阳的照射。其次,应用耐久材料,所有外墙和屋顶表面包含高达20厘米厚的隔热层。所有的窗户至少都是双层玻璃的。太阳能电池板驱动的热泵为房屋提供暖气和热水供应.
Ecology Haus B has been conceived and equipped to exceed the requirements of the latest German energy saving regulations (EnEV). It has been directed towards south/south-west in order to gain as much as possible solar energy during winter, whereby the projecting roofs and adjustable canvas blinds protect the interior from the sun during summertime. Next, to the application of durable materials all exterior wall and roof surfaces contain up to 20cm thick layers of thermal insulation. All windows are at least double-glazed. A heat pump driven by solar panels provides the house’s heating and warm water-supply.
Ecology Haus B has been conceived and equipped to exceed the requirements of the latest German energy saving regulations (EnEV). It has been directed towards south/south-west in order to gain as much as possible solar energy during winter, whereby the projecting roofs and adjustable canvas blinds protect the interior from the sun during summertime. Next, to the application of durable materials all exterior wall and roof surfaces contain up to 20cm thick layers of thermal insulation. All windows are at least double-glazed. A heat pump driven by solar panels provides the house’s heating and warm water-supply.
© Roland Borgmann
罗兰·博格曼
Architects one fine day
Location Dreieich, Germany
Executive Architect Ulrike Thies
Design Architect Daniela Hake, Holger Hoffmann, Hajdin Dragusha, Janis Millard, Gabriele Gölzer
Area 320.0 m2
Project Year 2016
Photographs Roland Borgmann
Category Houses
Manufacturers Loading...
客服
消息
收藏
下载
最近























