查看完整案例


收藏

下载

翻译
Tapijn undergoes a true metamorphosis; from abandoned barracks to a lively city park. This will not only be the place for residents to stroll and do recreational activities, but also a pleasant environment to study or work. Maastricht University has opened this new and unique location in March 2020. Team LIAG (with Bosch Slabbers as landscape architect en Jelle de Boer as restoration architect) is responsible for the transformation of the existing barracks into a healthy educational environment. Team LIAG has preserved the context of the environment and the building values as a monument.
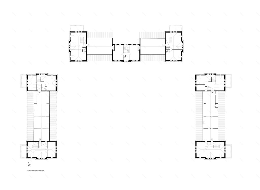
The former barracks site was built between 1916-1919. And in 2010 the last NATO soldiers left the Tapijnkazerne. The new users are School of Business en Economics, UMIO and the Library of the University. Three barracks in square around the ‘appelplaats’ are therefore currently being restored. New construction is added to this monumental ensemble. It is a cleverly thought out design. A transparent, deepened plinth provides access to the faculty and connects the existing buildings (with lecture halls, various teaching rooms and study places).
This design reinforces and emphasizes the character of the historical area. A subtle reference is made to cultural history by retaining the orthogonal structure. And by maintaining the views between and through the buildings. In addition, there is a nice transition between an "open" (learning) landscape and buildings. The new building has been designed in an understated way, and a public program has been added to this inviting, multifunctional plinth, such as a catering square.
Sustainability is an important theme for Maastricht University; just like the health and well-being of students and staff. This is the first project submitted by a European university to receive the WELL Building Standard. In addition, Tapijn has received the BREEAM excellent certificate. Various evidence-based measures that are related to well-being have been integrated into this new educational building.
客服
消息
收藏
下载
最近




















