查看完整案例

收藏

下载
架构师提供的文本描述。蜂房是一个用来刺激心灵和身体的家。它采用蜂窝结构,总体设计是基于传统的日本城堡。
Text description provided by the architects. The Beehive House is a home designed to stimulate the mind and the body. It incorporates a beehive structure and the overall design is based on the traditional Japanese Castle.
Text description provided by the architects. The Beehive House is a home designed to stimulate the mind and the body. It incorporates a beehive structure and the overall design is based on the traditional Japanese Castle.
众所周知,运动身体能使身体保持健康。我们也更了解,我们需要保持大脑的活跃,以防止恶化,记忆丧失和痴呆症。我们的目标是设计一个既能做这两件事,又能让身体和大脑保持活力的家。我想设计一座房子,它能让家庭搬家,而不仅仅是一个典型的家,它由不寻常的形状和空间组成,能吸引大脑,提供运动的选择,让大脑保持活力,并有一种有趣的元素。
It is well understood that moving the body keeps it healthy. We are also understanding more that we need to keep our brains active to prevent deterioration, memory loss and dementia. The goal was to design a home that would do both of these things, keep the body and brain active. I wanted to design a house that makes the family move more than a typical home, comprises of unusual shapes and spaces to intrigue the brain, offers choices of movement to keep the brain active and has an element of fun.
It is well understood that moving the body keeps it healthy. We are also understanding more that we need to keep our brains active to prevent deterioration, memory loss and dementia. The goal was to design a home that would do both of these things, keep the body and brain active. I wanted to design a house that makes the family move more than a typical home, comprises of unusual shapes and spaces to intrigue the brain, offers choices of movement to keep the brain active and has an element of fun.
© Kazushi Hirano
c.Kazushi Hirano
我们的大脑不断地收到有关我们周围环境的信息。孩子们的空间,卧室,教室,电视房间,看起来都一样。它们是方形或长方形房间,有固定的天花板高度。这种相似性减少了大脑的活动,从而可能使我们的孩子的发展受到不利影响。另一方面,让他们在一个能保持大脑活动的空间里成长,对他们来说有着复杂的优势。
Our brains are constantly receiving information about our surroundings. Childrens’ spaces; bedrooms, classrooms, lesson rooms, TV rooms, all look the same. They are square or rectangular rooms with set ceiling heights. This sameness reduces brain activity and thus could disadvantage our childrens’ development. On the other hand, allowing them to grow up in a space that keeps their brain active could have compounding advantages for them.
Our brains are constantly receiving information about our surroundings. Childrens’ spaces; bedrooms, classrooms, lesson rooms, TV rooms, all look the same. They are square or rectangular rooms with set ceiling heights. This sameness reduces brain activity and thus could disadvantage our childrens’ development. On the other hand, allowing them to grow up in a space that keeps their brain active could have compounding advantages for them.
这个家是专门设计的,目的是通过创造一种独特的结构、允许选择运动和灵活使用、有趣和不规则的结构来刺激儿童的身心发展。
This home was specifically designed to stimulate children to enhance their physical and mental development by creating a structure that is unique, allows choice of movement and flexibility of use, is interesting and is irregular.
This home was specifically designed to stimulate children to enhance their physical and mental development by creating a structure that is unique, allows choice of movement and flexibility of use, is interesting and is irregular.
© Kazushi Hirano
c.Kazushi Hirano
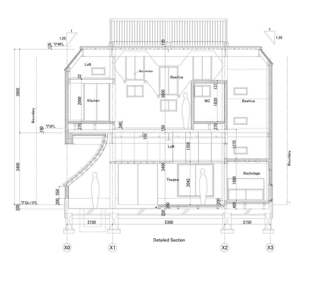
蜂巢结构由12个细胞组成,孩子们可以自由选择使用这些细胞。他们可以把一个用作床位,另一个用作游戏室或书房。六角形在他们的日常生活中是不寻常的,因此它刺激了大脑的活动。一旦进入蜂巢结构,就有可能失去你的方向感,而不知道你在家里的位置。
The beehive structure is comprised of 12 cells which the children are free to use in ways that they choose. They may use one as a bed space and another as a play room or study space. The hexagonal shape is unusual in their everyday so it stimulates brain activity. Once inside the beehive structure it is possible to lose your sense of direction and not know where you are within the home.
The beehive structure is comprised of 12 cells which the children are free to use in ways that they choose. They may use one as a bed space and another as a play room or study space. The hexagonal shape is unusual in their everyday so it stimulates brain activity. Once inside the beehive structure it is possible to lose your sense of direction and not know where you are within the home.
Second floor plan
二层平面图
其余的房子是设计在不同层次的功能空间,这增加了身体的运动。房子里没有死胡同,所以必须始终选择使用的道路。
The rest of the house is designed with functional spaces on different levels which increases physical movement. There are no dead-ends in the house so one must always choose the path to use.
The rest of the house is designed with functional spaces on different levels which increases physical movement. There are no dead-ends in the house so one must always choose the path to use.
© Kazushi Hirano
c.Kazushi Hirano
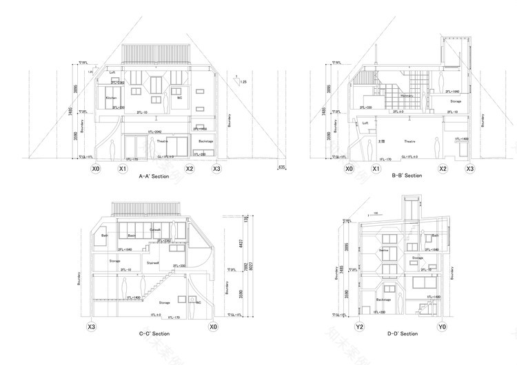
起居区是房子的核心,被比喻为皇宫,封建主居住的主要城堡。蜂巢部分代表jōkamachi,居民和城堡保护者占据的周边地区。这所房子的外部设计得像一座城堡的正面。客户是狂热的城堡爱好者,所以这个概念是为了培养他们对城堡的热爱。
The living area forms the central core of the house and is likened to the honmaru, the main castle where the Feudal Lord resides. The beehive section represents the jōkamachi the surrounding area occupied by the residents and castle protectors. The exterior of the house is designed to look like a castle facade. The clients are avid castle enthusiasts and so this concept was developed to foster their love of castles.
The living area forms the central core of the house and is likened to the honmaru, the main castle where the Feudal Lord resides. The beehive section represents the jōkamachi the surrounding area occupied by the residents and castle protectors. The exterior of the house is designed to look like a castle facade. The clients are avid castle enthusiasts and so this concept was developed to foster their love of castles.
Elevations
除了城堡,全家人都喜欢戏剧。这个家庭的父亲是一名业余戏剧导演,每年演出两次。为此目的,家庭一楼被设计成一个工作剧院,为观众提供舞台和空间,以及后台、灯光和音响区域。
Besides castles, the family love theatre. The father of the family is an amateur theatre director and puts on performances twice a year. For this purpose the first floor of the home is designed as a working theatre with stage and space for the audience, as well as backstage, lighting and sound areas.
Besides castles, the family love theatre. The father of the family is an amateur theatre director and puts on performances twice a year. For this purpose the first floor of the home is designed as a working theatre with stage and space for the audience, as well as backstage, lighting and sound areas.
客服
消息
收藏
下载
最近
















