查看完整案例

收藏

下载
架构师提供的文本描述。这套公寓位于1914年建造的抽屉式建筑中,位于传统的CampodeOurique社区。这座建筑建造得很晚,外墙是灰泥石,内墙是木结构。它有一个非常强大的存在十字路口,因为它的简化,但仔细的设计立面和一个相当高的屋顶,其中隐藏了两层的瓷砖屋顶。
Text description provided by the architects. The apartment is located in a drawer building built in 1914, located in the traditional neighborhood of Campo de Ourique. The building has a late Pombaline construction, with the exterior walls in mortar stone and the interior walls in wooden structure. It has a very strong presence at the intersection due to its simplified but careful design facade and a rather high rooftop, which hides the presence of the two-story tile roof.
Text description provided by the architects. The apartment is located in a drawer building built in 1914, located in the traditional neighborhood of Campo de Ourique. The building has a late Pombaline construction, with the exterior walls in mortar stone and the interior walls in wooden structure. It has a very strong presence at the intersection due to its simplified but careful design facade and a rather high rooftop, which hides the presence of the two-story tile roof.
© Francisco Nogueira
弗朗西斯科·诺盖拉
© Francisco Nogueira
弗朗西斯科·诺盖拉
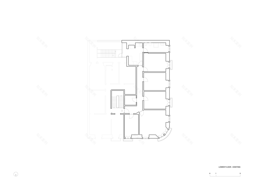
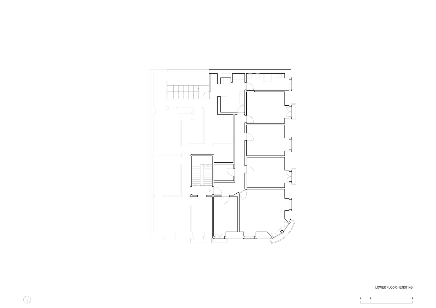
这座建筑有一个左右的类型,我们处理的是大约占顶层建筑面积的三分之二。这是这一历史和建设时期的典型公寓,有一条长的内部走廊,分布在几个非常相似的空间,面向西方。走廊的尽头是厨房(东边有一个跨度),还有通往唯一浴室的通道。在最高点有2.70米天花板的两层顶层公寓是不适合居住的。它的建筑仅仅是用铺满瓷砖的劣质木地板建造的,这使得屋顶的公寓热得很不舒服。
The building has a left-right typology, and we deal with occupies about two-thirds of the floor area on the top floor. It is a typical apartment of this historical and constructive period, with a long interior corridor that distributes to several compartments of very similar dimensions, orientated to the West. At the end of the corridor is the kitchen (with a span to the east) and also access to the only bathroom. The two-storey penthouse with a ceiling of 2.70m at the highest point was not habitable. Its construction consisted only of poor wood flooring covered with tile, which made the rooftop apartments thermally very uncomfortable.
The building has a left-right typology, and we deal with occupies about two-thirds of the floor area on the top floor. It is a typical apartment of this historical and constructive period, with a long interior corridor that distributes to several compartments of very similar dimensions, orientated to the West. At the end of the corridor is the kitchen (with a span to the east) and also access to the only bathroom. The two-storey penthouse with a ceiling of 2.70m at the highest point was not habitable. Its construction consisted only of poor wood flooring covered with tile, which made the rooftop apartments thermally very uncomfortable.
© Francisco Nogueira
弗朗西斯科·诺盖拉
我们向客户建议的是扩建公寓,因为他们将是唯一有可能进入公寓的人。经过这次规划改造后,我们的目标是增加公寓内的光线,因为房子是下午才收到的。这一战略体现在引入了两个屋顶梯田-一个面向东-南象限,另一个面向西北象限。
What we proposed to our clients was to extend the apartment, since they would be the only ones with the possibility of accessing it. After this programmatic transformation, we aimed to increase the light inside the apartment, since the house only received it from the afternoon. This strategy materialized in the introduction of two roof terraces - one orientated to the East-South quadrant and another oriented to the North-West quadrant.
What we proposed to our clients was to extend the apartment, since they would be the only ones with the possibility of accessing it. After this programmatic transformation, we aimed to increase the light inside the apartment, since the house only received it from the afternoon. This strategy materialized in the introduction of two roof terraces - one orientated to the East-South quadrant and another oriented to the North-West quadrant.
© Francisco Nogueira
弗朗西斯科·诺盖拉
Proposal - Longitudinal section
建议-纵向部分
这些梯田也与建筑物主楼梯的天窗一起工作,作为上层空间的组织要素-一个多用途的休憩空间和一个主套房。采取的战略是建立梯田(减去屋顶的几何形状)而不是萝卜(除了屋顶外),以便从城市的角度来看,我们的干预是最不具有侵扰性的,因为从街道上可以看到它的存在。
These terraces also work, along with the skylight of the main staircase of the building, as organizational elements of the upper floor space - a multipurpose open space and a master suite. The strategy of creating terraces (subtraction to the geometry of the roof) rather than the rafters (addition to the roof) was taken so that, from the urban point of view, the presence of our intervention was the least intrusive, since from the street there can catch a glimpse of its presence.
These terraces also work, along with the skylight of the main staircase of the building, as organizational elements of the upper floor space - a multipurpose open space and a master suite. The strategy of creating terraces (subtraction to the geometry of the roof) rather than the rafters (addition to the roof) was taken so that, from the urban point of view, the presence of our intervention was the least intrusive, since from the street there can catch a glimpse of its presence.
© Francisco Nogueira
弗朗西斯科·诺盖拉
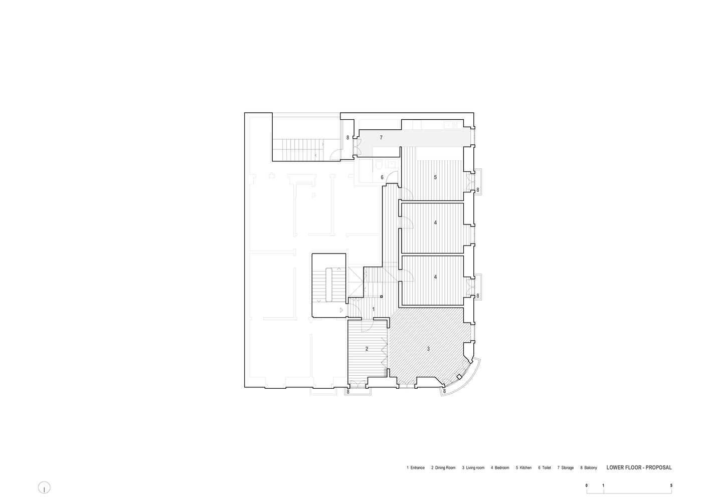
对较低楼层的空间进行了重组,以便包括一个双高的起居室,这两个露台的存在使其明亮。在这一层还有一个浴室,可以从走廊进入,厨房也有相邻的餐厅和两间卧室。
The reorganization of the space on the lower floor was made so as to include a living room with double height, well lit by the presence of the two terraces. On this floor there is also a bathroom with access from the hallway, as well as the kitchen with adjoining dining area and two bedrooms.
The reorganization of the space on the lower floor was made so as to include a living room with double height, well lit by the presence of the two terraces. On this floor there is also a bathroom with access from the hallway, as well as the kitchen with adjoining dining area and two bedrooms.
© Francisco Nogueira
弗朗西斯科·诺盖拉
该材料战略力求最大限度地保留原有建筑的特点,现有的木地板正在恢复,墙壁修复。在顶层,我们假设了松木中的一种新结构,而现有的屋顶结构在可能的情况下得以保持,并在必要时进行更换。上层的地板,在新松树的实木地板中,与下层地板的对话,一百多年的历史,是我们想承担的一个古老的辩证法。厨房和浴室都是全新的,已经涂覆了微浪,假定了它们的时代性。
The material strategy sought to preserve to the maximum the characteristics of the original building, with the existing wooden floor being recovered and the walls rehabilitated. On the top floor we assumed a new structure in pine wood, while the existing roof structure was maintained where possible and replaced where necessary. The floor of the upper floor, in solid wood floor of new pine, dialogs with the floor of the lower floor, one hundred years older, in an old-new dialectic that we wanted to assume. The kitchen and bathrooms, totally new, have been coated with microwaving, assuming their contemporaneity.
The material strategy sought to preserve to the maximum the characteristics of the original building, with the existing wooden floor being recovered and the walls rehabilitated. On the top floor we assumed a new structure in pine wood, while the existing roof structure was maintained where possible and replaced where necessary. The floor of the upper floor, in solid wood floor of new pine, dialogs with the floor of the lower floor, one hundred years older, in an old-new dialectic that we wanted to assume. The kitchen and bathrooms, totally new, have been coated with microwaving, assuming their contemporaneity.
© Francisco Nogueira
弗朗西斯科·诺盖拉
Architects BOOST studio
Location Lisbon, Portugal
Team João Dantas, Fábio Paulo
Contractor Masterobras
Area 300.0 m2
Project Year 2016
Photographs Francisco Nogueira
Category Apartment Interiors
Manufacturers Loading...
客服
消息
收藏
下载
最近
































