查看完整案例

收藏

下载
架构师提供的文本描述。现代住宅项目位于雅加达北部沿海地区高端住宅建筑群内。住宅内有两个独立的家庭,有独立的服务区,并在内院内共用游泳池。虽然独立运作,但整体设计联系在一起,作为一个连贯的设计意图。
Text description provided by the architects. Contemporary residential project located within high end housing complex on the coastal area of northern Jakarta (Ancol). The residence housed 2 independent families with separate service area and shared swimming pool in the inner court yard. Whilst independently functioning separately, yet the overall design ties in the houses together as one cohesive design intent.
Text description provided by the architects. Contemporary residential project located within high end housing complex on the coastal area of northern Jakarta (Ancol). The residence housed 2 independent families with separate service area and shared swimming pool in the inner court yard. Whilst independently functioning separately, yet the overall design ties in the houses together as one cohesive design intent.
© Mario Wibowo
马里奥·维博沃
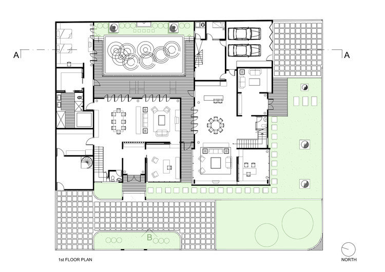
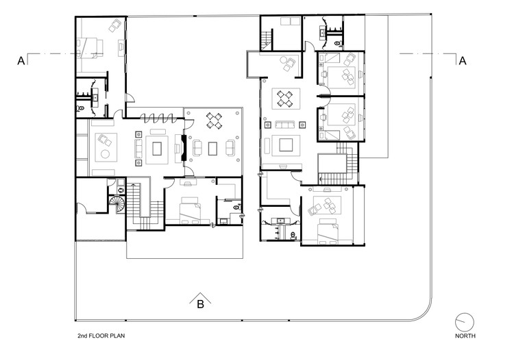
该住宅总面积为938平方米,占地面积为1,050平方米。在主楼上有3间卧室,在第二间房子上又有3间卧室。每间房子的起居室都有彼此的隐私,因此每个家庭的日常活动都不会互相干扰,但它们在任何时候都很容易通过内部庭院进入。
The residence has a total functioning area of 938 sqm on a 1,050 sqm plot of land. It has 3 bedrooms on the main house and another 3 bedrooms on the secondary house. The living room of each house have privacy from one another, hence each family daily activities wont disturbs each other yet they are easily accessible at all time thru the inner court yard.
The residence has a total functioning area of 938 sqm on a 1,050 sqm plot of land. It has 3 bedrooms on the main house and another 3 bedrooms on the secondary house. The living room of each house have privacy from one another, hence each family daily activities wont disturbs each other yet they are easily accessible at all time thru the inner court yard.
© Mario Wibowo
马里奥·维博沃
前院和内庭院的密集景观处理,有助于现代设计与自然的平衡。因此,从房子到外面的所有景色都是绿树成荫的。
Dense landscape treatment on the front yard and the inner court area, contributes to balance out the modern design with nature. Hence all views from the house to the exterior are all green lavish trees & plants. Providing you the sense of forested garden within the busy city of Jakarta.
Dense landscape treatment on the front yard and the inner court area, contributes to balance out the modern design with nature. Hence all views from the house to the exterior are all green lavish trees & plants. Providing you the sense of forested garden within the busy city of Jakarta.
1st floor plan
一楼图则
2nd floor plan
二层平面图
现在,我们正在为第三族的房子设计另一个扩展,同时也有一个统一的整体设计思想。第三次安装完成后,将再次更新拱。
Now we are designing another extension for the house for the third family, with the same idea of cohesive overall design. Will update Arch daily again after the third installment is finished from construction.
Now we are designing another extension for the house for the third family, with the same idea of cohesive overall design. Will update Arch daily again after the third installment is finished from construction.
© Mario Wibowo
马里奥·维博沃
客服
消息
收藏
下载
最近


















