查看完整案例

收藏

下载
架构师提供的文本描述。这座清真寺坐落在印度马哈拉施特拉邦的浦那,一处密密麻麻的土地上。
Text description provided by the architects. The Mosque is sited on a compact plot in Pune, India in the state of Maharashtra.
Text description provided by the architects. The Mosque is sited on a compact plot in Pune, India in the state of Maharashtra.
该项目探索传统的伊斯兰几何模式与一系列不同的穿孔尺度,以创造引人注目的光和阴影图案。
The project explores traditional islamic geometric patterns with a range of differentiated scales of perforations to create striking light and shadow patterns.
The project explores traditional islamic geometric patterns with a range of differentiated scales of perforations to create striking light and shadow patterns.
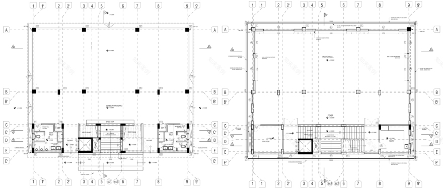
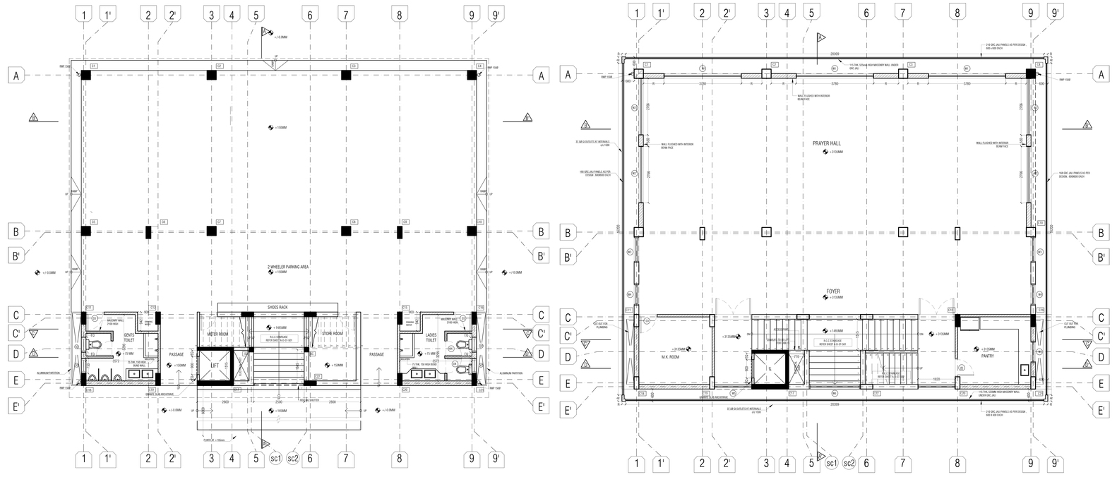
由于情节和建筑方案的紧凑性,在高跷上提升了祈祷量,在底层创造了一个全天候的高跷社会空间。进入这个阴谋的途径是从西方来的。服务核心位于东部,以方便过渡到面向西向麦加的祈祷大厅。
Due to the compact nature of the plot and architectural program the prayer volume is lifted on stilts to create an all weather stilted social space on the ground floor. The access to the plot is from the west. The service core is positioned on the east to facilitate ease of transition into the prayer hall facing westwards towards Mecca.
Due to the compact nature of the plot and architectural program the prayer volume is lifted on stilts to create an all weather stilted social space on the ground floor. The access to the plot is from the west. The service core is positioned on the east to facilitate ease of transition into the prayer hall facing westwards towards Mecca.
© Sameer Chawda
(Sameer Chawda)
该项目被设想为一个卷内的一个卷。祈祷大厅的不透明的体积被一个马什拉比亚容器包裹,形成了一个纤细的环抱区。这种皮肤也保护建筑物免受强烈的夏季高温。Mashrabiya是在玻璃钢混凝土中铸造,并探索一系列不同的穿孔。
The project is conceived as a volume within a volume. The opaque volume of the prayer hall is wrapped by a mashrabiya container creating a slender circumabulatory zone. This skin also protects the building from the intense summer heat. The mashrabiya is cast in Glass reinforced concrete and explores a range of varied perforations.
The project is conceived as a volume within a volume. The opaque volume of the prayer hall is wrapped by a mashrabiya container creating a slender circumabulatory zone. This skin also protects the building from the intense summer heat. The mashrabiya is cast in Glass reinforced concrete and explores a range of varied perforations.
Pattern generation
建筑项目包括用于祈祷、社会功能和包括沐浴空间在内的服务区域的空间。
The architectural program includes spaces for prayer, social functions and service zones including ablution spaces.
The architectural program includes spaces for prayer, social functions and service zones including ablution spaces.
© Sameer Chawda
(Sameer Chawda)
客服
消息
收藏
下载
最近


















