查看完整案例


收藏

下载
建筑师提供的文字说明。生活在一起的家庭决定在一个屋檐下生活在一起。在这个项目中,我试图设计一个空间,让那些被用来独自生活的人通过保持彼此适度的距离来独自建立一个愉快的友谊。
Text description provided by the architects. This family who had lived individually decided to live together under one roof. In this project I tried to design a space that allowed these people who were used to living alone build an agreeable friendship by keeping a moderate distance from each other.
Text description provided by the architects. This family who had lived individually decided to live together under one roof. In this project I tried to design a space that allowed these people who were used to living alone build an agreeable friendship by keeping a moderate distance from each other.
© Koji Fujii / Nacasa & Partners
Koji Fujii/Nacasa
© Koji Fujii / Nacasa & Partners
Koji Fujii/Nacasa
为了方便出入,有人要求建造一栋一层楼的房子.我仔细考虑了如何把光和风带到房子的中心。
Caring for ease of access, a one-story house was requested. I thought hard about how to bring light and wind into the center of the house.
Caring for ease of access, a one-story house was requested. I thought hard about how to bring light and wind into the center of the house.
© Koji Fujii / Nacasa & Partners
Koji Fujii/Nacasa
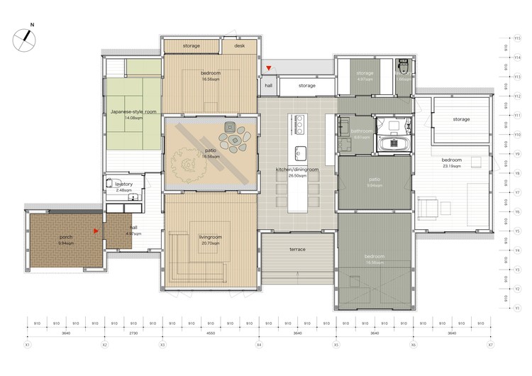
我把大楼分成几个部分,每个部分都有自己的功能,并把它们放在一个像Hopscotch游戏那样的布局“12121”中。通过这样做,我领导这所房子到了下列解决办法:
I divided the building into parts, each with their own function, and placed them in a layout “1+2+1+2+1” like Hopscotch game. By doing this, I led the house to the following solutions;
I divided the building into parts, each with their own function, and placed them in a layout “1+2+1+2+1” like Hopscotch game. By doing this, I led the house to the following solutions;
1.由于这些分开的零件在每个换档位置上接合,因此,在这一系列的空间中,我可以让一些瓦匠(加入/分分点)和一些水池(每个功能的空间)在房子里。当你在房子里做一个偏移时,你可以感觉到清爽的节奏。并且居民可以在所选择的池中放松,同时保持与其他人的距离。
1. Since these divided parts were joined on each shifting position, with this train of spaces I could make some Waists (joining/dividing points) and some Pools (spaces with each function) in the house. When you make an excursion within the house, you can feel refreshing rhythms. And a resident can relax in a pool which was chosen while maintaining a distance from others.
1. Since these divided parts were joined on each shifting position, with this train of spaces I could make some Waists (joining/dividing points) and some Pools (spaces with each function) in the house. When you make an excursion within the house, you can feel refreshing rhythms. And a resident can relax in a pool which was chosen while maintaining a distance from others.
© Koji Fujii / Nacasa & Partners
Koji Fujii/Nacasa
2.这两个位置(分裂的部分)创造了一个露台,这将带来光和风进入房子的中心。
2. The double position (split parts) created a patio which would bring light and wind into the center of the house.
2. The double position (split parts) created a patio which would bring light and wind into the center of the house.
© Koji Fujii / Nacasa & Partners
Koji Fujii/Nacasa
3.在这个位置上的双空间(分裂的部分)也是用于连接单个单元之间的走廊。这样,我不仅可以减少走廊所需的空间,而且还能给我一些机会,让我更容易地与他人亲近。测量与他人的距离是很重要的。
3. Double spaces in this position (split parts) are also useful as corridors for connecting between single units. With this I could not only cut the space which would have been needed for corridors but also gave some opportunities to feel closer to others easily. It is important to measure the distance from others.
3. Double spaces in this position (split parts) are also useful as corridors for connecting between single units. With this I could not only cut the space which would have been needed for corridors but also gave some opportunities to feel closer to others easily. It is important to measure the distance from others.
© Koji Fujii / Nacasa & Partners
Koji Fujii/Nacasa
客服
消息
收藏
下载
最近































