查看完整案例

收藏

下载
建筑师提供的文字说明。该项目的名称源自该别墅所处的城市的旧名称-MAKU。马库是伊朗西北部的一个边境城市,有着不同的气候品质,如大雪、雨天和周围的绿色平原。
Text description provided by the architects. The name of the project is derived from the old name of the city – Maku- where this villa is located in. Maku as a border city in northwest of Iran, has differentiated climatic qualities like heavy snows, rainy days and green plains around.
Text description provided by the architects. The name of the project is derived from the old name of the city – Maku- where this villa is located in. Maku as a border city in northwest of Iran, has differentiated climatic qualities like heavy snows, rainy days and green plains around.
© Farshid Nasrabadi
(Farshid Nasrabadi)
这一概念的形成是客户和建筑师之间的一次挑战的结果;委员会的任务是在Qare Khach山坡上创建一个独特的家庭静修所,并考虑提供壮观的自然景观。所以我们通过解构刻板印象,开始了关于天际线和重新定义的山墙屋顶的对话。动态高耸的天际线给建筑带来了标志性的形式和多样的景观,同时也为景观和室内空间的设计提供了潜力。
Formation of the concept was the result of a challenge between the client and the architects; The commission was to create a distinctive family retreat on Qare Khach slopes, and to consider providing spectacular views over natural sceneries around. So we initiated dialogue about the skyline and re-defined gable roof by deconstructing stereotypes. The dynamic soaring skyline caused an iconic form and diverse views to the building while providing potentials for designing the landscape and interior spaces.
Formation of the concept was the result of a challenge between the client and the architects; The commission was to create a distinctive family retreat on Qare Khach slopes, and to consider providing spectacular views over natural sceneries around. So we initiated dialogue about the skyline and re-defined gable roof by deconstructing stereotypes. The dynamic soaring skyline caused an iconic form and diverse views to the building while providing potentials for designing the landscape and interior spaces.
该项目位于斜坡上,可用于安装Arraat和整个城市。它由150平方米的建筑和150平方米的露台组成。伸展的露台,一个受屋顶保护,另一个由3个细长的柱子支撑,由无框架的玻璃栏杆完成,以最大限度地提高透明度。在景观中也增加了悬臂式玻璃面板。
The project is located on the slopes which enjoys a great view to Mount Ararat and the whole city.It is comprised of a 150-square-meter building and 150 –square-meter terraces. Stretched terraces, one protected by roof and the other held by 3 slender columns are completed by frameless glass railing to maximize transparency. A cantilevered glass deck is also added to landscape.
The project is located on the slopes which enjoys a great view to Mount Ararat and the whole city.It is comprised of a 150-square-meter building and 150 –square-meter terraces. Stretched terraces, one protected by roof and the other held by 3 slender columns are completed by frameless glass railing to maximize transparency. A cantilevered glass deck is also added to landscape.
© Farshid Nasrabadi
(Farshid Nasrabadi)
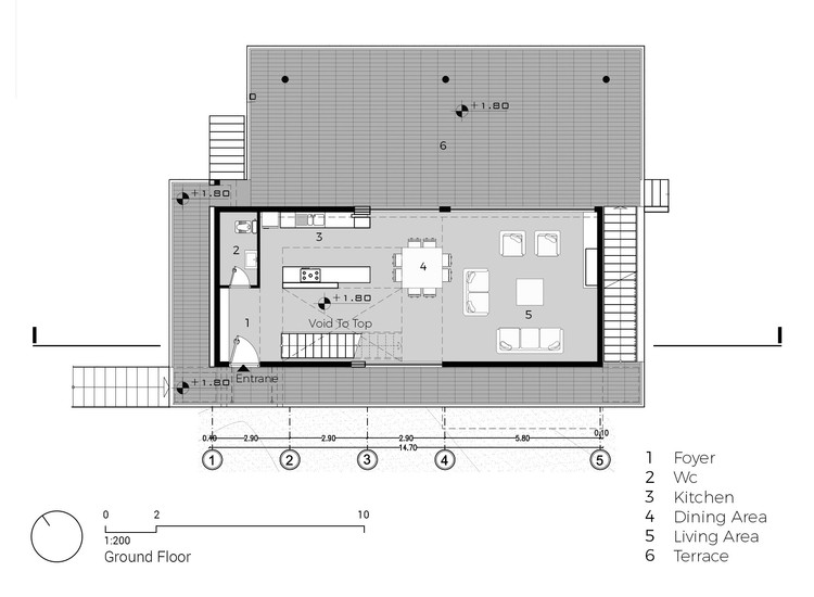
别墅融入了景观,遵循建筑的几何线条来组织周围的斜坡。当用户进入现场时,用户面临迷宫,因此他必须改变方向,同时接近建筑物并遇到不同的天线。别墅分为3个区域,由楼梯连接:一楼有厨房和客厅的公共区域,一楼有一个包括浴室和卧室的私人区域和一个由露台组成的完全透明的区域。
The villa blends into the landscape, following the geometric lines of the building to organize surrounding slopes. The user faces a maze as he enters the site; so he has to change the direction while approaching the building and encountering different skylines. The villa is divided into 3 zones which are connected by stairs: a public zone with kitchen and living room on the ground floor, a private zone including bathroom and bedrooms on the first floor and a fully transparent zone which is formed by terraces.
The villa blends into the landscape, following the geometric lines of the building to organize surrounding slopes. The user faces a maze as he enters the site; so he has to change the direction while approaching the building and encountering different skylines. The villa is divided into 3 zones which are connected by stairs: a public zone with kitchen and living room on the ground floor, a private zone including bathroom and bedrooms on the first floor and a fully transparent zone which is formed by terraces.
Ground floor plan
1st floor plan
一楼图则
另一个焦点是正面涂饰材料的选择。这些都是为了给建筑物照明和身份;玄武岩作为当地的一种材料,在该地区的砌体历史建筑中使用,增加了受山墙屋顶形状影响的大画窗,使空间流动性和透明度得以提高,山墙屋顶被东面天窗穿透的石板覆盖,因此太阳光线在清晨穿透。
Another focal point is the choice of the finishing materials for the facade. These are intended to give light and identity to the building; Basalt stone is utilized as a vernacular material which is used in masonry historical buildings of this district, large picture windows which are influenced by the form of gable roof are added to permit fluidity and transparency to the spaces, and the gable roof is covered by shingle cladding that is perforated by the eastern skylight, so sun rays penetrate through in the early morning.
Another focal point is the choice of the finishing materials for the facade. These are intended to give light and identity to the building; Basalt stone is utilized as a vernacular material which is used in masonry historical buildings of this district, large picture windows which are influenced by the form of gable roof are added to permit fluidity and transparency to the spaces, and the gable roof is covered by shingle cladding that is perforated by the eastern skylight, so sun rays penetrate through in the early morning.
© Farshid Nasrabadi
(Farshid Nasrabadi)
客服
消息
收藏
下载
最近





























