查看完整案例


收藏

下载
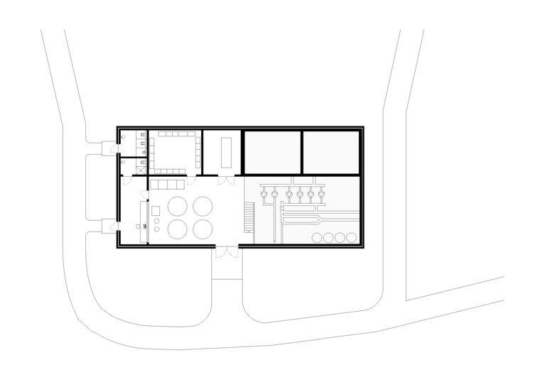
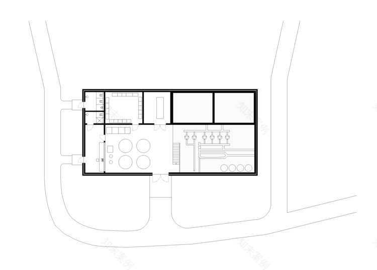
架构师提供的文本描述。在奥地利西部的布列根茨市和哈德镇、劳特拉赫镇和沃尔弗特镇建造了一个新的地下水抽水站。主建筑旁边有一个小的暗混凝土立方体,包括垂直喷泉和抽水器。主要对公众开放的大型暗主建筑,包括蓄水技术设施和大型水箱。
Text description provided by the architects. A new groundwater pumping station is built for the city of Bregenz and the towns of Hard, Lauterach and Wolfurt in the west of Austria. A small dark concrete cube next to the main building includes the vertical fountain and pumps up the fresh water. The large dark main building, which is mainly closed to the public, includes the technical installations for the water preparation and huge water tanks.
Text description provided by the architects. A new groundwater pumping station is built for the city of Bregenz and the towns of Hard, Lauterach and Wolfurt in the west of Austria. A small dark concrete cube next to the main building includes the vertical fountain and pumps up the fresh water. The large dark main building, which is mainly closed to the public, includes the technical installations for the water preparation and huge water tanks.
© Adolf Bereuter
阿道夫·博鲁特
就在技术大楼旁边的地标“米特尔韦赫堡”,一座小城堡就坐落在这里。这三座建筑的综合体在中间创造了一个开放的空间,供公众使用。在经过城堡的公共自行车道上,等待进入博物馆或休息的人可以使用淡水喷泉和水泥砌块。
Right next to the technical building the landmark “Mittelweiherburg”, a small castle is located. The complex of these three buildings create an open space in between, used by the public. A fresh water fountain and concrete blocks to rest on are used by people waiting to enter the museum in the castle, or make a rest while driving along the public bicycle path which passes the site.
Right next to the technical building the landmark “Mittelweiherburg”, a small castle is located. The complex of these three buildings create an open space in between, used by the public. A fresh water fountain and concrete blocks to rest on are used by people waiting to enter the museum in the castle, or make a rest while driving along the public bicycle path which passes the site.
© Adolf Bereuter
阿道夫·博鲁特
© Adolf Bereuter
阿道夫·博鲁特
建筑外墙处理两个非常不同的现象。从远处看,黑暗的建筑在环境中变得模糊不清。当你走近的时候,你可以看到被冲毁的混凝土结构和建筑物的大小。其目的是用水来制作立面,这是卷内所包含的水。
The building façade deals with two very different phenomena’s. From distance, the dark building gets blurred within the environment. When you get closer, one can see the washed-out concrete structure and size of the building. The aim was to craft the façade with water, which is contained within the volume.
The building façade deals with two very different phenomena’s. From distance, the dark building gets blurred within the environment. When you get closer, one can see the washed-out concrete structure and size of the building. The aim was to craft the façade with water, which is contained within the volume.
© Adolf Bereuter
阿道夫·博鲁特
此外,这几扇门打算缩小它们的大小,从而缩小建筑物的体积。最大的是超过四米高,很难猜测,只要你走到大楼。这些门是由深蓝色的搪瓷涂层金属片制成的,这些金属片像水面一样闪烁着微光。总之,该项目是一个例子,创造了一个长期的基础设施建设与一个建筑理念。
Also, the few doors intend to play down their size and therefore the volume of the building. The largest is more than four meters high, hard to guess as long as you come up to the building. The doors are made of dark blue enamel coated metal sheets, which glimmer like a water surface. All in all, the project is an example to create a long-lasting infrastructural building with an architectural idea.
Also, the few doors intend to play down their size and therefore the volume of the building. The largest is more than four meters high, hard to guess as long as you come up to the building. The doors are made of dark blue enamel coated metal sheets, which glimmer like a water surface. All in all, the project is an example to create a long-lasting infrastructural building with an architectural idea.
© Adolf Bereuter
阿道夫·博鲁特
客服
消息
收藏
下载
最近

















