查看完整案例


收藏

下载
架构师提供的文本描述。庄园是波兰人身份的一个极其重要的现象。几百年来,庄园一直是波兰景观的一个特征要素,是波兰历史和文化的保存者,是士绅民族和习俗的中心,也是民族传统的中心,也是争取波兰特性的斗争。几乎从建国之初起,他们就首先作为防御性的骑士住所建造,后来,从十七世纪中叶起,作为土地所有者的住宅-与宫殿相比,作为适度的住宅-而被建造起来。与其他欧洲国家相比,波兰较小的地主豪宅较多。1939年以后开始的对我们欧洲文化和身份的一个主要威胁是将历史庄园和公园从波兰景观中移除,这意味着社会集体意识中爱国士绅价值观的模糊。波兰庄园展示了在不同历史时期实施的各种建筑理念。
Text description provided by the architects. A manor is an extremely important phenomenon for the Polish identity. For hundreds of years manors have been a characteristic element of the Polish landscape, a depositary of the Polish history and culture, centres of the gentry ethos and customs as well as national traditions and the struggle for the Polish identity. Almost since the very beginning of the state they had been built first as defensive knights dwellings, and later, since the middle of the seventeenth century, as modest – in comparison with palaces - residences of landowners. As compared to other European countries, there were relatively many small landed gentry mansions in Poland. One major threat to our culture and identity in Europe that started after 1939 is the process of removing historical manor houses and parks from the Polish landscape, what implies blurring of patriotic gentry values in the collective consciousness of the society. Polish manors demonstrate a great variety of architectural concepts implemented in different historical periods.
Text description provided by the architects. A manor is an extremely important phenomenon for the Polish identity. For hundreds of years manors have been a characteristic element of the Polish landscape, a depositary of the Polish history and culture, centres of the gentry ethos and customs as well as national traditions and the struggle for the Polish identity. Almost since the very beginning of the state they had been built first as defensive knights dwellings, and later, since the middle of the seventeenth century, as modest – in comparison with palaces - residences of landowners. As compared to other European countries, there were relatively many small landed gentry mansions in Poland. One major threat to our culture and identity in Europe that started after 1939 is the process of removing historical manor houses and parks from the Polish landscape, what implies blurring of patriotic gentry values in the collective consciousness of the society. Polish manors demonstrate a great variety of architectural concepts implemented in different historical periods.
Courtesy of Biuro Architektoniczne Barycz & Saramowicz
Biuro Architektoniczne Barycz提供
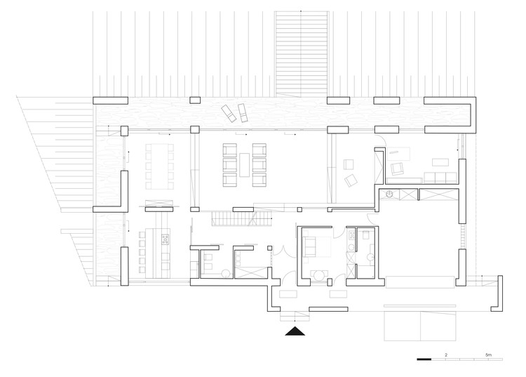
Ground floor plan
Courtesy of Biuro Architektoniczne Barycz & Saramowicz
Biuro Architektoniczne Barycz提供
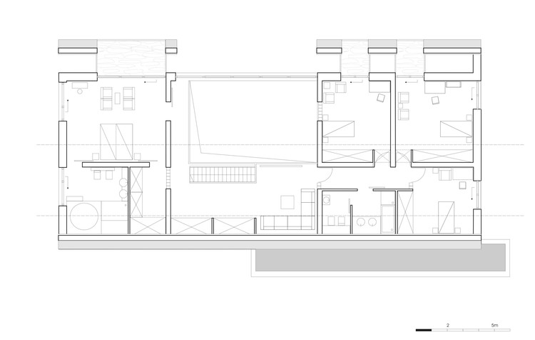
First floor plan
一楼平面图
在克拉科夫附近的Grębynice,PrąDnik河流域和Ojcoski国家公园的飞地旁边,还有Ojcoska桦树(Betula Penulula Var)。世界末日,Barycz和Saramowicz建筑事务所建造了另一座别墅。这一地区有着重要的历史和文化方面。在附近有科兹基尤城堡,这是前骑士的据点,可以追溯到14世纪。在上个世纪初,附近的奥JCów镇是一个受欢迎的保健胜地,也是当时俄罗斯统治下领土边界上的民族复兴中心,其意义是无价的。
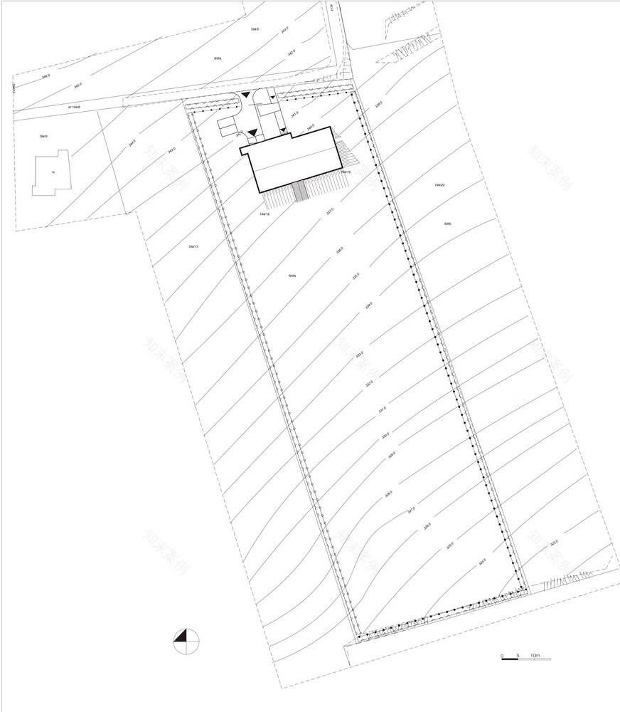
In Grębynice near Kraków, next to the Valley of the Prądnik River and an enclave of the Ojcowski National Park with the ojcowska birch (Betula pendula var. oycowiensis), the world endemit, the Barycz and Saramowicz Architectural Office has built another villa. The area has important historical and cultural aspects here. In the neighbourhood there is the Korzkiew Castle, former Knights’ stronghold dating back to the fourteenth century. Significance of the nearby town of Ojców, a popular health resort but also the centre of national revival on the borders of the then territory under the Russian rule, at the beginning of the last century, is invaluable.
In Grębynice near Kraków, next to the Valley of the Prądnik River and an enclave of the Ojcowski National Park with the ojcowska birch (Betula pendula var. oycowiensis), the world endemit, the Barycz and Saramowicz Architectural Office has built another villa. The area has important historical and cultural aspects here. In the neighbourhood there is the Korzkiew Castle, former Knights’ stronghold dating back to the fourteenth century. Significance of the nearby town of Ojców, a popular health resort but also the centre of national revival on the borders of the then territory under the Russian rule, at the beginning of the last century, is invaluable.
Courtesy of Biuro Architektoniczne Barycz & Saramowicz
Biuro Architektoniczne Barycz提供
因此,格拉姆的别墅被赋予了一种形式,这种形式是波兰庄园的大规模原型的一种广泛的智力转变。这座大楼是一个现代化的乡村之家。它是用现代方法建立的,它与现代性的审美意识有关。然而,利用先进的建筑表达手段和现代技术的奇妙可能性创造的,绝不是一种国际风格的副本。它是波兰建筑传统的创造性参考。
Hence the villa in Grębynice has been given a form which is a far intellectual transposition of the massive archetype of a Polish manor. The building is a modern version of a country house out of town. It has been built using modern methods, relevant to the aesthetic sense of modernity. However, created with the use of state-of-the-art means of architectural expression and wonderful possibilities of modern technology, is by no means a copy of an international style. It is a creative reference to the Polish building tradition.
Hence the villa in Grębynice has been given a form which is a far intellectual transposition of the massive archetype of a Polish manor. The building is a modern version of a country house out of town. It has been built using modern methods, relevant to the aesthetic sense of modernity. However, created with the use of state-of-the-art means of architectural expression and wonderful possibilities of modern technology, is by no means a copy of an international style. It is a creative reference to the Polish building tradition.
Courtesy of Biuro Architektoniczne Barycz & Saramowicz
Biuro Architektoniczne Barycz提供
该别墅具有紧凑的、矩形的、稍微拉长的地板形状。建筑的原型表达和组成的某些对称性,建筑的碎片在侧面延伸,回忆了波兰庄园住宅的形状,有一个前门廊和凹室。别墅建在波兰庄园的原型计划上,但其他一切都是现代的。建筑的墙壁是石灰石和石英烧结矿的组合。那是有光泽的屋顶,它给房子提供了一个不尘世的、宇宙的外观。别墅的抽象地貌与它的材质定义相乘,其中屋顶和墙的外观已协调,并且在纹理上和颜色上都是相同的。由粉碎的Juraa石灰石构成的石材包层对应于具有木模垂直印刷的石英烧结体。墙的平面和屋顶之间的边界已被删除。别墅的统一、同构形式看起来像是一个嵌入自然环境中的原型。
The villa has a compact, rectangular, slightly elongated floor shape. The archetypal expression of the building and certain symmetry of the composition, with fragments of the construction extended on the sides, recall the shape of the Polish manor house, with a front porch and alcoves. The villa has been built on the archetypal plan of a Polish manor, but everything else in it is modern. The walls of the building being a combination of limestone and quartz sinter are innovative. So is the shiny roof, which gives the house an unearthly, cosmic look. The abstract physiognomy of the villa has been multiplied by its material definition, where the appearance of the roof and the walls has been harmonised and is identical both texturally and chromatically. A stone cladding made of crushed Jura limestone corresponds with the quartz sinter with a vertical print of wooden formwork. The boundary between the plane of the walls and the roof has been obliterated. The unified, homogeneous form of the villa looks like a prototype embedded in the natural environment.
The villa has a compact, rectangular, slightly elongated floor shape. The archetypal expression of the building and certain symmetry of the composition, with fragments of the construction extended on the sides, recall the shape of the Polish manor house, with a front porch and alcoves. The villa has been built on the archetypal plan of a Polish manor, but everything else in it is modern. The walls of the building being a combination of limestone and quartz sinter are innovative. So is the shiny roof, which gives the house an unearthly, cosmic look. The abstract physiognomy of the villa has been multiplied by its material definition, where the appearance of the roof and the walls has been harmonised and is identical both texturally and chromatically. A stone cladding made of crushed Jura limestone corresponds with the quartz sinter with a vertical print of wooden formwork. The boundary between the plane of the walls and the roof has been obliterated. The unified, homogeneous form of the villa looks like a prototype embedded in the natural environment.
Courtesy of Biuro Architektoniczne Barycz & Saramowicz
Biuro Architektoniczne Barycz提供
Architects Biuro Architektoniczne Barycz & Saramowicz
Location Kraków, Poland
Architect in Charge Dr. Rafal Barycz, Dr. Pawel Saramowicz
Area 600.0 m2
Project Year 2018
Category Historic Preservation
Manufacturers Loading...
客服
消息
收藏
下载
最近





















